Nowoczesne lokale mieszkalne | Garaż | Duże ogrody
Dolnośląskie
Opis
Nowa inwestycja – Lokale mieszkalne w zabudowie bliźniaczej, Kruszyn k. Bolesławca
Oferujemy 3 budynki w zabudowie bliźniaczej – łącznie 6 nowoczesnych lokali mieszkalnych w stanie deweloperskim z ogródkami i garażami w bryle budynku.
Inwestycja położona jest w Kruszynie, zaledwie kilka minut od centrum Bolesławca, w spokojnej, dobrze skomunikowanej części miejscowości, w otoczeniu nowej zabudowy jednorodzinnej.
Każdy lokal ma powierzchnię 104,28 m² (z garażem) i oferuje przemyślany układ pomieszczeń oraz możliwość wyboru wielkości ogródka.
Układ bez skosów zapewnia pełną funkcjonalność wnętrz, a duże przeszklenia gwarantują doskonałe doświetlenie wszystkich pomieszczeń.
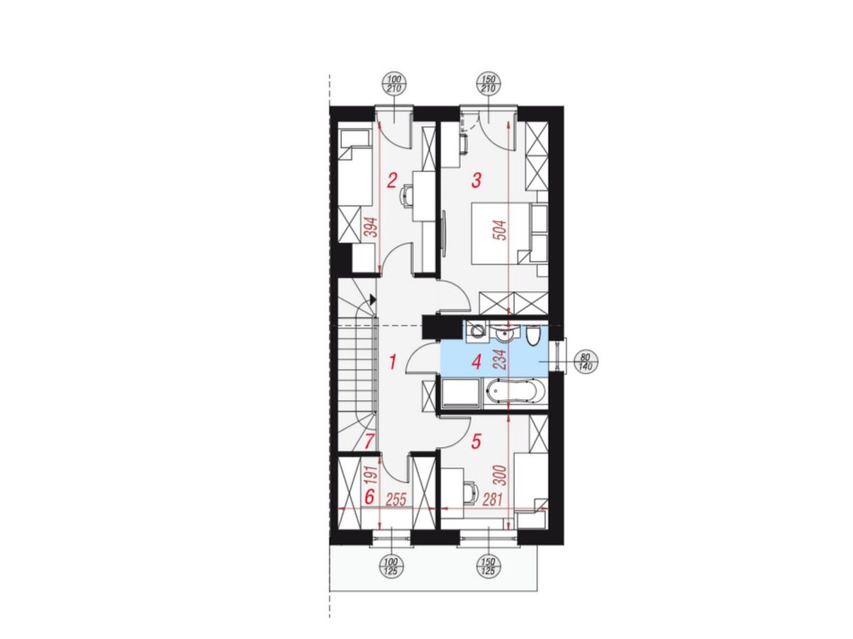
Rozkład pomieszczeń
Parter:
wiatrołap
łazienka
korytarz
salon z aneksem kuchennym i wyjściem na taras
garaż w bryle budynku
Piętro:
trzy sypialnie
łazienka
garderoba
komunikacja
Standard wykonania
Lokale budowane są w wysokim standardzie, z wykorzystaniem trwałych materiałów i nowoczesnych technologii. Projekt powstał z myślą o komforcie użytkowania, niskich kosztach utrzymania oraz estetyce dopasowanej do współczesnych oczekiwań.
Wśród zastosowanych rozwiązań:
ogrzewanie gazowe z piecem dwufunkcyjnym i ogrzewaniem podłogowym w całym budynku,
trzyszybowa stolarka okienna, zapewniająca doskonałą izolację,
ocieplenie styropianem 20 cm,
brama garażowa z napędem elektrycznym,
pokrycie dachu dachówką ceramiczną BRAS.
Każdy lokal posiada ogród o powierzchni od 200 do 900 m², co daje możliwość stworzenia prywatnej przestrzeni do wypoczynku i spotkań w gronie najbliższych.
Termin realizacji
Zakończenie budowy planowane na I kwartał 2026 roku.
Schemat rezerwacji:
Segment A — dostępny — 104,28 m² — ogródek 270 m²
Segment B — dostępny — 104,28 m² — ogródek 236 m²
Segment C — dostępny — 104,28 m² — ogródek 212 m²
Segment D — dostępny — 104,28 m² — ogródek 210 m²
Segment E — dostępny — 104,28 m² — ogródek 220 m²
Segment F — SPRZEDANE — 104,28 m² — ogródek 896 m²
Lokalizacja
Inwestycja znajduje się w spokojnej części Kruszyna (gm. Bolesławiec), przy drodze wewnętrznej, w otoczeniu nowej zabudowy jednorodzinnej.
W pobliżu: szkoła, sklep, przystanek komunikacji, tereny spacerowe.
Wokół inwestycji powstaje ścieżka rowerowa.
Dojazd do centrum Bolesławca zajmuje około 5 minut.
To idealne rozwiązanie dla par i rodzin, które pragną większej prywatności, bliskości miasta oraz komfortu własnej przestrzeni.
Połączenie atrakcyjnego metrażu, funkcjonalnego układu i jakości wykonania sprawia, że jest to dom w cenie mieszkania.
Zapraszamy na prezentację inwestycji oraz do kontaktu w celu poznania szczegółów oferty.
Dawid Łowejko
Specjalista ds. Inwestycji Deweloperskich
Nr licencji pośrednika 26261
Pomagamy w uzyskaniu kredytu hipotecznego!
Wnioski i formularze do banków przygotowujemy osobiście, tak więc mamy pewność, że wszystko jest wykonane zgodnie z wymaganiami banków.
Będąc doradcą kredytowym na terenie Lubania, Zgorzelca i Jeleniej Góry oferujemy pomoc w uzyskaniu szybkich i uproszczonych kredytów gotówkowych, hipotecznych oraz firmowych na korzystnych warunkach cenowych.
Poprzez wypracowane kontakty z placówkami bankowymi w Lubaniu jesteśmy zawsze na bieżąco z najlepszymi ofertami kredytów.
Klient ma zapewnioną profesjonalną pomoc podczas procesowania wniosków kredytowych.
Nasze usługi kredytowe są dla Państwa CAŁKOWICIE BEZPŁATNE.
Ogólne informacje
| Rodzaj | Na sprzedaż |
|---|---|
| Powierzchnia użytkowa | 104.28 m² |
| Liczba pokoi | 4 |




