NOWOCZESNY BLIZNIAK BIELAWA *NAWODNIENIE OGRODU, KOSIARKA* 2025 GOTOWY
Dolnośląskie
Opis
Przedstawiamy wyjątkową ofertę domu bliźniaczego o powierzchni użytkowej 114,37 m², usytuowanego na dużej, 400-metrowej działce. Idealne miejsce dla rodzin ceniących komfort, nowoczesne rozwiązania i piękny ogród.
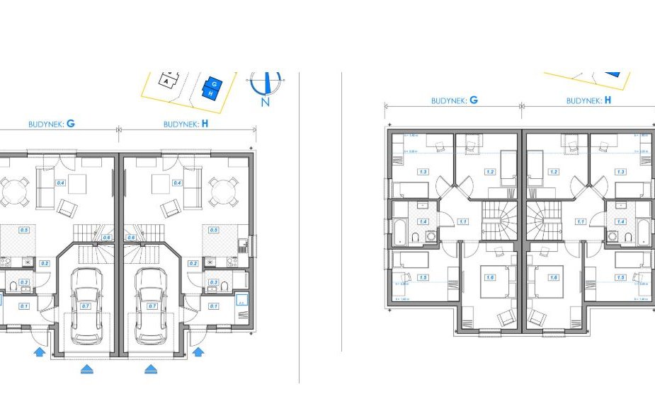
Rozkład pomieszczeń:
Parter:
Wiatrołap: 5,82 m²
Korytarz: 2,28 m²
Łazienka: 2,85 m²
Salon z jadalnią: 28,74 m² – przestronne i jasne miejsce do codziennego wypoczynku i spotkań
Aneks kuchenny: 5,93 m²
Klatka schodowa: 2,07 m²
Garaż: 17,69 m² – wygodny, z bezpośrednim dostępem do domu
Piętro:
Przedpokój: 5,70 m²
Sypialnia 1: 9,87 m²
Sypialnia 2: 9,87 m²
Sypialnia 3: 9,00 m²
Sypialnia 4: 14,28 m² – przestronna sypialnia główna
Łazienka: 5,97 m²
Wyposażenie i udogodnienia:
Ogrzewanie podłogowe z nowoczesną pompą ciepła – gwarancja komfortu i efektywności energetycznej
Zagospodarowany ogród z automatycznym systemem nawadniania, zapewniający piękny wygląd przez cały sezon
Samojezdna kosiarka do trawy – ułatwia utrzymanie zieleni
Ogród zagospodarowany i udekorowany hortensjami, trawami ozdobnymi oraz szczepionymi klonami, tworząc przyjemną i estetyczną przestrzeń do wypoczynku
Utwardzony podjazd oraz taras – idealne miejsce na relaks i spotkania na świeżym powietrzu
Dom wyposażony w system kamer – zapewnia bezpieczeństwo i kontrolę nad posesją
Ocieplenie poddasza pianą PUR, co zminimalizuje koszty wynikające z ogrzewania domu i ubytku ciepła
Rolety antywłamaniowe elektrycznie sterowane
To wyjątkowa nieruchomość, która łączy nowoczesność, funkcjonalność i piękno natury. Doskonała propozycja dla rodzin poszukujących komfortowego domu w spokojnej okolicy.
Zapraszamy do kontaktu i oglądania!
Ogólne informacje
| Rodzaj | Na sprzedaż |
|---|---|
| Powierzchnia użytkowa | 114 m² |
| Liczba pokoi | 5 |




