Nowoczesny bliźniak przy lesie | działka 415 m² | blisko Łodzi | pompa
Łódzkie
Opis
Nowy bliźniak 99 m² | działka od 415 m² | pompa ciepła | Izabelin k. Aleksandrowa Łódzkiego
Nowoczesny dom w zabudowie bliźniaczej – Izabelin Park
Zapraszamy do zapoznania się z ofertą nowoczesnych domów w zabudowie bliźniaczej położonych na kameralnym osiedlu Izabelin Park w miejscowości Izabelin, zaledwie 3 minuty od Aleksandrowa Łódzkiego.
To idealna propozycja dla osób szukających spokojnej okolicy blisko natury, a jednocześnie z szybkim dojazdem do Łodzi. Osiedle otoczone jest nową zabudową jednorodzinną, a dodatkowym atutem jest bezpośrednie wyjście do lasu z terenu osiedla.
Duże przeszklenia oraz ekspozycja salonu na południowy-zachód zapewniają doskonałe doświetlenie wnętrza przez cały dzień.
Najważniejsze atuty
-działki od 415 m²
-duże okno tarasowe 3,8 m w salonie
-pełna wysokość pomieszczeń na piętrze – brak skosów
-prywatny podjazd na dwa samochody
-horyzontalne okno w kuchni
-bezpośrednie wyjście do lasu
-szybki dojazd do S14 – zachodniej obwodnicy Łodzi
Planowane zakończenie inwestycji: IV kwartał 2026 r.
Dom sprzedawany w stanie deweloperskim – kupujący nie płaci podatku PCC.
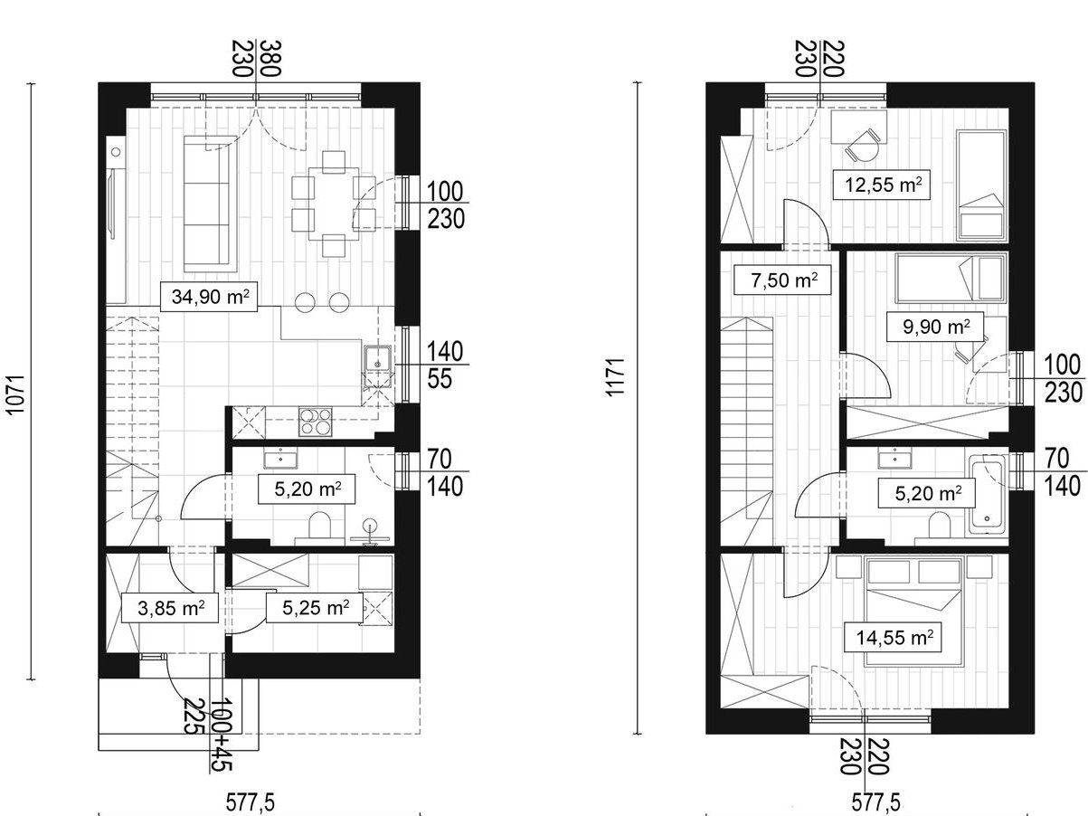
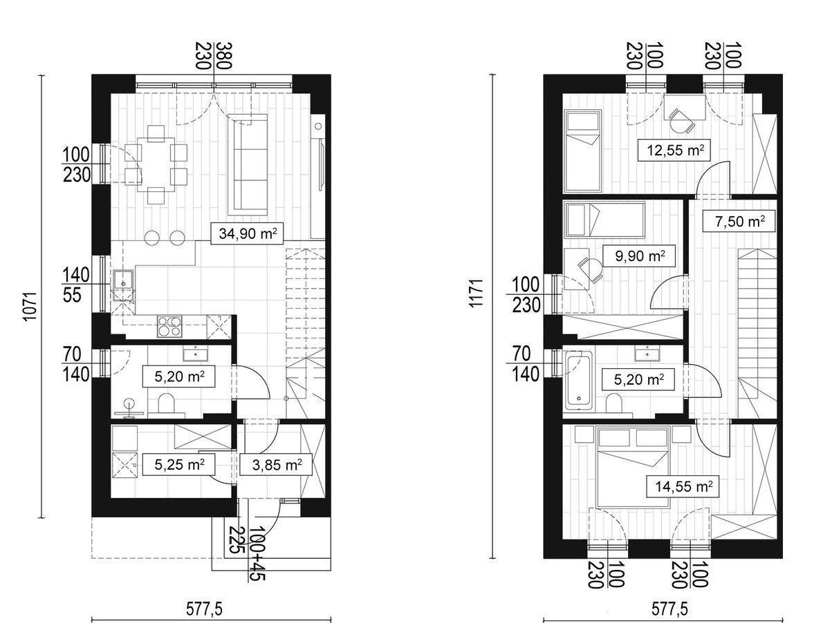
Rozkład pomieszczeń
Parter
Salon z aneksem kuchennym – 34,90 m²
Wiatrołap – 3,85 m²
Łazienka – 5,20 m²
Kotłownia / pralnia – 5,25 m²
Piętro
Sypialnia – 14,55 m²
Sypialnia – 12,55 m²
Sypialnia – 9,90 m²
Łazienka – 5,20 m²
Komunikacja – 7,50 m²
Powierzchnia użytkowa: 98,9 m²
Standard wykończenia
-pompa ciepła
-ogrzewanie podłogowe w całym domu
-tynki i wylewki maszynowe
-elewacja ocieplona styropianem 20 cm
-okna trzyszybowe energooszczędne
-kominek w salonie
-drzwi antywłamaniowe
-instalacja alarmowa, monitoring, internet, TV, wideodomofon
-przygotowanie pod system nawadniania ogrodu
-szambo 10 m³
-utwardzony podjazd z dwoma miejscami postojowymi w cenie
-możliwość montażu rolet zewnętrznych
Dom podłączony do wodociągu, energii elektrycznej oraz światłowodu.
Lokalizacja
3 min – Aleksandrów Łódzki
30 min – centrum Łodzi
2 min – sklep spożywczy
5 min – szkoła podstawowa
3 min - dojazd do S14
Zapraszamy do kontaktu i obejrzenia inwestycji.
Ogólne informacje
| Rodzaj | Na sprzedaż |
|---|---|
| Powierzchnia użytkowa | 98.90 m² |
| Liczba pokoi | 5 |




