Nowoczesny Dom 184m2 | Kobylec | Kanalizacja | 6 pokoi | Bez PCC
Małopolskie
Opis
Przestronny dom 184 m² z miejską kanalizacją i rekordową izolacją termiczną
Na sprzedaż nowoczesny dom jednorodzinny o powierzchni całkowitej 184,13 m², położony w Kobylcu (woj. małopolskie). To oferta dla osób szukających większej przestrzeni, solidnych technologii budowlanych oraz pełnej infrastruktury miejskiej.
Najważniejsze atuty
Bez podatku PCC.
Kanalizacja miejska – unikalny atut w tej lokalizacji (brak uciążliwego szamba).
Płyta fundamentowa – nowoczesne posadowienie budynku gwarantujące najwyższą stabilność i ochronę przed wilgocią oraz stratami ciepła.
Ponadstandardowe ocieplenie – ściany zewnętrzne zabezpieczone styropianem o grubości aż 25 cm.
Duża powierzchnia (184,13 m²) – idealny układ dla większej rodziny lub osób pracujących z domu.
Komplet mediów – woda miejska, kanalizacja, prąd, światłowód w działce (gaz w bliskiej perspektywie).
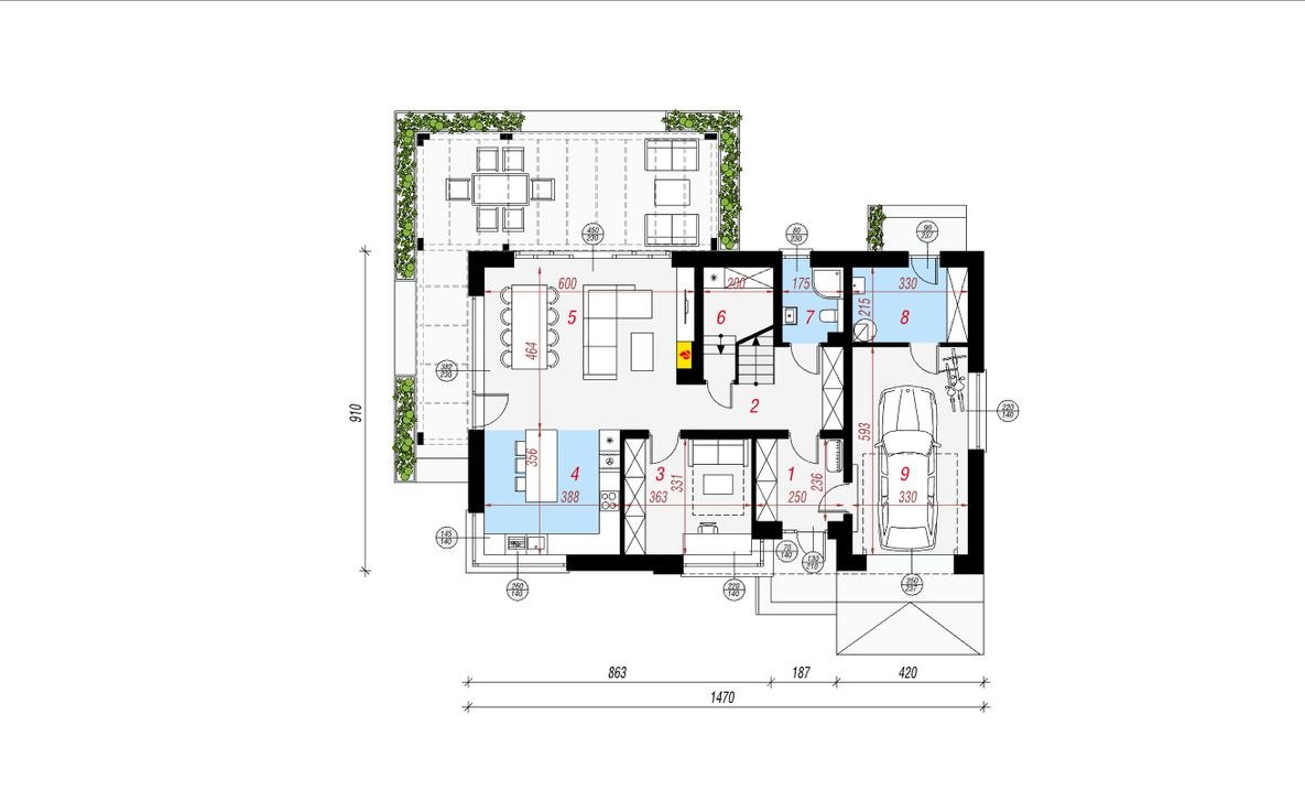
Rozkład pomieszczeń
Parter (strefa dzienna):
Przestronny salon z miejscem na kominek i przeszkleniami przesuwnymi na taras.
Jadalnia oraz kuchnia z obszerną wyspą i barkiem śniadaniowym.
Praktyczna spiżarnia pod schodami.
Gabinet / sypialnia gościnna z narożnym oknem.
Łazienka z prysznicem oraz wiatrołap.
Garaż jednostanowiskowy i kotłownia.
Poddasze (strefa nocna):
4 jasne sypialnie (w tym sypialnia główna z prywatną garderobą).
Łazienka i osobna pralnia z funkcją suszarni oraz dodatkowa garderoba dostępna z holu.
Standard i technologie
Konstrukcja: Pustak termofor (beton komórkowy), stropy betonowo-stalowe.
Fundament: Żelbetowa płyta fundamentowa – eliminuje mostki termiczne i zapewnia równomierne osiadanie budynku.
Dach: Dachówka ceramiczna (antracyt), pełne obróbki blacharskie, podbitka z blachy oraz okute kominy.
Okna i brama: Energooszczędny system Plasbud (okna 3-szybowe, brama garażowa, drzwi antywłamaniowe).
Instalacje: Rozprowadzona elektryka oraz kompletna instalacja wodno-kanalizacyjna.
Termoizolacja: Grubość styropianu 25 cm zapewnia budynkowi doskonałą charakterystykę energetyczną.
Działka i otoczenie
Działka płaska z idealną ekspozycją południową (maksymalne nasłonecznienie części dziennej).
Dojazd drogą utwardzoną (udział w drodze w cenie).
Powierzchnia działki powiększona o 1,5 ar w drodze.
Sąsiedztwo nowoczesnej zabudowy jednorodzinnej.
Finansowanie i warianty zakupu
850 000 zł brutto – stan surowy zamknięty z instalacjami (elektryka, hydraulika).
950 000 zł brutto – stan deweloperski (wylewki, tynki, docieplenie poddasza, system grzewczy: podłogowy lub grzejniki – według wyboru klienta).
Możliwość indywidualnego wykończenia domu "pod klucz".
Zapraszam do kontaktu i na prezentację – to jeden z najlepiej wykonanych domów w tej okolicy.
Szczepan Socha
Ogólne informacje
| Rodzaj | Na sprzedaż |
|---|---|
| Powierzchnia użytkowa | 184.13 m² |
| Liczba pokoi | 6 |




