NOWOCZESNY DOM Osiedle domów jednorodzinnych
Mazowieckie
Opis
Prezentujemy Państwu inwestycję kameralnego osiedla domów jednorodzinnych zlokalizowaną w malowniczej miejscowości na granicy Skubianka, Jachranka, gm. Serock, położony 500m od Zalewu Zegrzyńskiego i rzeką Narew.
To idealne miejsce dla osób poszukujących spokoju i wygody z szybkim dojazdem do Warszawy.
Całkowita powierzchnia użytkowa dla jednego domu w zabudowie bliźniaczej wynosi 178, 47m2., który znajduje się na działce o powierzchni 600m2,
Każdy z domów posiada garaż mieszczący dwa auta.
Dom w zabudowie bliźniaczej oferowany jest w standardzie deweloperskim.
Ogrzewanie: gazowe;
Media: szambo, prąd, gaz, woda;
Dojazd: drogą utwardzoną zjazd z asfaltowej
Na powierzchnię użytkową domu składają się:
Powierzchnia użytkowa parteru 107,18 m2
1. Wiatrołap 5,04 m2
2. Hol 7,84 m2
3. Kuchnia 9,77 m2
4. Pokój dzienny + jadalnia 31,32 m2
5. Pokój 10,64 m2
6. Łazienka 4,05 m2
7. Garaż dwustanowiskowy + pom. gospodarcze 38,52 m2
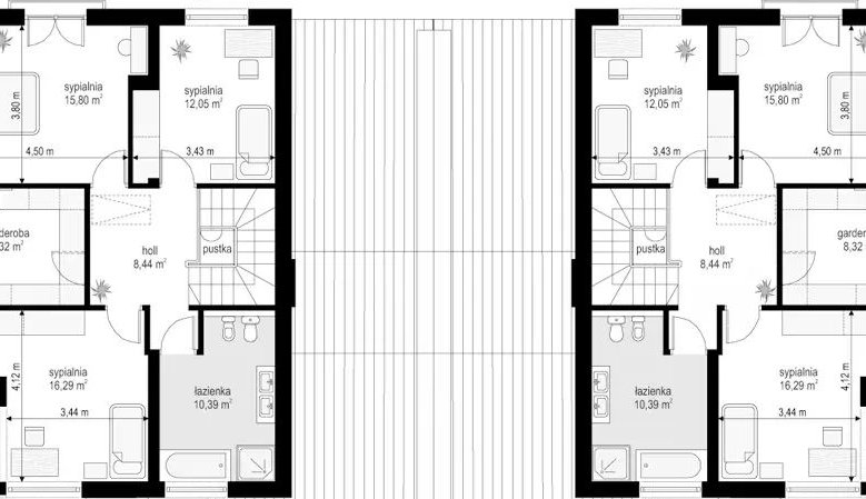
Powierzchnia użytkowa piętra 71,29 m2
1. Pokój 12,05 m2
2. Pokój 15,80 m2
3. Hol 8,44 m2
4. Garderoba 8,32 m2 możliwość przerobienia na dodatkowy pokój
5. Pokój 16,29 m2
6. Łazienka 10,39 m2
Dodatkowo w każdym z domów znajduje się schowek umieszczony nad garażem nieuwzględniony w powierzchni użytkowej.
Informacje dodatkowe:
-prąd
-gaz
-tynki
-instalacja wodno-kanalizacyjna
-dom ocieplony styropianem 20cm
-szambo 10 000m3
-okna trzy szybowe
-instalacja elektryczna według projektu
- ogrzewanie podłogowe parter, piętra
- ogrzewanie gazowe, kocioł jedno funkcyjny z zamkniętą komorą spalania
-zasobnik na ciepłą wodę 100 L
-kostka w trakcie realizacji nie ma na zdjęciach
-Stan Deweloperski
ZAKUP BEZ POŚREDNIKA
-Kupujący zwolniony z opłat PCC 2% 980 000 zł Brutto
Zapraszam do kontaktu
Ogólne informacje
| Rodzaj | Na sprzedaż |
|---|---|
| Powierzchnia użytkowa | 178.47 m² |
| Liczba pokoi | 5 |




