Nowoczesny dom z ogrodem i garażem – Sierosław, 149 m²
Wielkopolska
Opis
Na sprzedaż jeden z dwóch lokali w nowoczesnym domu dwulokalowym przy ul. Agatowej w Sierosławiu (wjazd od ul. Krętej, działka nr 82/9).
Każdy lokal to niezależna część budynku z własnym garażem, ogródkiem i infrastrukturą. Podwójna ściana konstrukcyjna (50 cm + dylatacja) gwarantuje prywatność i świetną izolację akustyczną.
Przestronny, piętrowy układ o powierzchni 149 m² z funkcjonalnym rozkładem pomieszczeń – cztery sypialnie, jasny salon z wyjściem na ogród, garaż w bryle budynku oraz własna działka.
Planowany termin oddania: grudzień 2025 / styczeń 2026.
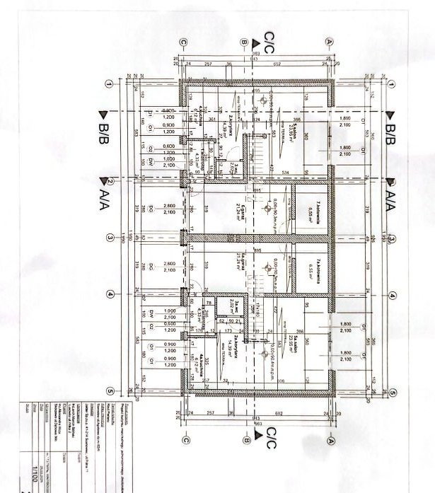
Rozkład pomieszczeń
Parter:
• Salon – 23,95 m²
• Kuchnia – 6,12 m²
• Korytarz – 14,39 m²
• Kotłownia – 6,55 m²
• Wiatrołap – 4,33 m²
• WC – 2,02 m²
Piętro:
• Sypialnia – 18,07 m²
• Sypialnia – 16,49 m²
• Pokój – 12,70 / 11,60 m²
• Pokój – 12,57 / 10,63 m²
• Korytarz – 10,56 m²
• Łazienka – 5,51 m²
Garaż: 21,24 m²
Standard wykończenia
• metoda tradycyjna, ocieplenie 20 cm styropianu
• instalacje: prąd, woda, kanalizacja, gaz
• ogrzewanie gazowe podłogowe, kocioł kondensacyjny Saunier Duval Isotwin T26 z regulatorem i zasobnikiem 42l
• stolarka: okna PVC, przesuwne HS, drzwi Wikęd, rolety elektryczne Integro
• garaż: brama KRISPOL z napędem
W cenie otrzymujesz także:
• kostkę brukową (wjazd, chodnik, opaska)
• odwodnienie rurą drenarską
• rozgarnięty humus pod trawnik
Działka
• wydzielona część działki nr 82/9, ogrodzona siatką
• teren przygotowany pod ogród
• miejsce parkingowe przed budynkiem
Lokalizacja i otoczenie
Dom znajduje się w cichej i zielonej części Sierosławia, z dala od zgiełku, ale blisko wszystkiego, co potrzebne na co dzień.
• szybki dojazd do Poznania: ul. Bukowska i S11 – 5 minut
• A2 i droga krajowa 92 – w zasięgu kilku minut
• lotnisko Poznań-Ławica – 12 minut
• plaża w Lusowie i Jezioro Lusowskie – 10 minut
• szkoła podstawowa i sklep – 5 minut
• w otoczeniu lasy, tereny spacerowe i rowerowe
Sierosław oferuje spokój i bezpieczeństwo typowe dla kameralnych miejscowości, a jednocześnie doskonałe połączenie z Poznaniem. W pobliżu znajdziesz także szkołę, przedszkole, sklepy spożywcze oraz pełną infrastrukturę, a jednocześnie masz ciszę, zieleń i tereny rekreacyjne na wyciągnięcie ręki.
Cena i warunki
• 899 000 zł za 1 lokal (do negocjacji)
• sprzedaż bez zadatku i zaliczki
• możliwość zakupu za gotówkę lub kredyt
termin oddania: marzec 2026
Zadzwoń i umów się na prezentację – Twój nowy dom w Sierosławiu czeka!
Ogólne informacje
| Rodzaj | Na sprzedaż |
|---|---|
| Powierzchnia użytkowa | 149 m² |
| Liczba pokoi | 5 |




