Nowoczesny parterowy dom w Dąbrówce - idealna lokalizacja
Wielkopolska
Opis
OFERTA NA WYŁĄCZNOŚĆ. BRAK PROWIZJI OD KUPUJĄCEGO.
Jako firma "Domy na miarę" oferujemy kompleksowe rozwiązania - projektujemy i budujemy domy dla Klientów indywidualnych w okolicach Poznania.
Oferujemy na sprzedaż wyjątkowy parterowy dom z dachem płaskim w stanie surowym zamkniętym w Dąbrówce przy ulicy Herbowej.
Dom został zaprojektowany i zbudowany przez Domy na miarę i prace będą kontynuowane do zakończenie stanu deweloperskiego. Koszt wykończenia do stanu deweloperskiego to 659 000 zł. Układ funkcjonalny, stolarka okienna oraz instalacje zostaną dopasowane do potrzeb oraz budżetu Klienta.
ENGLISH VERSION: Experience adventages of prime location neraby Poznan and quality of homes that we design and build. If you are searching for modern home perfectly suited for your needs, please contact us via e-mail or phone to discover more details about this unique intimate investment.
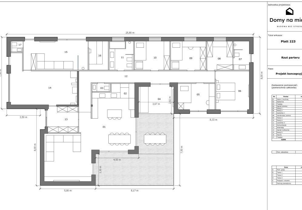
Niniejsze ogłoszenie dotyczy domu parterowego Platt 223. Cena dotyczy domu wraz z działką o powierzchni 900 m2.
PLATT 223 to dom parterowy z dachem płaskim, w którym ogród zimowy jest wkomponowany w bryłę budynku, a salon posiada wysoki sufit. Dom posiada 2 łazienki, toaletą oraz 4 sypialnie, które mogą zostać zaaranżowane również jako przestrzeń do pracy czy pokój rekreacyjno-sportowy.
To dom z bardzo jasnym podziałem na strefę dzienną oraz nocną z osobnym wydzielonym apartamentem, w którym znajduje się główna sypialnia z łazienką. Centralną część domu stanowi przestronny salon z częściowo wydzieloną kuchnią i jadalnią. Duże przeszklenia zapewniają doskonałe doświetlenie oraz widok na ogród. W domu zaprojektowano 1 stanowiskowy garaż oraz dodatkową przestrzeń, w której można zaprojektować lokal usługowy, strefę relaksu z sauną lub powiększyć powierzchnię garażu.
Do ogłoszenia dołączamy rzut - to jedynie poglądowa propozycja układu funkcjonalnego, który dopasujemy do Państwa potrzeb.
Zapewniamy sprawdzone rozwiązania oraz elastyczne podejście do każdego Klienta.
Budowa będzie kontynuowana po ustaleniu z Kupującym szczegółów i wymagań odnośnie domu, ponieważ dom budujemy na lata i musi on być dopasowany do potrzeb przyszłych mieszkańców. Dopasowanie każdego metra domu do wytycznych i budżetu jest szczególnie istotne przy budowie domu wolnostojącego, nie powinno się iść na kompromisy, jak przy zakupie gotowego domu.
Największe atuty
lokalizacja – bliskość miasta - 12 minut pociągiem do Poznania, pełna infrastruktura
budynek energooszczędny z płytą fundamentową, pompą ciepła, rekuperacją i opcjonalnie fotowoltaiką
dom wolnostojący z ciekawym podziałem na strefy
możliwość wprowadzenie zmian - min. układ funkcjonalny (ścianki działowe, liczba i rozmiar pomieszczeń, układ instalacji, liczba / rozmiar i kolor stolarki okiennej).
funkcjonalny układ pomieszczeń z podziałem na strefę dzienną i nocną
kontunuowanie prac przez firmę Domy na miarę i wykończenie do stanu deweloperskiego w cenie 659 000 zł
możliwość wykończenia pod klucz
Dlaczego warto?
LOKALIZACJA
Dąbrówka to jedna z najatrakcyjniejszych miejscowości pod Poznaniem.
Zaledwie 15km do centrum miasta i 10km do lotniska. Doskonała komunikacja – trasa S11 (1km) oraz A2 (5km).
Wszystkie wygody życia codziennego – sklepy spożywcze, lokale usługowe, przychodnia, apteka, przedszkole, szkołą, żłobek.
Najbliższe otoczenie stanowią budynki mieszkalne jednorodzinne i wielorodzinne, infrastruktura obejmuje oświetlone drogi, chodniki oraz place zabaw.
W odległości 500 m znajduje się stacja PKP (Palędzie), z której dostaniemy się do Poznania głównego w ciągu 12 minut! W tej samej odległości jest przystanek komunikacji miejskiej, z którego autobusem możemy dojechać do Poznania lub okolicznych miejscowości.
Działka znajduje się 500m od lasu zakrzewskiego, w którym wytyczono ścieżki rowerowe oraz piesze. W odległości 10 km znajdują się dwa jeziora Niepruszewskie oraz Lusowskie z pięknie zagospodarowanymi plażami i kąpieliskami.
JAKOŚĆ 'DOMY NA MIARĘ'
Nie uznajemy kompromisów, dom został zaprojektowany i zbudowany z wykorzystaniem sprawdzonych konstrukcyjnych oraz energooszczędnych rozwiązań, dzięki czemu zarówno koszt budowy jaki i użytkowania domu jest pod kontrolą.
MOŻLIWE ZMIANY
Decydując się na budowanie domów na naszych działkach, przyświecała nam fundamentalna zasada "Domy na miarę", czyli elastyczne podejście i dopasowanie do potrzeb Klienta. Z tego względu budowa będzie kontynuowana po ustaleniu z Klientem wymagań i opracowaniu projektu domu.
Dołączone do ogłoszenia wizualizacje pokazują dom z zewnątrz oraz przykłady / inspiracje wnętrza. Mogą one stanowić bazę i/lub inspirację do stworzenia projektu dla Klienta.
Zapraszamy do zapoznania się ze szczegółami oferty na naszej stronie oraz zachęcamy do kontaktu telefonicznego lub mailowego.
Twój dom. Twoja historia. My zajmiemy się resztą.
ZAPRASZAMY DO KONTAKTU
Ogólne informacje
| Rodzaj | Na sprzedaż |
|---|---|
| Powierzchnia użytkowa | 223 m² |
| Liczba pokoi | 6 |




