Nowoczesny segment 138 m2 z garażem
Mazowieckie
Opis
Mamy przyjemność zaoferować skrajny segment z 5 pokojami, garażem w bryle budynku i własnym ogrodem.
Prezentowana nieruchomość łączy w sobie nowoczesny styl oraz bliskość natury.
To doskonała propozycja dla osób szukających spokojnego miejsca do życia z jednoczesnym szybkim dostępem do miejskich udogodnień.
Inwestycja zlokalizowana wśród zabudowy jednorodzinnej w cichej i spokojnej okolicy.
Wszystkie pomieszczenia wyposażone w wysokiej klasy okna, a brak skosów zapewni możliwość pełnej aranżacji wszystkich pomieszczeń.
Na szczególną uwagę zasługuje standard deweloperski OBEJMUJĄCY:
- Konstrukcja tradycyjna murowana z cegły ceramicznej
- Posadzki cementowe
- Tynki wewnętrzne gipsowe wykonane techniką maszynową
- Ocieplenie styropianem 18 cm + tynk akrylowy
- Piec gazowy z zasobnikiem
- Ogrzewanie podłogowe obie kondygnacje
- Rozprowadzone instalacje C.O, elektryczna,-wod-kan
domofonowa
- Stolarka okienna PCV 3 szybowa
- Chodniki, podjazd wyłożone kostką
- Brama, furtka
- Teren ogrodzony
Woda miejska, kanalizacja, prąd, gaz, światłowód.
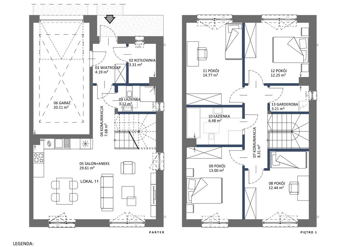
Na parterze znajdziemy :
- wiatrołap 4,19 m2
- korytarz 7,68 m2
- salon z aneksem kuchennym 29,61 m2 z bezpośrednim wyjściem na ogródek o powierzchni 384 m2
- łazienka 3,12 m2
- garaż 20,11 m2
- kotłownia 3,31 m2
Piętro to:
- cztery sypialnie 14,77 m2 , 13 m2, 12.25 m2 oraz 12,44 m2
- łazienka 6,48 m2
- korytarz 8,31 m2
- garderoba 3,21 m2
Cały teren zostanie ogrodzony, własna brama, furtka, podjazd oraz ogródek do wyłącznego korzystania.
Jeżeli szukasz wymarzonego domu dla siebie i swoich bliskich w cichej i spokojnej okolicy, koniecznie zadzwoń.
Serdecznie zapraszam.
Tel. kontaktowy:
600_88_38_26
Ogólne informacje
| Rodzaj | Na sprzedaż |
|---|---|
| Powierzchnia użytkowa | 138 m² |
| Liczba pokoi | 5 |




