Nowy dom -Nowoczesny, Energooszczędny, Twój.
Śląskie
Opis
eTa oferta to więcej niż tylko dom – to przemyślana inwestycja w jakość życia, łącząca nowoczesną architekturę z prestiżową lokalizacją na przedmieściach Pszczyny.
• Strategiczna Lokalizacja Odkryj komfort mieszkania w spokojnym otoczeniu na przedmieściu Pszczyny, z jednoczesnym szybkim dostępem do kluczowej infrastruktury.
Wszystko na wyciągnięcie ręki (1-5 minut):
• 1 minuta do szkoły podstawowej i przedszkola.
• 1 minuta do paczkomatów i przystanku darmowej komunikacji miejskiej.
• 1 minuta do kompleksu usług: supersam, przychodnia lekarska, piekarnia i sklep mięsny.
• 2 minuty do Kościoła Rzymskokatolickiego.
• 5 minut do otaczających lasów – idealne miejsce na rekreację.
Błyskawiczny dojazd do dużych miast i kluczowych tras:
• 10 minut dzieli Cię od urokliwego rynku i parku w Pszczynie.
• 15 minut do centrum handlowego i aquaparku w Tychach.
• 25 minut do centrum Bielsko-Białej i Katowic.
• Szybki dostęp do obwodnicy Pszczyna-Racibórz (2 minuty) oraz autostrad A1 w Żorach i A4 w Katowicach (20 minut)
• Wysoki Standard i Jakość Budownictwa Bezkompromisowe podejście do jakości wykonania jest widoczne na każdym etapie budowy.
• Technologia budowy
• Fundament docieplony EPS AQUA + izolacje przeciwwilgociowe
• Ściany zewnętrzne pustak ceramiczny szlifowany – grubość 25 cm.
• Ściany wewnętrzne pustak ceramiczny szlifowany - grubość 25cm, działowe 11,5 cm
• Strop – strunobetonowy+ żelbet
• Dach konstrukcja drewniana kryty blachą na rąbek stojący wraz z aluminiowym orynnowaniem.
• Okna 3 szybowe kolor antracyt - obustronny, drzwi wejściowe wraz z doświetlem, brama segmentowa antracyt sterowana elektrycznie.
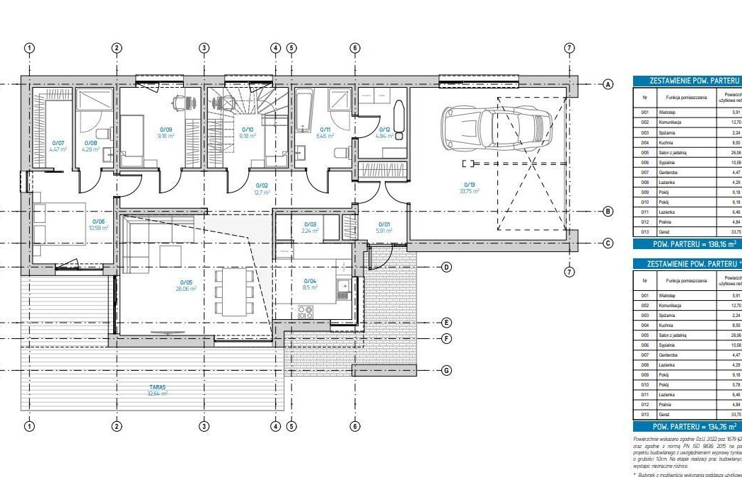
Funkcjonalność i Potencjał Aranżacyjny. Czytelny podział na strefę dzienną i prywatną, przestronny salon z wysokim sufitem, duży, dwustanowiskowy garaż oraz dodatkowe pomieszczenia, jak spiżarka czy pralnia, zapewniają maksymalną wygodę.
•Parter:
• obszerny wiatrołap,
• przedpokój,
• kuchnia wraz z jadalnią i spiżarką,
• przestronny salon z wyjściem na taras oraz wysokim sufitem.
• 2 łazienki,
• sypialnia wraz z garderobą,
• 2 pokoje,
• ogrzewany garaż dwustanowiskowy.
• kotłownia/pralnia
Możliwość adaptacji poddasza nieużytkowego
Aby umówić się na prezentację nieruchomości, poznać szczegóły warunków sprzedażowych lub uzyskać dodatkowe informacje, prosimy o kontakt telefoniczny.
Bezpośredni kontakt telefoniczny jest preferowaną i najskuteczniejszą formą komunikacji w celu omówienia wszystkich aspektów oferty.
Przedstawiona oferta ma charakter informacyjny i nie stanowi oferty handlowej w rozumieniu Art.66 par.1 Kodeksu Cywilnego.
Ogólne informacje
| Rodzaj | Na sprzedaż |
|---|---|
| Powierzchnia użytkowa | 138.16 m² |
| Liczba pokoi | 4 |




