Nowy Dom Wolnostojący na działce 945 mkw
Kujawsko-Pomorskie
Opis
OPIS OFERTY:
Na sprzedaż dom wolnostojący w stanie deweloperskim o powierzchni użytkowej około 150 m2 , który znajduje się na działce wielkości 945 m2. Działka ogrodzona siatką.
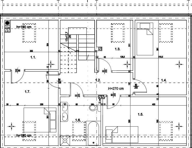
UKŁAD POMIESZCZEŃ:
Dom posiada parter, który składa się z przestrzennego salonu z aneksem kuchennym (40 m2), tarasu, łazienki (3 m2), kotłowni (4,5 m2) oraz garażu (20 m2). Na piętrze domu znajdują się następujące pomieszczenia:
3 pokoje o powierzchniach użytkowych: 12,92 m2, 12,71 m2, 13,35 m2, 2 garderoby o powierzchniach: 8,22 m2, 5,75 m2, łazienka o powierzchni 6,14 m2 oraz korytarz o powierzchni 9,60 m2.
STANDARD WYKOŃCZENIA:
Stan deweloperski. Dom ocieplony styropianem 20 cm. Ogrzewanie podłogowe, pompa ciepła. Najwyższa jakość materiałów.
BUDYNEK:
Dom z 2025 roku. Dachówka betonowa.
LOKALIZACJA:
Przyłęki, 15 km od Bydgoszczy. Doskonała lokalizacja blisko sklepów i punktów usługowych. Dom usytuowany przy rzece Noteć.
DODATKOWE INFORMACJE:
Jasne pomieszczenia dzięki oknom połaciowym.
Przydomowa oczyszczalnia ścieków.
Piękna i cicha okolica.
Zapraszam na prezentację nieruchomości i do zadawania pytań:
Bartosz Cuske
500-016-795
Ogólne informacje
| Rodzaj | Na sprzedaż |
|---|---|
| Powierzchnia użytkowa | 146.45 m² |
| Liczba pokoi | 4 |




