Okolice Marino | M3 + balkon | II piętro
Wrocław, Dolnośląskie
Opis
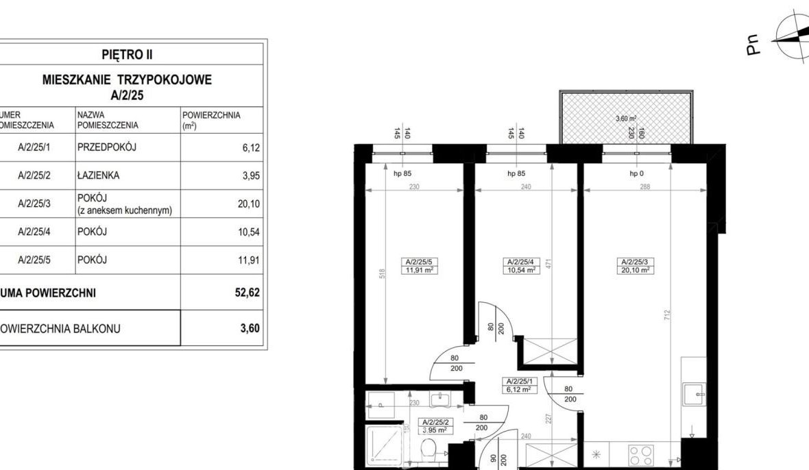
Na sprzedaż nowe mieszkanie 3-pokojowe z balkonem – Wrocław, PoświętneOferuję na sprzedaż komfortowe mieszkanie w stanie deweloperskim o powierzchni 52,62 m², zlokalizowane na II piętrze nowoczesnego budynku mieszkalnego przy ul. Rudawskiej we Wrocławiu.Lokal gotowy do odbioru!
Lista pomieszczeń:salon z aneksem kuchennym – 20,10 m²
sypialnia 1 – 11,91 m²
sypialnia 2 – 10,54 m²
przedpokój – 6,12 m²
łazienka – 3,95 m²
+ balkon – 3,60 m²
Dostępne także inne układy mieszkań!
Wysokość pomieszczeń 2,80 m zapewnia poczucie przestrzeni i lepsze doświetlenie wnętrz.
We wszystkich pomieszczeniach znajdują się przyłącza TV i Internet, co pozwala na swobodną aranżację przestrzeni mieszkalnej i domowego biura.Standard budynkunowoczesny apartamentowiec (rok realizacji 2026)
winda
monitoring części wspólnych
drzwi antywłamaniowe
ogrzewanie z sieci miejskiej
trzyszybowe okna PCV
budynek dostosowany do potrzeb osób z niepełnosprawnościami
Możliwość zakupu miejsca postojowego.
Otoczenie i komunikacjaOsiedle Poświętne to połączenie spokoju z szybkim dostępem do centrum miasta. W bezpośrednim sąsiedztwie znajdują się przystanki tramwajowe i autobusowe MPK, sklepy, punkty usługowe oraz pozostała infrastruktura niezbędna do codziennego życia.
Warunki zakupu:pierwsza wpłata 10% (zwrotne w całości w przypadku odmowy udzielenia kredytu przez bank!)
brak podatku PCC
0% prowizji dla kupującego
Miejsca parkingowe:miejsce naziemne – 30 000 zł
miejsce w garażu podziemnym – 35 000 zł
Zapraszam do kontaktu i umówienia prezentacji.W ofercie posiadam również inne mieszkania w tej inwestycji, w tym lokale dostępne w cenach promocyjnych.
Zapewniamy też obsługę kredytową - bezpłatnie!
*Niniejsza oferta ma charakter informacyjny i nie stanowi oferty handlowej w rozumieniu art. 66 §1 Kodeksu cywilnego.
Ogólne informacje
| Rodzaj | Na sprzedaż |
|---|---|
| Powierzchnia użytkowa | 52.50 m² |
| Piętro | 2 |
| Liczba pokoi | 3 |




