Oława Stanowice Nowy Bliźniak 120 mkw Bez PCC Zero Prowizji
Dolnośląskie
Opis
Zapraszam do zakupu nieruchomości przy ulicy Ogrodowej w Stanowicach - okolice Oławy. Nieruchomość to dom w zabudowie bliźniaczej, w stanie deweloperskim położony na kameralnej inwestycji. Do sprzedawanej połówki bliźniaka przynależy działka około 350 mkw, powierzchnia sprzedawanego lokalu mieszkalnego wynosi około 128.5 mkw.
Lokalizacja nieruchomości pozwala w szybkim czasie dojechać zarówno do Oławy i Wrocławia. W sąsiedztwie same domki jedno lub wielorodzinne - cisza spokój, brak hałasu z głównej drogi.
Nieruchomość budowana według wszystkich norm z 2026 roku, z materiałów wysokiej jakości, na całej powierzchni parteru i piętra ogrzewanie podłogowe oraz w cenie pompa ciepła.
Nieruchomość składa się z następujących pomieszczeń:
PARTER:
Korytarz 4,9 mkw
Klatka Schodowa 6,6 mkw
Salon z aneksem kuchennym 38,54 mkw
Łazienka 2.1 mkw
Pomieszczenie Gospodarcze 2 mkw
Garaż jednostanowiskowy 19,9 mkw
RAZEM - 74,05 mkw
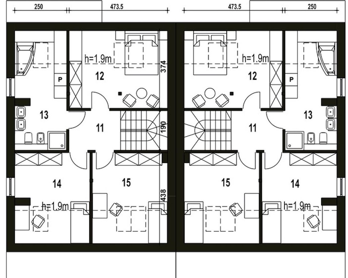
PIĘTRO:
Korytarz 4,60 mkw
Pokój 12.72 mkw
Łazienka 12.07 mkw
Pokój 10,06 mkw
Pokój 14.85 mkw
RAZEM - 54,30 mkw
OKOLICA:
Komunikacja autobusowa
Auto: Autostradowa Obwodnica Wrocławia, Oława, Wrocław
Kameralne osiedle domków
MEDIA:
Prąd, woda
Ogrzewanie pompa ciepła
Kanalizacja
Internet
Zainteresowane osoby bardzo proszę o kontakt telefoniczny 7 dni w tygodniu w godzinach 9-23
OFERTA BEZ PROWIZJI !!!
Nieruchomość z rynku pierwotnego - brak opłaty pcc 2% !!!
Ogólne informacje
| Rodzaj | Na sprzedaż |
|---|---|
| Powierzchnia użytkowa | 128 m² |
| Liczba pokoi | 4 |




