OLIMIPIJSKA!
Katowice, Śląskie
Opis
--------- Katowice, Olimpijska!! ----------
Zamieszkaj na szczycie Katowic – w najwyższym budynku mieszkalnym miasta, skąd roztacza się niesamowity widok na całą panoramę.
Prestiżowa lokalizacja, nowoczesna architektura i wyjątkowe udogodnienia czekają na Ciebie w tym unikalnym apartamencie na 29-tym piętrze. To niepowtarzalna okazja, by zamieszkać w miejscu, które łączy komfort, luksus i panoramiczną przestrzeń.
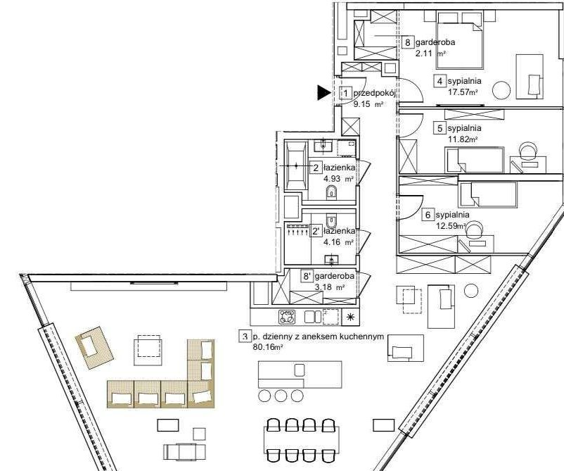
Apartament o powierzchni 146,57 m² to przestronna i funkcjonalna przestrzeń, w skład której wchodzą:
ogromny salon z aneksem kuchennym (okoł0 80m2), idealny na rodzinne spotkania i relaks,
trzy komfortowe sypialnie, w tym jedna o powierzchni 17,81 m², z własną garderobą (2,11 m²),
dwie duże łazienki,
dodatkowa garderoba i przestronny przedpokój, zapewniające wygodę i funkcjonalność na co dzień.
Widok? Absolutnie zapierający dech w piersiach – kierunki wschód, południe i zachód zapewniają nieustanny dostęp do pięknych krajobrazów, a taras widokowy na 35. piętrze to miejsce, gdzie można delektować się panoramą miasta na wyciągnięcie ręki.
Technologia i komfort: Ogrzewanie nawiewowe z miejskiej sieci, z systemem podłogowym, gwarantuje przyjemny klimat przez cały rok.
Cena sprzedaży 2 500 000pln.
Istnieje także możliwość zakupu dwóch dodatkowych miejsc w cenie 100 000pln. Mozliwość zakupu również komórki lokatorskiej w cenie 20 000pln.
Termin realizacji: planowane oddanie inwestycji na listopad/grudzień 2025 roku.
Możliwa sprzedaż na zasadach cesji umowy deweloperskiej- Podana cena jest brutto, a kupujący nie płaci podatku PCC 2%.
Dodatkowe koszty to opłaty notarialne i wynagrodzenie pośrednika.
Zapraszam do kontaktu.
Arek Chrabaszcz
Art Property
Ogólne informacje
| Rodzaj | Na sprzedaż |
|---|---|
| Powierzchnia użytkowa | 146.57 m² |
| Liczba pokoi | 4 |




