Osiedle Zagajnik (domy) | 7-pok. | 25
Poznań, Wielkopolska
Opis
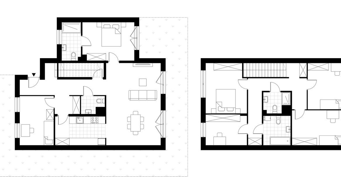
7-pokojowy dom numer 25 w Inwestycji Osiedle Zagajnik (domy) Dewelopera PWD
Las Umultowski (8 minut spacerem)
Jezioro Umultowskie (3 minuty rowerem)
Las Piątkowski (5 minut rowerem)
Przystanek autobusowy (3 minuty spacerem)
Aldi, Kaufland, Lidl (4-6 minut samochodem)
UAM Morasko z pływalnią, kortami tenisowymi, stadionem, halą uniwersytecką (1 minuta spacerem)
Osiedle Zagajnik (domy) - poznaj inwestycję
Osiedle Zagajnik – gdy jednocześnie cenisz bliskość natury i miasta
Osiedle Zagajnik to kolejna inwestycja PWD Deweloper, w której zamieszkać będą chciały osoby, które jednocześnie cenią sobie bliskość natury i wygodę miasta. Inwestycja zlokalizowana jest na poznańskim Umultowie w okolicy Lasu Umultowskiego, Rezerwatu Żurawiniec i Kampusu Morasko.
Projekt podzielony jest na trzy etapy, w ramach których zaplanowane jest wybudowanie budynków wolnostojących typu bliźniak, szeregowców i zabudowy wielorodzinnej.
W pierwszym i drugim etapie inwestycji powstanie łącznie:
12 domów jednorodzinnych w zabudowie bliźniaczej (bezczynszowe),
8 domów jednorodzinnych w zabudowie szeregowej,
56 mieszkań zlokalizowanych w zabudowie szeregowej (bezczynszowe).
Osiedle wyróżniać się będzie spójną i elegancko zaprojektowaną zabudową. Nazwa inwestycji sugeruje charakter osiedla i okolicy, ponieważ w bezpośrednim sąsiedztwie znajduje się zalesiony teren, graniczący z ogrodami przynależnymi do zabudowy bliźniaczej. Samo osiedle daje również możliwość zamieszkania wśród zieleni, ponieważ znaczny jego udział stanowić będą drzewa i krzewy.
Mieszkańcy domów wolnostojących i szeregowców zyskają możliwość urządzenia własnego ogrodu bądź tarasu. W zależności od dokonanego wyboru lokalu, właściciele będą mieli swoje garaże, wiaty, piwnice. Dodatkowym atutem jest możliwość personalizacji mieszkania / domu wraz z opcją wykończenia pod klucz oraz zaprojektowania ogrodu.
Lokalizacja
Inwestycja zlokalizowana jest w północnej części Poznania, pomiędzy ulicami Zagajnikową i Naramowicką w otoczeniu licznych terenów zielonych. Sąsiedztwo Jeziora Umultowskiego i Lasu Umultowskiego ze Stawami Północnym i Południowym, Rezerwatu Żurawiniec i Rezerwatu Meteorytów umożliwiają czynny wypoczynek dla całej rodziny. Bliskość przystanków autobusowych zapewni dogodną komunikację z centrum miasta, co dodatkowo usprawni planowana trasa tramwajowa, która ma zostać doprowadzona do Umultowa.
Wybierając tę lokalizację możesz liczyć na:
dogodny dostęp do centrum miasta,
sąsiedztwo obiektów edukacyjnych i sportowych np. Zespół Szkół Szkolno-Przedszkolny, UAM Morasko wraz z pływalnią i innymi obiektami sportowymi,
bliskość terenów zielonych, z licznymi ścieżkami rowerowymi i spacerowymi.
Wszystkie wskazane ceny są cenami brutto i obejmują lokal wykończony w standardzie „deweloperskim”.
* Do cen domów należy dodatkowo doliczyć koszt udziału w drodze 1 000,00 zł brutto (nie uwzględniony w prezentowanej cenie).
Osiedle Zagajnik (domy) - lokalizacja
Umultowo, ul. Zagajnikowa
6,7 km do centrum
6 min. spacerem do przystanku autobusowego
5 min. samochodem do przystanku tramwajowego
dojazd do centrum: 21 min samochodem
Istotne punkty w okolicy inwestycjiPrzystanek autobusowy (412 m, 6 minut spacerem)
Przedszkole (465 m, 7 minut spacerem)
Szkoła Wyższa (541 m, 8 minut spacerem)
Apteka (709 m, 10 minut spacerem)
Sklep: Żabka (727 m, 10 minut spacerem)
Poczta (770 m, 11 minut spacerem)
Piekarnia (774 m, 11 minut spacerem)
Lekarz (953 m, 13 minut spacerem)
Ogólne informacje
| Rodzaj | Na sprzedaż |
|---|---|
| Powierzchnia użytkowa | 192.40 m² |
| Liczba pokoi | 7 |




