ostatni dom parterowy. Rąbień ab.
Łódzkie
Opis
Jeżeli chciałabyś/chciałbyś zamienić miejski zgiełk i pęd na spokojną, piękną okolicę, by po powrocie do domu cieszyć się relaksem wśród kojącej przyrody - być może ta oferta jest właśnie dla Ciebie.
A co byś powiedział na to, gdyby komfort zamieszkania w takiej sielankowej okolicy dodatkowo połączony był z dobrym dojazdem do miasta? A gdyby jeszcze dodać, że w tym magicznym miejscu jest najczystsze powietrze wśród miejscowości otaczających Łódź? Jesteś zainteresowana/zainteresowany? Zapraszam dalej.
Parterowy bliźniak z garażem usytuowany w miejscu pełnym zieleni oraz najzdrowszego powietrza w okolicach Łodzi.
Dookoła znajdują się piękne tereny zachęcające do spaceru bądź też uprawiania sportu.
W sprzedaży pozostał jeszcze ten jeden ostatni dom.
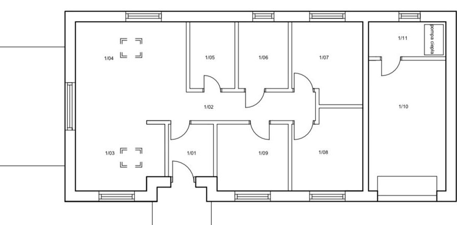
W salonie znacznie podniesiony sufit około 4 metrów. Sufity wszędzie wykończone!
Dom sprzedawany jest w stanie developerskim, zdjęcia są jedynie wizualizacją pokazującą możliwości aranżowania przestrzeni w środku tego domu.
Media: prąd, woda z sieci, kanalizacja, internet Toya. Gaz jest w drodze obok inwestycji.
Poza tym każdy dom posiada ekstra: dach przygotowany pod instalację fotowoltaiczną, rekuperację, pompę ciepła (niskie koszty utrzymania).
Konstrukcja dachu: wiązary (foto załączone do oferty).
Standard energetyczny budynku spełniający ostrzejsze wymogi dot. energooszczędności WT 21.
Okna antywłamaniowe 3-szybowe, 6-cio komorowe.
Dach: blachodachówka.
Ogrzewanie: podłogowe.
Podatek PCC 0%
Prowizja 0%
Blisko: przystanek autobusowy/bus, sklep spożywczy, prywatne przedszkole, stomatolog, biblioteka.
Dodatkową atrakcją samej lokalizacji jest stadnina Koni 'Stasiakówka' co oznacza, że teren jest bogaty również w szlaki konne.
Po więcej informacji zapraszam do kontaktu 735 957 444
Powyższa oferta ma charakter informacyjny i nie stanowi oferty handlowej w rozumieniu art.66 1 kodeksu cywilnego oraz innych właściwych przepisów prawnych.
Ogólne informacje
| Rodzaj | Na sprzedaż |
|---|---|
| Powierzchnia użytkowa | 104.61 m² |
| Liczba pokoi | 4 |




