Parterowy dom w zabudowie bliźniaczej z ogrodem
Lubuskie
Opis
Leśna Polana – nowoczesny dom parterowy z ogrodem
Nowa inwestycja Leśna Polana – domy parterowe w zabudowie dwulokalowej w spokojnej, zielonej części Płotów, przy bezpośrednim sąsiedztwie lasu. Kameralne osiedle zapewnia prywatność i komfort codziennego życia.
Powierzchnia użytkowa: 76,48 m²
Liczba pokoi: 4
Prywatny ogród: ok. 300 m²
Miejsce postojowe: przy budynku
Status: w trakcie realizacji
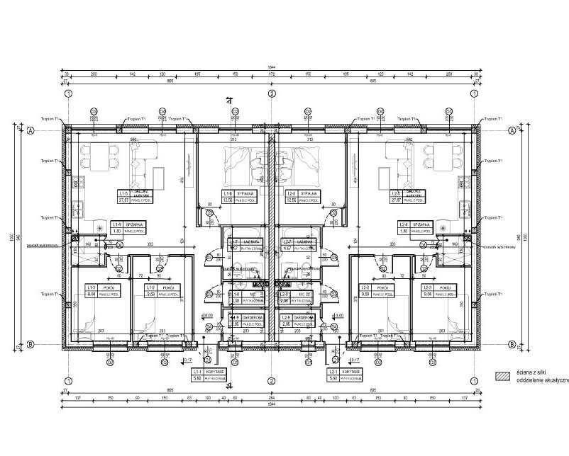
Układ domu
Salon z aneksem kuchennym – 27,87 m²
3 niezależne pokoje
Łazienka + oddzielne WC
Garderoba i spiżarnia
Wiatrołap i komunikacja
Funkcjonalny układ parterowy z wyraźnym podziałem na strefę dzienną i prywatną.
Standard i wykończenie
Budynek murowany, energooszczędny
Ogrzewanie podłogowe w całym domu
Piec gazowy
Ściany z betonu komórkowego + 20 cm izolacji
Wygłuszone ściany wewnętrzne
Dach czterospadowy z dachówką
Stolarka okienna PVC / aluminium / drewno
Wentylacja grawitacyjna
Możliwość zmian w układzie wnętrza na etapie budowy
Otoczenie i lokalizacja
Prywatny ogród ok. 300 m²
Kameralne osiedle
Spokojna i zielona okolica
Blisko sklepy, szkoły, przedszkola i komunikacja
Umów się na prezentację
Zainteresowała Cię inwestycja Leśna Polana? Skontaktuj się z nami i umów się na prezentację, aby poznać szczegóły projektu oraz zobaczyć lokalizację na żywo.
Podczas spotkania:
przedstawimy dokładny układ domu i możliwości aranżacyjne,
omówimy standard wykończenia oraz etap realizacji inwestycji,
odpowiemy na wszystkie pytania dotyczące zakupu.
Zapraszamy do kontaktu telefonicznego lub mailowego w celu ustalenia dogodnego terminu spotkania.
Liczba domów jest ograniczona – zarezerwuj swój już dziś.
Ogólne informacje
| Rodzaj | Na sprzedaż |
|---|---|
| Powierzchnia użytkowa | 76.48 m² |
| Liczba pokoi | 4 |




