Piękna rezydencja przy lesie w stylu Vastu w standardzie premium
Wielkopolska
Opis
Nieruchomość położona jest pośród pól i lasów, przy ścianie lasu oraz w sąsiedztwie rzeki
Warty, która w tym miejscu zachowuje swój dziki, nieuregulowany
charakter. Okolica jest spokojna i pełna uroku — rankiem często można
zobaczyć jelenie, sarny czy dziki. To miejsce, gdzie rytm życia wyznacza
natura, z dala od miejskiego zgiełku.
Dom znajduje się na krańcu wsi Orkowo, woj. wielkopolskie, powiat
śremski.
- 13 min do Rogalina
- 10 min do Śremu
- 6 min do sklepu Dino
- w pobliżu przystanek autobusowy z dojazdem do Poznania i Śremu
- do Poznania dojazd ok 30 minut
------------------------------------------------------------------------
Dom - styl, konstrukcja i wykończenie
Dom został zbudowany zgodnie z zasadami Vastu - stylu architektonicznego skupiającego się na harmonii pomiędzy człowiekiem a materią w taki sposób, aby wspierać dobrostan i pomyślność mieszkańców np. poprzez lepszy sen czy komfort użytkowania.
- Ściany wykończone naturalnymi farbami glinianymi.
- Wnętrza były czyszczone wyłącznie naturalnymi środkami ( na wyposażeniu:
parownica).
- Instalacje wodne w całości wykonane z miedzi — bez elementów
plastikowych.
- Młynek (rozdrabniacz)w zlewie.
- Ocieplenie: 20 cm grafitowego styropianu.
- Dom zaprojektowano na wzgórzu, by zachować naturalny krajobraz i
lokalny ekosystem.
- Układ wnętrza maksymalnie wykorzystuje światło dzienne i sprzyja
koncentracji podczas pracy.
------------------------------------------------------------------------
Wyposażenie wnętrza
Wnętrze urządzono z użyciem naturalnych, trwałych materiałów:
- Meble z litego drewna (dąb, teak, mango), w większości wykonane na
zamówienie.
- Blaty z naturalnego granitu.
- Ściany zdobi komplet obrazów hiszpańskiej artystki Mariny Berdalet,
stworzony specjalnie dla tego domu.
- Wszystkie główne urządzenia AGD marki SMEG, w tym duży piekarnik 90
cm.
------------------------------------------------------------------------
Instalacje i udogodnienia
- Klimatyzacja.
- Ogrzewanie podłogowe z 11 niezależnymi sekcjami sterowania.
- Kominek — do uruchomienia na zimowe wieczory.
- System alarmowy.
- Rolety sterowane z poziomu aplikacji.
- Filtr wody z naturalnym zmiękczaczem.
- Dwa domofony (parter i piętro).
- Powietrzna pompa ciepłej wody użytkowej (na lato).
- Stabilny, wysokiej jakości internet; w wyposażeniu znajduje się
również mechaniczny wyłącznik WiFi umożliwiający zredukowanie emisji
fal na czas snu.
------------------------------------------------------------------------
Ogród i działka
Kompleksowo zaprojektowany ogród, zaplanowany tak,
aby od wiosny do jesieni stale kwitły różne gatunki roślin:
- 15 stref nawodnienia z oświetleniem, sterowanych przez WiFi.
- Automatyczny system nawadniania.
- Prywatne wyjście bezpośrednio do lasu, który ciągnie się nieprzerwanie
aż do następnej miejscowości.
- Ogród ma 7 lat a wiele nasadzeń to drzewa wieloletnie (m.in. 30-letnie
sosny).
- Szereg nasadzeń owocowych, brzozy oraz wydzielony warzywniak.
Strefy rekreacyjne na działce:
- miejsce do gry w piłkę,
- strefa leżaków i odpoczynku,
- miejsce na ognisko,
- liczne, wydzielone przestrzenie niezależne od siebie.
Dodatkowa informacja: wzdłuż granicy działki przebiega rów melioracyjny.
------------------------------------------------------------------------
To wyjątkowa nieruchomość łącząca życie blisko natury z wysokim
standardem i nowoczesnymi rozwiązaniami. Dom zaprojektowano z myślą o
zdrowiu, komforcie i estetyce — naturalne materiały, dopracowane
instalacje i przemyślany ogród tworzą spójną, harmonijną całość.
Ta nieruchomość jest idealna dla osób szukających domu w zgodzie z naturą, które cenią ciszę, przestrzeń i bliskość lasów oraz rzeki. Spodoba się rodzinie lub parze chcącej mieszkać zdrowo, w otoczeniu naturalnych materiałów, z ogrodem dającym owoce, warzywa i prywatną przestrzeń do rekreacji. To także świetny wybór dla kogoś, kto pracuje zdalnie i pragnie połączyć komfort nowoczesnego domu z harmonią i energią miejsca.
Zapraszamy do kontaktu i na prezentację — tę nieruchomość najlepiej
ocenić na żywo.
Ogólne informacje
| Rodzaj | Na sprzedaż |
|---|---|
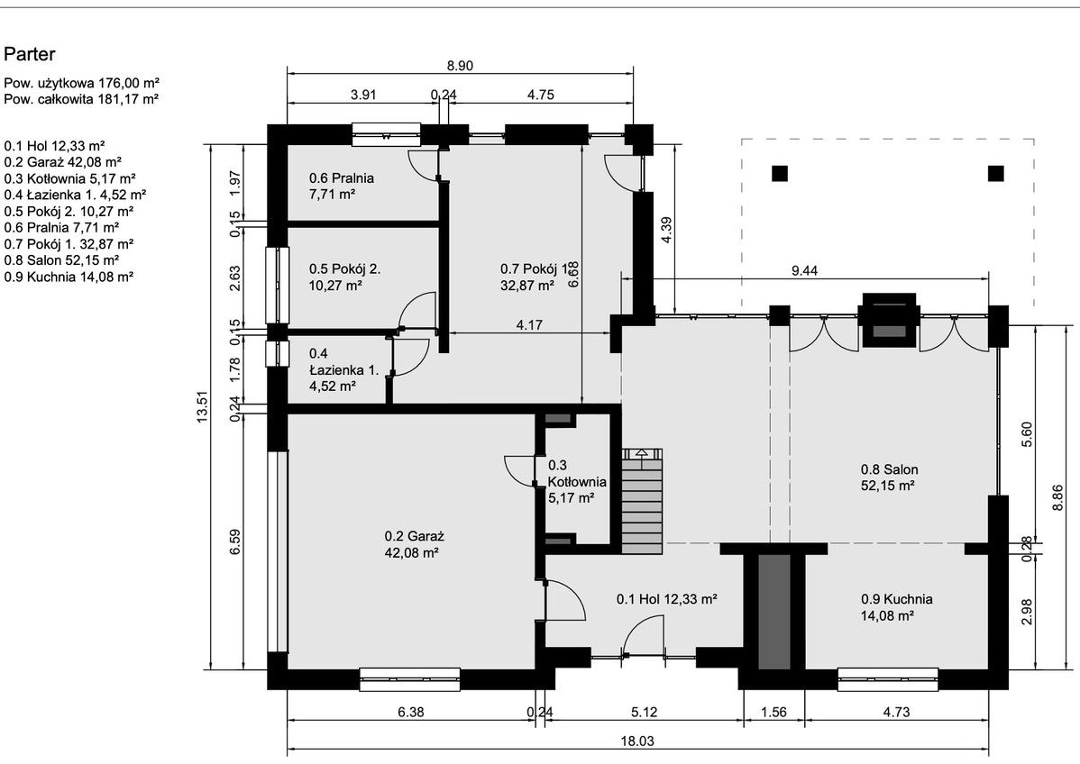
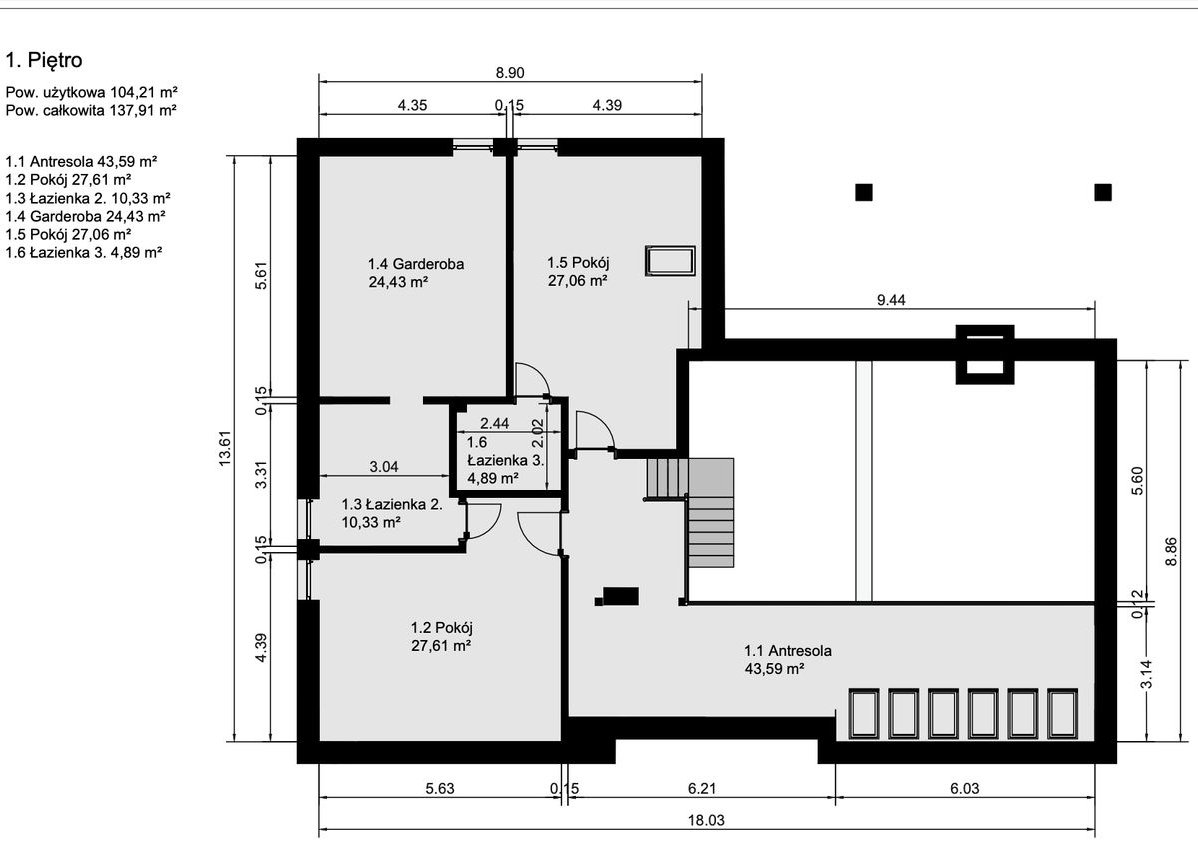
| Powierzchnia użytkowa | 319.08 m² |
| Liczba pokoi | 5 |




