Pilotów 21 | mieszkanie 2-pok. | C/2
Gdańsk, Pomorskie
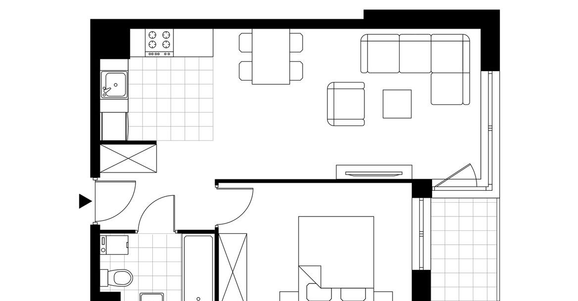
Opis
2-pokojowe mieszkanie numer C/2 na parterze w Inwestycji Pilotów 21 Dewelopera Pilotów 21 Sp. z o.o.
Dostępność i funkcjonalność
Bezpieczeństwo i komfort
Kameralność i dbałość o szczegóły
Pilotów 21 - poznaj inwestycję
Pilotów 21. Osiedle najwyższych lotów.
Osiedle Pilotów 21 to kameralna inwestycja, dająca gwarancję indywidualnego podejścia do Klienta. Obejmuje tylko jeden budynek mieszkalny o sześciu kondygnacjach nadziemnych, co przekłada się na dbałość o szczegóły.
Dbamy o komfort i bezpieczeństwo
Przede wszystkim klatki schodowe i garaże wyposażone są w instalację bezpieczeństwa pożarowego z sygnalizacją pożaru i funkcją automatycznego oddymiania. Nawet ozdobne płyty meblowe zastosowane w przestrzeniach wspólnych są ognioodporne. Wnętrza i elewacje zostały wykończone w podwyższonym standardzie. W elewacji zastosowano laminaty wysokociśnienowe HPL, przestrzenie wspólne wyłożone są płytkami gres. Aby mogli się Państwo cieszyć spokojnym otoczeniem i bliskością zieleni przez cały rok, udostępniamy Państwu balkony zaprojektowane w formie loggii. Dzięki temu mogą Państwo zaaranżować je w przytulną, słoneczną przestrzeń osłoniętą od wiatru z jednej lub dwóch stron. Ze słońca mogą się Państwo cieszyć również dzięki temu, że osiedle Pilotów 21 posiada dziedziniec usytuowany od strony południowej.
Miejsce bez ograniczeń
Ważnym aspektem, podnoszącym komfort życia, jest fakt, iż osiedle Pilotów 21 oferuje dodatkową przestrzeń w formie komórki lokatorskiej. W związku z tym każde z mieszkań ma przypisaną jedną z nich. Godnym uwagi jest fakt, że w każdej klatce znajduje się cichobieżna winda, pozwalająca się dostać na każde piętro. Bez wątpienia sprawia to, że wspólna przestrzeń jest przyjazna dla niepełnosprawnych, ludzi starszych i dla młodych rodziców.
Podróżuj tak, jak lubisz
Na koniec, dla zmotoryzowanych nie zabraknie miejsc postojowych. Dwupoziomowy garaż podziemny mieści aż 123 pojazdy, a na powierzchni dostępnych jest 11 miejsc przeznaczonych dla niepełnosprawnych. Z pewnością rowerzyści również znajdą bezpieczne miejsca do parkowania, tak przed budynkiem, jak i w garażu. Łącznie daje prawie 90 stanowisk dla rowerów, z czego aż 50 w hali garażowej.
Ciesz się spokojem bez rezygnacji z zalet miasta
Pilotów 21 - lokalizacja
Gdańsk Wrzeszcz, ul. Pilotów
7,1 km do centrum
2 min. spacerem do przystanku autobusowego
9 min. spacerem do przystanku tramwajowego
12 min. spacerem do stacji SKM
dojazd do centrum: 22 min samochodem
Istotne punkty w okolicy inwestycjiSklep: Żabka (11 m, 1 minuta spacerem)
Sklep: Lewiatan (104 m, 2 minuty spacerem)
Przedszkole (110 m, 2 minuty spacerem)
Lekarz (111 m, 2 minuty spacerem)
Przystanek autobusowy (140 m, 2 minuty spacerem)
Park (406 m, 6 minut spacerem)
Piekarnia (501 m, 7 minut spacerem)
Apteka (556 m, 8 minut spacerem)
Przystanek tramwajowy (658 m, 9 minut spacerem)
Szkoła Podstawowa (775 m, 11 minut spacerem)
Poczta (778 m, 11 minut spacerem)
Stacja SKM (844 m, 12 minut spacerem)
Ogólne informacje
| Rodzaj | Na sprzedaż |
|---|---|
| Powierzchnia użytkowa | 42.61 m² |
| Liczba pokoi | 2 |




