Przepiękna kamienica na sprzedaż
Warszawa, Mazowieckie
Opis
Piękna, odrestaurowana kamienica w sercu Warszawy na sprzedaż
ENGLISH DESCRIPTION BELOW - PLEASE DO NOT HESITATE TO CONTACT US
→ OPIS NIERUCHOMOŚCITa przepiękna, historyczna, przedwojenna kamienica w połączeniu z wyjątkową lokalizacją stanowi solidną inwestycję.
Nieruchomość podzielona jest na:
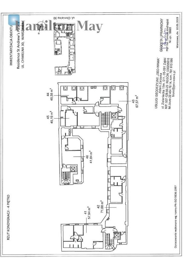
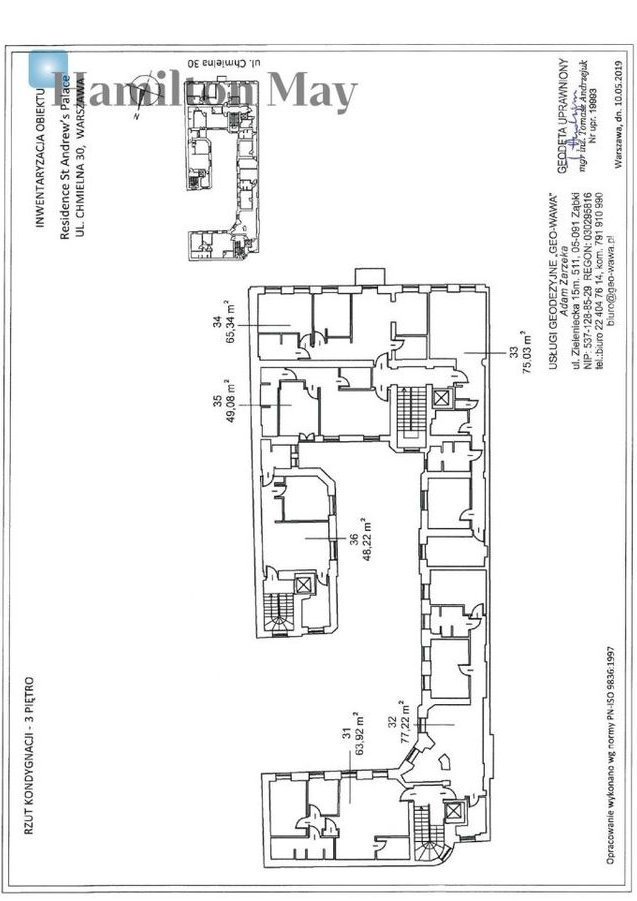
część apartamentową, w której znajdują się 24 apartamenty w różnych konfiguracjach i metrażach.
Apartamenty są w pełni wyposażone oraz przeznaczone pod wynajem krótkoterminowy.
Mieszkania znajdują się w trzech oddzielnych klatkach (A, B, C), każda z własną windą. Apartamenty mają powierzchnię 1526 m2.
Dodatkowo na terenie nieruchomości znajduje się 7 lokali usługowo-handlowych o łącznej powierzchni 369 m2. Lokale cieszą się dużą popularnością wśród najemców i są obecnie w większości wynajęte.
Działka ma powierzchnię 816m2.
Numer oferty: 19264
Niniejsze ogłoszenie ma charakter wyłącznie informacyjny i nie stanowi oferty handlowej w rozumieniu art. 66 §1 Kodeksu cywilnego.
Hamilton May pobiera prowizję za sprzedaż tej nieruchomości, płatną w momencie podpisania umowy sprzedaży.
- - - - - - - - - - - - - - - - - - - - - - - - - - - - - - - - - - - - - - - - - - - - - - - - - -
A beautiful, restored tenement house in the heart of Warsaw for sale
→ PROPERTY DESCRIPTIONThis beautiful, historic, pre-war tenement house combined with its unique location is a solid investment .
The property is divided into:
The apartment section comprises 24 apartments in various configurations and sizes. The apartments are fully furnished and designed for short-term rentals. The apartments are located in three separate staircases (A, B, C), each with its own elevator . The apartments have an area of 1,526 m².
Additionally, the property includes seven retail and service units with a total area of 369 m². These units are very popular with tenants and are currently mostly leased.
The plot has an area of 816m2.
Reference number: 19264
This advertisement is for informational purposes only and does not constitute a commercial offer as defined in Article 66 §1 of the Polish Civil Code.
Hamilton May charges a success fee for the sale of this property, chargeable on signing of the sales agreement.
Ogólne informacje
| Rodzaj | Na sprzedaż |
|---|---|
| Powierzchnia użytkowa | 1,888.45 m² |




