Przestronne 3 pokoje 74 m² z garażem i komórką – świetna lokalizacja!
Warszawa, Mazowieckie
Opis
Zapraszamy do zakupu przestronnego, dwustronnego mieszkania w jednej z najlepszych lokalizacji na Ursynowie
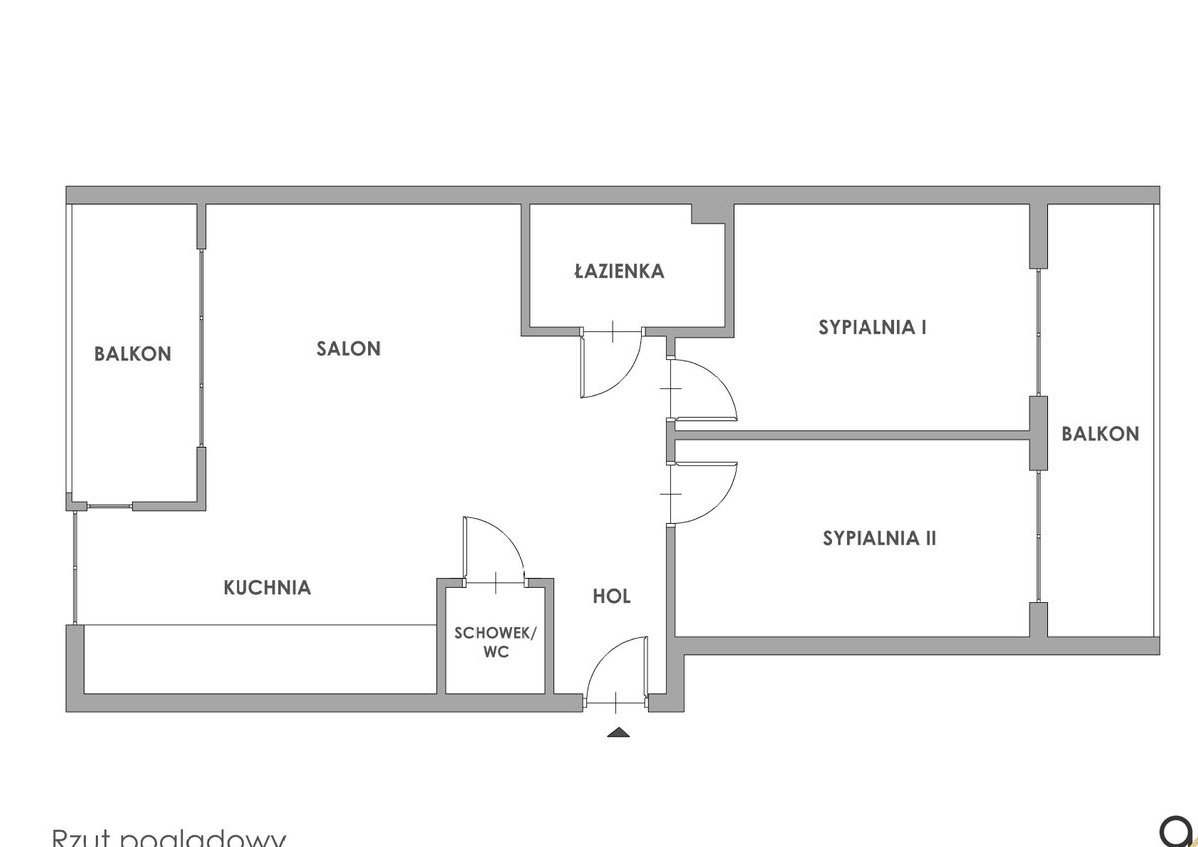
Ta 74-metrowa przestrzeń z dwoma loggiami, garażem i komórką lokatorską to idealna propozycja dla osób, które cenią wygodę, świetną komunikację i spokojne, zielone otoczenie. Mieszkanie jest dwustronne, bardzo ustawne i daje ogromny potencjał aranżacyjny - idealne do stworzenia własnego, nowoczesnego wnętrza.
ATUTY MIESZKANIA
Dwustronne (północ – południe), bardzo jasne, a jednocześnie nie nagrzewające się latem
Duży salon z kuchnią, 2 ustawne sypialnie.
Garderoba z możliwością przerobienia na drugie WC.
Łazienka z wanną.
Dwie loggie – jedna od wewnętrznego patio (idealna pod dzieci/psa).
Pierwsze piętro, wewnętrzny balkon na poziomie patio – wyjątkowo praktyczne.
Mieszkanie jest ciche, jako ostatnie na klatce schodowej
OSIEDLE
Nowoczesne osiedle z 2007 roku – zamknięte, monitorowane, z ochroną 24/7.
Na terenie znajduje się zielone patio z placem zabaw i piaskownicą.
LOKALIZACJA – STARY IMIELIN, UL. ALTERNATYWY 4
Jedna z najbardziej cenionych części Ursynowa. Spokojna, zielona, a jednocześnie świetnie skomunikowana.
Komunikacja
Metro Imielin – 10 min pieszo
Autobusy:
Imielin Północny – 3–4 min
Alternatywy – 5 min
Linie: 179, 136, 503, 715, 737, N83.
W okolicy (dosłownie kilka minut pieszo):
Lidl – 150 m
Shell – 200 m
Żabka – 120 m
Szpital Południowy – 350 m
Poczta, paczkomat InPost, apteki
Szkoły, przedszkola, żłobki
Siłownie, kawiarnie, restauracje
Rekreacja i wyjazdy z miasta
Tuż obok powstaje duży park linearny przy POW – idealny na spacery i bieganie.
Bliskość obwodnicy S2 umożliwia ekspresowy dojazd w stronę centrum, lotniska, Wilanowa i innych dzielnic.
DODATKOWE INFORMACJE
Czynsz: ok. 1450 zł
Komórka lokatorska 1,6 m² – dodatkowo płatna 15.000 zł
Miejsce garażowe: dodatkowo płatne 35.000 zł
Grunty uregulowane
Możliwość pozostawienia części mebli
Możliwość zakupu na kredyt - Mieszkanie posiada Księgę Wieczystą
To bardzo przestronne, dwustronne mieszkanie w świetnej lokalizacji – idealne dla rodziny, pary lub jako inwestycja. Wymaga odświeżenia, ale ma ogromny potencjał aranżacyjny i znajduje się w jednym z najlepszych punktów Ursynowa.
W razie dodatkowych pytań proszę o kontakt telefoniczny lub SMS/WhatsApp. Jesteśmy dostępni: poniedziałek–piątek 8:00–20:00 / soboty i niedziele 9:00–16:00
-
-
-
Niniejsza informacja nie stanowi oferty w rozumieniu Kodeksu Cywilnego i ma wyłącznie charakter informacyjny. Sprzedający nie odpowiada za ewentualne błędy lub nieaktualność ogłoszenia.
Ogólne informacje
| Rodzaj | Na sprzedaż |
|---|---|
| Powierzchnia użytkowa | 74.20 m² |
| Liczba pokoi | 3 |




