Przestronne 3 pokojowe mieszkanie w stanie deweloperskim z balkonem!
Dolnośląskie
Opis
Biuro Nieruchomości New Home oferuje na sprzedaż nowe 3 pokojowe mieszkanie położone na pierwszym piętrze w budynku mieszkalnym wybudowanym w 2026r. przy ul. Staroszkolnej w Bolesławcu.
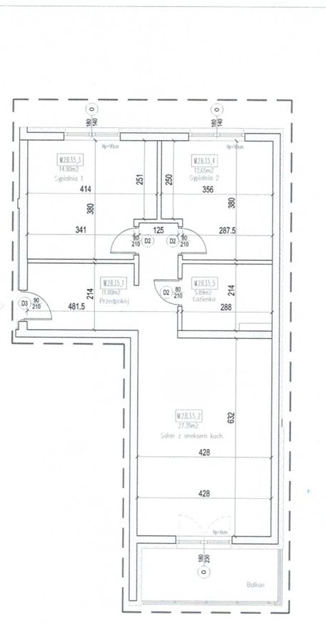
Lokal mieszkalny o pow. użytkowej 72m2 składa się z :
o salonu z aneksem kuchennym - 29m2
o pokoju - 12,65 m2
o pokoju - 14,80m2
o łazienki - 5,90 m2
o przedpokoju - 11,80 m2
Zdjęcia zamieszczone w ofercie stanowią przykład aranżacji wnętrz. Mieszkanie jest w stanie deweloperskim.
Dodatkowym atutem jest balkon od strony południowej, który stanowi idealne miejsce do wypoczynku i relaksu w słoneczne dni.
WAŻNE INFORMACJE:
- mieszkanie w stanie deweloperskim z wygodnym układem funkcjonalnym,
- okna PCV trzyszybowe,
- rolety zewnętrzne antywłamaniowe
- możliwość dokupienia miejsca garażowego w podziemiu cena 45000
- budynek mieszkalny z 2026r.
- winda,
-miejsca parkingowe dostępne przed blokiem,
-dostępna zielona strefa relaksu,
-elewacja wykończona nowocześnie,
Bardzo niskie koszty utrzymania nieruchomości ok. 500zł ( ogrzewanie wliczone w cenę czynszu)
Lokalizacja nieruchomości to kolejny atut. W pobliżu dostępne są sklepy, park, szkoły oraz plac zabaw.
Zapraszamy na prezentację!
Ogólne informacje
| Rodzaj | Na sprzedaż |
|---|---|
| Powierzchnia użytkowa | 72.22 m² |
| Piętro | 1 |
| Liczba pokoi | 3 |




