Przestronne 4 pokoje | 88,22 m² |Nowy Targówek
Warszawa, Mazowieckie
Opis
Mam przyjemność zaprezentować Państwu wyjątkowo komfortowe i funkcjonalne 4-pokojowe mieszkanie o powierzchni 88,22 m², usytuowane na piątym, ostatnim piętrze w nowoczesnym budynku z windą z 2018 roku. Nieruchomość zlokalizowana jest na strzeżonym osiedlu „Nowy Targówek” – w jednej z najdynamiczniej rozwijających się części Warszawy, łączącej spokój z doskonałą komunikacją.
Na sprzedaż 4-pokojowe mieszkanie w inwestycji Nowy Targówek przy ul. Miedza 3C. Komfort, przestrzeń i nowoczesny design.
Mieszkanie charakteryzuje się przemyślanym rozkładem, wysokim standardem wykończenia oraz bliskością terenów zielonych.
NAJWAŻNIEJSZE ATUTY NIERUCHOMOŚCI
powierzchnia 88,22 m² z bardzo funkcjonalnym układem pomieszczeń,
4 pokoje, w tym przestronny salon z aneksem kuchennym oraz trzy ustawne sypialnie,
dwie łazienki - jedna z wanną (przy sypialni głównej), druga z nowoczesnym prysznicem,
loggia (7,30 m²) z unikalnym schowkiem (2,15 m²), idealna do przechowywania akcesoriów balkonowych lub sezonowych,
wysoka kondygnacja (ostatnie piętro) gwarantująca ciszę i brak sąsiadów „nad głową”,
bezpieczeństwo: osiedle monitorowane i chronione całodobowo, z zamkniętym patio i bezpiecznym placem zabaw,
gotowe do wprowadzenia: mieszkanie wyposażone w trzy pojemne szafy wnękowe,
dwa miejsca postojowe w garażu podziemnym (45 000 pln każde),
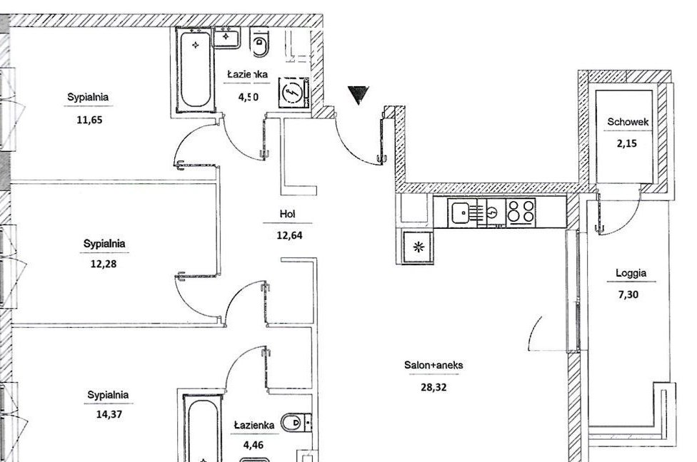
ROZKŁAD POMIESZCZEŃ
Salon z aneksem kuchennym 28,32 m²,
Sypialnia główna 14,37 m² z prywatną łazienką (wanna) 4,46 m²
Sypialnia II 12,28 m²
Sypialnia III 11,65 m²
Łazienka II (prysznic) 4,50 m²
Przedpokój 12,64 m²
Loggia (7,30 m²) ze schowkiem (2,15 m² )
OPIS INWESTYCJI
Budynek z 2018 roku stanowi część nowoczesnej zabudowy osiedla „Nowy Targówek”. Wewnątrz znajduje się zaciszna strefa zielona zaprojektowana w formie mini -parku z alejkami spacerowymi i ławkami. To idealne miejsce na odpoczynek z dala od miejskiego zgiełku.
LOKALIZACJA I OKOLICA
Targówek Mieszkaniowy to lokalizacja zapewniająca wszystko, co niezbędne do wygodnego życia:
Metro Trocka - ok. 700 m (zaledwie 9 minut spacerem), co pozwala dotrzeć do centrum Warszawy w kwadrans,
Tereny zielone: Park im. Wiecha z tężnią solankową (1 km) oraz Las Bródnowski (1,8 km) – doskonałe na rodzinne spacery i sport,
Infrastruktura: W bezpośrednim sąsiedztwie liczne sklepy spożywcze, apteki, restauracje oraz placówki edukacyjne (szkoły i przedszkola),
KOMUNIKACJA
Kilka minut pieszo do stacji II linii metra,
Liczne przystanki autobusowe i tramwajowe w zasięgu krótkiego spaceru,
Sprawny wyjazd na trasę S8 i obwodnicę Warszawy.
STAN PRAWNY I DODATKOWE INFORMACJE
Stan prawny: własność, możliwość zakupu na kredyt,
Dwa miejsce postojowe w garażu podziemnym (dodatkowo płatne 45 000 zł każde),
Komórka lokatorska / schowek na balkonie,
Budynek z windą,
Czynsz administracyjny ok. 1433 zł.
To mieszkanie będzie idealnym wyborem dla rodziny szukającej przestrzeni i bezpieczeństwa lub jako doskonała lokata kapitału pod inwestycję w pobliżu metra.
Serdecznie zapraszam do kontaktu oraz na prezentację nieruchomości 7 dni w tygodniu.
Katarzyna Wiśniewska - Kolwas
Premium Property Advisor
Numer licencji zawodowej 31696
Niniejsze ogłoszenie jest wyłącznie informacją i nie stanowi oferty w rozumieniu art. 66 § 1 Kodeksu Cywilnego. Dokładamy wszelkich starań, aby informacje przedstawione w naszych ofertach były aktualne i rzetelne. Informacje zawarte w ofercie uzyskano na podstawie oświadczeń sprzedających. Załączony plan nieruchomości jest poglądowy.
Agencja WHITE LION INVESTMENTS jest objęta obowiązkiem ubezpieczenia odpowiedzialności cywilnej zawodowej. Posiadamy OC zgodne z Rozporządzeniem Ministra Finansów z dn. 26.04.2019 r. w sprawie obowiązkowego ubezpieczenia odpowiedzialności cywilnej pośrednika w obrocie nieruchomościami (Dz. U. z 2019 r., poz. 804).
Pobieramy wynagrodzenie w formie prowizji za wykonaną usługę pośrednictwa.
Bierzemy odpowiedzialność za bezpieczeństwo przeprowadzanych przez nas transakcji.Pośrednik odpowiedzialny zawodowo za wykonanie umowy pośrednictwa: Katarzyna Wiśniewska-Kolwas (licencja nr: 31696)
Ogólne informacje
| Rodzaj | Na sprzedaż |
|---|---|
| Powierzchnia użytkowa | 88.22 m² |
| Piętro | 5 |
| Liczba pokoi | 4 |




