Przestronne w zabudowie szeregowej w Gronowie
Wielkopolska
Opis
Nowoczesne osiedle z lokalami mieszkalnymi 93,40m2 z własnymi ogródkami, zlokalizowane jest w jednej z najpopularniejszych dzielnic Leszna - w Gronowie.
Osiedle z utwardzonymi drogami wewnętrznymi i parkingiem. Każdy lokal mieszkalny posiada ogródek ok.180m2 i własne miejsce parkingowe.
Nowoczesna architektura, standard oraz jakość materiałów wykończeniowych potwierdzają wyjątkowość inwestycji.
Mieszkania będą oddane do użytku w lipcu 2026r.
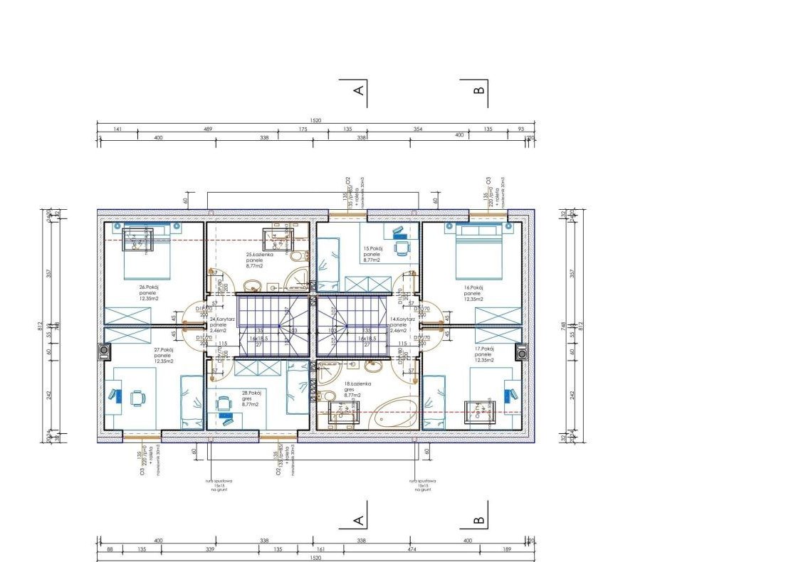
Przedstawiamy Państwu przestronny, zaprojektowany z myślą o wygodzie klienta lokal mieszkalny 93,4m2 na działce 180m2
Układ mieszkania:
PARTER:
- salon z aneksem kuchennym - 30,62m2
- spiżarnia - 2,19m2
- WC - 3,79m2
- pokój - 9,14m2
- wiatrołap - 2,96m2
Z pokoju dziennego wyjście na taras 9,57m2
PIĘTRO:
- pokój - 12,35m2
- pokój - 12,35m2
- pokój - 8,77m2
- łazienka - 8,77m2
- korytarz - 2,46m2
Cena: 519.900zł brutto
Mieszkanie sprzedawane jest w stanie deweloperskim z możliwością zmiany aranżacji zgodnie z potrzebami przyszłego właściciela.
Stan deweloperski obejmuje:
- przyłącza i instalacje (wod.kan.,elektryczne,gazowe)
- ściany konstrukcyjne ceramiczny porotherm24cm + styropian 20cm
- elewacja budynku wykonana na bazie tynku silikonowego
- ściana oddzielająca lokale dźwiękoszczelna -Silpro U24
- ściany wewnętrzne pokryte tynkiem maszynowym gipsowym; podłogi wylewane maszynowo
- dach - pokryty styropapą
- okna PCV trzyszybowe na profilach Veka 6-komorowe z roletami zewnętrznymi, roleta w oknie tarasowym elektryczna
- drzwi zewnętrzne z dwoma zamkami
- piec gazowy 2-funkcyjny kondensacyjny + grzejniki + ogrzewanie podłogowe na parterze i w łazience do góry
- przystosowanie do zamontowania kominka poprzez dodatkowy komin w salonie
- schody żelbetowe
- wykostkowany taras
- wejście i dojście do budynku wyłożone kostką brukową
- murek ogrodzeniowy oddzielający lokale
Lokalizacja osiedla zapewnia szybki dostęp do centrum miasta i do trasy Poznań-Wrocław. W bliskim położeniu znajduje się szkoła, przedszkole, boisko `Orlik`, supermarkety, sklepy i punkty usługowe, gabinety lekarskie i weterynaryjne, punkty gastronomiczne, kościół.
Miejsce dobrze skomunikowane z miastem.
Dzięki bliskości terenów zielonych, jest to doskonałe miejsce dla osób aktywnych czy posiadających czworonożnych przyjaciół.
Polecamy!
OFERTA ZWOLNIONA Z PROWIZJI OD KUPUJĄCEGO ORAZ PODATKU PCC
Zapraszam na prezentację w celu bliższego zapoznania się z ofertą.
Oferujemy Państwu darmową pomoc przy uzyskaniu kredytu oraz wszystkich formalności a także niższe opłaty notarialne.
Iwona Paprocka
tel.606 714 077
Nr licencji pośrednika odpowiedzialnego zawodowo 1518
Z biurem G A M A bezpiecznie zrealizują Państwo transakcje kupna/sprzedaży każdej nieruchomości.
Współpracujący z biurem G A M A doradcy finansowi pomogą Państwu pewnym krokiem przejść przez procedury kredytowe.
Powyższy opis ma charakter informacyjny i nie stanowi oferty w rozumieniu przepisów art. 66 § 1. Kodeksu Cywilnego
Oferta 138020493 z systemu LocumNet-OnLine.
Ogólne informacje
| Rodzaj | Na sprzedaż |
|---|---|
| Powierzchnia użytkowa | 93.40 m² |
| Liczba pokoi | 5 |




