Przestronny 3 pokojowy apartament Top lokalizacja!
Katowice, Śląskie
Opis
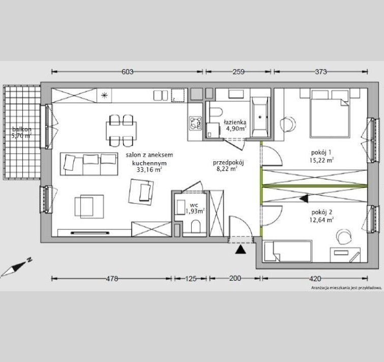
Biuro nieruchomości To House oferuje na sprzedaż 3 pokojowe mieszkanie o powierzchni 76,68 m² (obmiar geodezyjny) z balkonem około 5,7 m2.
Mieszkanie znajduje się w nowoczesnej inwestycji Ceglana Park dewelopera Develia, położonej w Katowicach w dzielnicy Brynów, przy ul. Meteorologów.
Budynek został oddany do użytkowania. Mieszkanie jest w stanie deweloperskim, co jest świetnym wyjściem dla własnej aranżacji.
Mieszkanie znajduje się na 3 piętrze, 3 piętrowego budynku.
W skład mieszkania wchodzi salon z aneksem kuchennym, 2 sypialnie, łazienka, WC oraz korytarz. Do mieszkania przynależy balkon o powierzchni około 5,7 m² – idealna przestrzeń do wypoczynku. Przemyślany rozkład pozwala na elastyczną aranżację wnętrza.
Osiedle wyróżnia niska zabudowa oraz duża ilość zieleni. Dla mieszkańców zostały przygotowane ścieżki rowerowe oraz tężnia solankowa. Niewątpliwym atutem jest sąsiedztwo miejskiego basenu oraz Parku Kościuszki.
Doskonałą komunikację drogową zapewnia autostrada A4 oraz DK 86.
Cena mieszkania wynosi 839 646 zł brutto
Do ceny należy doliczyć rodzinne miejsce postojowe w hali garażowej (na betonie dla 2 samochodów) w cenie 65 000 zł,
oraz komórkę lokatorską (3,28 m2 - obmiar geodezyjny) w cenie 15 000 zł.
Łączna cena sprzedaży wynosi 919 646 zł brutto.
Kupując mieszkanie nie płacisz prowizji oraz 2% PCC. Zadzwoń zapytaj o szczegóły.
Załączone wizualizacje wnętrza, to przykładowe wizualizacje innej z naszych realizacji.
Posiadamy w ofercie wykończenie mieszkania pod klucz oraz bezpłatną pomoc w uzyskaniu finansowania.
Jesteśmy zewnętrznym biurem sprzedaży deweloperów
Nie znalazłaś / znalazłeś odpowiedniej dla siebie oferty?
Napisz do Nas, przygotujemy inne propozycje mieszkań z Katowic i nie tylko.
To House. Z nami masz wybór.
Pośrednik odpowiedzialny zawodowo za wykonanie umowy pośrednictwa: Paweł Skołuda (licencja nr: 31055)
Ogólne informacje
| Rodzaj | Na sprzedaż |
|---|---|
| Piętro | 3 |
| Liczba pokoi | 3 |




