Przestronny Bliźniak/szeregowiec prawie za 8000 zł/m
Warszawa, Mazowieckie
Opis
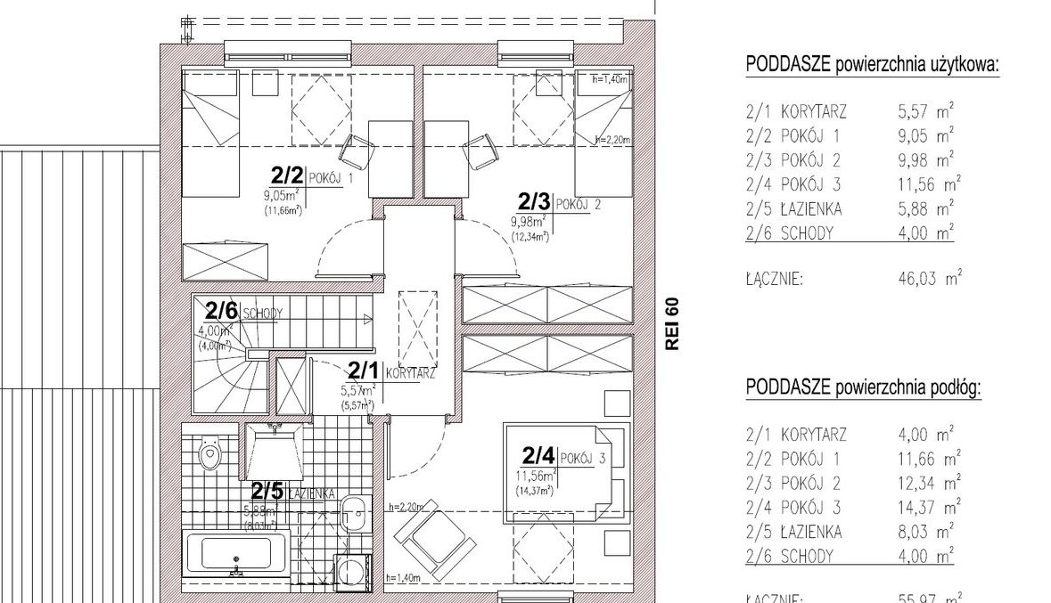
Mamy przyjemność zaprezentować Państwu domy o powierzchni całkowitej 145,85m², powierzchnia użytkowa domu 106,5m. Każdy z nich posiada 4 pokoje oraz garaż, a także własną działkę o powierzchni 335 m.
Planowany odbiór wrzesień 2026.
Dom w cenie mieszkania 3 pokojowego na Bemowie. W technologii skandynawskiej. Niskie zapotrzebowanie energetyczne 22 kWh (m2/rok) - niskie koszty utrzymania. Roczny koszt utrzymania niższy, niż czynsz za 3 pokojowe mieszkanie w Warszawie.
Największe atuty:
Lokalizacja: Zaledwie 8 minut od przyszłej stacji metra Chrzanów. Realny czas dojazdu do centrum Warszawy to tylko 30 minut (zakończenie budowy metra planowane na czerwiec 2026).
Architektura: Domy szeregowe w zabudowie bliźniaczej. Łączą się poprzez garaż i ścianę (potrójna ściana każdy dom ma swoją i dodatkowa pomiędzy ścianami)
Przestronność: Salon ma ponad 30 m², a aneks kuchenny 10 m². Na piętrze znajdują się 3 sypialnie o powierzchniach od 11 m² do prawie 15 m². Duże ogród - własna działka.
Infrastruktura: Pełne media – woda, prąd, kanalizacja (w tym deszczowa z drenażem działek i zbiornikiem na deszczówkę), światłowód PLAY/UPC.
Nowoczesne technologie: Ogrzewanie podłogowe, rekuperacja, pompa ciepła oraz instalacja pod montaż paneli - wszystko to sprawia, że koszty użytkowania są niższe niż w przypadku 2 pokojowego mieszkania w Warszawie.
Okolica: Sklep przy osiedlu, nowa szkoła podstawowa i przedszkole w odległości 5-10 minut spacerem. Teren rekreacyjny z halą sportową, boiskami, torami rowerowymi, skate parkiem oraz basenami letnimi. W pobliżu ścieżka edukacyjno-przyrodnicza prowadząca do Puszczy Kampinoskiej – idealna na wycieczki rowerowe. Nowy park rozrywki dla dzieci zaledwie 2 przystanki od osiedla!
Dojazd: Po zakończeniu budowy metra do centrum Warszawy będzie można dojechać w ciągu 30 minut komunikacją miejską (stacja metra 8 minut autem, 15-20 minut autobusem). Dojazd pod Rondo ONZ zajmie 25 minut.
Bezpieczeństwo: Osiedle domów ogrodzone, co zapewnia dodatkową ochronę, z ochrona na głównym wjeździe. Ulice i chodniki wyłożone kostką i oświetlone, na głównych drogach progi zwalniające.
Dodatkowe informacje: Zdjęcia wykończenia przedstawiają dom pokazowy. Firma współpracująca, REDNET, jest w stanie wykończyć taki dom w cenie od 100 000 PLN w terminie od jednego miesiąca do trzech. Dom w ofercie w stanie deweloperskim
Korzyści finansowe:
Niskie koszty utrzymania dzięki niskiemu zapotrzebowaniu energetycznemu (budownictwo zero emisyjne).
Elastyczne formy finansowania: możliwość przyjęcia mieszkania w rozliczeniu oraz opcja zamieszkania w domu po wpłacie 20%.
Zapraszam na spotkanie na miejscu od poniedziałku do soboty – godzina do ustalenia.
Kontakt: Dostępny od poniedziałku do piątku między 8:00 a 20:00, w weekendy od 10:00 do 16:00. Jeśli nie odbieram, oddzwonię.
Ogólne informacje
| Rodzaj | Na sprzedaż |
|---|---|
| Powierzchnia użytkowa | 145.85 m² |
| Liczba pokoi | 4 |




