REZERWACJA - Dom jednorodzinny wolnostojący 3
Zielona Góra, Lubuskie
Opis
Racula Park – Twój dom w rytmie natury
Realizujemy budowę prestiżowego Osiedla Racula Park, gdzie nowoczesna architektura spotyka się z naturą.
Projekt obejmuje 30 budynków jednorodzinnych w zabudowie bliźniaczej oraz 3 budynki jednorodzinne wolnostojące, zróżnicowane powierzchnie budynków (netto):
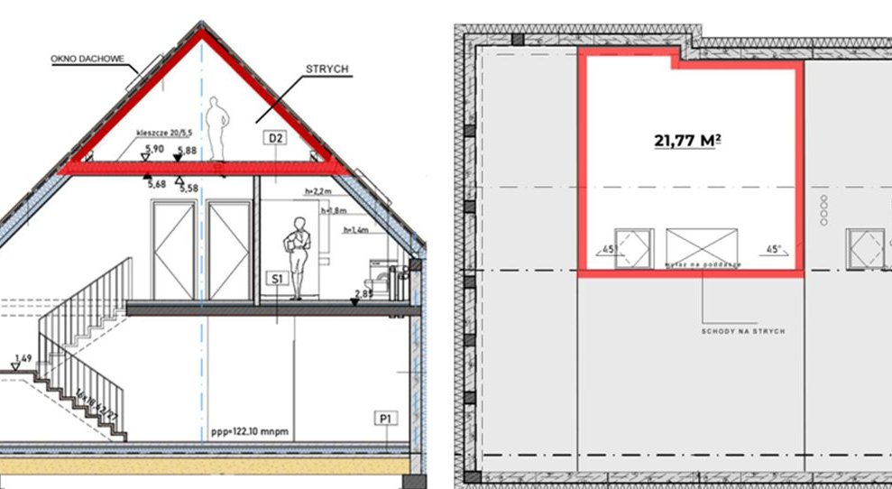
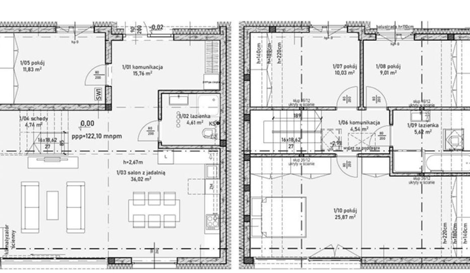
Prezentowa oferta dotyczy domu TYP C: 140,79 m² + STRYCH 21,77 m² Powierzchnia działki : 3421,25 m2 (w tym własny 100-letni las).
Racula Park to inwestycja klasy PREMIUM - idealny wybór dla tych, którzy pragną żyć w równowadze – nowocześnie , wygodnie i w otoczeniu przyrody.
Domy zaprojektowano w duchu nowoczesnej elegancji - prosta forma, duże przeszklenia i jasne wnętrza tworzą harmonijną całość z otoczeniem.
Każdy detal inwestycji został przemyślany tak, by zapewnić maksymalny komfort, prywatność i poczucie przestrzeni.
Standard wykończenia domów i terenu:
■ Palisadowe ogrodzenie działek
■ Francuskie szklane balkony
■ Potrójne szyby
■ Wysokiej klasy drzwi zewnętrzne PORTA z dodatkowym bocznym przeszkleniem
■ Tarasy zewnętrzne od strony ogrodu oraz schody do domów wykonane z płyt betonu architektonicznego
■ Drzwi tarasowe aluminiowe przesuwne typu HS z niskim progiem
■ Garaż o powierzchni 18 m² (bez bramy wjazdowej)
■ Dwa miejsca postojowe
■ Pełne uzbrojenie terenu w sieć kanalizacyjną, wodociągową i elektryczną oraz światłowód
■ Fasadowe przeszklenia aluminiowe parteru oraz piętra
■ Stropy żelbetowe monolityczne
■ Centralne ogrzewanie podłogowe, energooszczędna pompa ciepła
■ Dachówka firmy Nelskamp
Standard wykończenia wnętrz:
■ Instalacja klimatyzacji salonu oraz sypialni na I piętrze
■ Ścianki działowe wewnętrzne murowane
■ Posadzki betonowe przygotowane do położenia parkietu, paneli, wykładziny
■ Przygotowanie do montażu rolet zewnętrznych wraz z instalacją elektryczną
Lokalizacja:
Osiedle położone jest w prestiżowej dzielnicy Racula w Zielonej Górze, w spokojnej, zielonej okolicy z bezpośrednim dostępem do ul. Głogowskiej.
Osiedle Racula Park realizowane jest na terenie 25 700 m² — dzięki temu budynki są odpowiednio odseparowane, a mieszkańcy zyskują więcej przestrzeni, prywatności i komfortu codziennego życia.
Planowany termin zakończenia inwestycji wrzesień 2026r.
Zapraszamy do kontaktu !
Ogólne informacje
| Rodzaj | Na sprzedaż |
|---|---|
| Powierzchnia użytkowa | 140.79 m² |
| Liczba pokoi | 5 |




