REZERWACJA !!! NOWE 74m2 /4pok / 2GARDEROBY / 2ŁAZIENKI Klima 2Balkony
Kielce, Świętokrzyskie
Opis
SPRZEDAŻ bezpośrednia przez WŁAŚCICIELA, bez pośredników i biur nieruchomości. Kupujący zwolniony z opłaty skarbowej PCC 2% ( ok. 16tys. zł) wystawiam FAKTURĘ VAT.
REZERWACJA!!! REZERWACJA!!! REZERWACJA!!!
MIESZKANIE W TRAKCIE REALIZACJI dostępne kwiecień- maj 2026
ZAREZERWUJ JUŻ TERAZ I MIEJ WPŁYW NA TO JAK TWÓJ APARTAMENT BĘDZIE OSTATECZNIE WYGLĄDAŁ!!!
W OFERCIE POSIADAMY INNE WYKOŃCZONE REALIZACJE, MOŻNA ZOBACZYĆ STANDARD I JAKOŚĆ JAKĄ OFERUJEMY.
ZDJĘCIA PREZENTUJĄ poprzednie nasze realizacje.
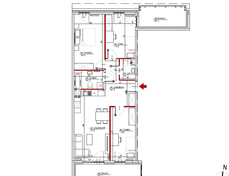
Prezentuję Państwu kolejny NOWY APARTAMENT, w pełni wykończony POD KLUCZ , położony w Kielcach na ul.Andersa 11a na osiedlu Bella Vista, tuż przy Telegrafie. Wśród zieleni, poza zgiełkiem i z pięknymi widokami.
Apartament mieści się na ostatnim 4 prestiżowym pietrze, tylko trzech sąsiadów na klatce, brak hałasów - cisza i spokój.
Docenisz komfort i pięknie zaaranżowaną przestrzeń oraz wyjątkowy design.
APARTAMENT SKŁADA SIĘ Z:
2 duże w pełni wykończone GARDEROBY z zabudową meblową z led
2 ŁAZIENKI - jedna z prysznicem, druga z wanną oraz zabudowaną szafą z PRALKĄ I SUSZARKĄ
2 BALKONY/TARASY - jeden od strony wschodnio-południowej 10m2, oraz drugi 8m2 od strony zachodnio-północnej
3 niezależne sypialnie
- sypialnia główna 11,2m2, z pełnym wyposażeniem meblowym z wyjściem na prywatny taras od zachodniej strony
-1 pokój dziecięcy/gabinet 10,3m2
-2 pokój dziecięcy/gabinet 9,1 m2 z wyjściem na balkon od strony południowej
SALON z ANEKSEM KUCHENNYM ok. 24m2, z pełnym wyposażeniem z wyjściem na taras od strony południowej
obszerny PRZEDPOKÓJ
wszystkie okna do samej podłogi fantastycznie doświetlają przestrzeń ( TRZYSZYBOWE, CICHE I CIEPŁE )
WYKOŃCZENIE:
gresy wielkoformatowe w przedpokoju, garderobie, kuchni i łazienkach
panele podłogowe w jasnym, neutralnym kolorze, układane w jodełkę klasyczną, o podwyższonej ścieralności, strukturze drewna, z V-fugą
drzwi wewnętrzne ukryte oraz białe bezprzylgowe
klimatyzacja ( jednostka wewnętrzna oraz zewnętrzna )
pełne wyposażenie AGD w kuchni marek SAMSUNG, BOSCH I ELEKTROLUX
LODÓWKA w zabudowie szeroka na 76cm !!! i wys. na 193cm !!!
PIEKARNIK PAROWY DUAL COOK z dodatkową funkcją AIR FRYER
ZMYWARKA z trzecią szufladą
MIKROFALA z grill
PŁYTA INDUKCYJNA z łączeniem pól
OKAP kuchenny zabudowany w szafce, z dużą wydajnością m3/h
Zabudowa meblowa z blatami SLIM HPL długimi na ok. 4mb z podwieszanym zlewem, wyposażona w 11 szerokich szuflad na systemach BLUM, wysokie zabudowy i szafki wiszące z mnóstwem półek
SALON wyposażony w rozkładaną kanapę narożną z funkcją spania i pojemnikiem na pościel, długa na 2,75 z ogromną ilością miejsca do siedzenia w bardzo nowoczesnym kształcie i kolorze.
Jadalnia z owalnym pięknym stołem z 6 krzesłami, który pomieści 8-10 osób
Przepiękne oświetlenie z całym apartamencie ( lampy wiszące, tuby, szyny, ledy i kinkiety
GRZEJNIKI DEKORACYJNE w salonie i łazienkach
żaluzje drewniane w oknach zamawiane na wymiar
firany i zasłony w każdym pomieszczeniu
zabudowy meblowe w garderobach, łazienkach, sypialni, salonie, kuchni i przedpokoju
okładziny ścienne , tynki dekoracyjne, lustra, płytki gresowe, lamele, płyty drewniane
wszystkie dodatki : łóżko wraz z materacem, szafki nocne, toaletka, konsola w przedpokoju, pufy, dywany, obrazy na ścianach, szafka RTV
rozszerzone instalacje elektryczne ( w każdym pokoju instalacja internetowa i TV )
W naszych projektach stawiamy przede wszystkim na funkcjonalność ( w pełni wykorzystana przestrzeń z zabudowami szaf), na oświetlenie te zarówno techniczne jak i tworzące klimat (ponad 100 punktów świetlnych)
JESTEŚMY ZNANI z perfekcyjnej jakości zarówno w wykończeniu jak i użytych materiałów.
Wszystkie zabudowy meblowe w apartamencie, zostaną wykonane przez profesjonalną firmę stolarską, na systemach BLUM
APARTAMENT JEDYNY W SWOIM RODZAJU, DLA WYJĄTKOWEGO KLIENTA:) UTRZYMANY W NOWOCZESNYM STYLU, W NEUTRALNYCH KOLORACH, ELEGANCKI I NA CZASIE.
Meble lakierowane w połączeniu z płytą drewnianą, pomieszczenia subtelnie doświetlane ledami a w razie potrzeby mocnymi tubami, ściany i część sufitu wykończone betonem białym i szarym, oraz duża ilość luster dadzą poczucie luksusu, przytulności i domowego ciepła. Bardzo dobry układ pomieszczeń z osobną częścią salonową i sypialniami po drugiej stronie.
Mieszkanie wykończone materiałami najwyższej jakości : gładzie Flugger, farby Flugger
Wyposażenie widoczne na zdjęciach gotowego apartamentu, zawsze zostaje przekazane nowemu nabywcy ( poza drobnymi dekoracjami oraz TV).
Do mieszkania przynależy OGROMNA komórka lokatorska PONAD 6,5m2 w cenie 25000zł oraz miejsce w garażu podziemnym w cenie 50000 zł.
Apartament przeszedł gruntowne zmiany projektowe, dostosowujące do do pełnej wygody i funkcjonalności ( wyburzenie ścian i postawienie nowych wg. projektu, dodatkowe punkty świetlne )
Za całość w sumie 1100000zł.
W pobliżu osiedla mnóstwo sklepów ( STOKROTKA, BIEDRONKA, LIDL, PRZYSTANKI AUTOBUSOWE, SZKOŁY, PRZEDSZKOLE, PRZYCHODNIA, APTEKI,...stacje benzynowe. Do centrum 10min. drogi a w pobliżu cisza i spokój. Bliskość natury i terenów rekreacyjnch.
Wspólnota mieszkaniowa, sprzątanie, ogrodnik to wszystko w czynszu ok. 550zł z opłatami licznikowymi i garażem + prąd.
Mieszkanie ogrzewane z sieci miejskiej.
Firmę prowadzę już kilka lat i jest to moja kolejna realizacja. Robię to z pasją i bardzo dużym zaangażowaniem, dbając o każdy szczegół na etapie wykończenia mieszkania. Każde mieszkanie jest niepowtarzalne i jedyne w swoim rodzaju z uwzględnieniem obowiązujących trendów.
ZAPRASZAM DO ZAPOZNANIA SIĘ Z MOIMI REALIZACJAMI :
FACEBOOK - MK HOME MARTA KOWALIK
oraz INSTAGRAM mk_home_projektowanie
ZAINTERESOWANYCH ZAKUPEM ZAPRASZAM DO KONTAKTU:-)
Ogólne informacje
| Rodzaj | Na sprzedaż |
|---|---|
| Powierzchnia użytkowa | 74 m² |
| Piętro | 4 |
| Liczba pokoi | 4 |




