Rezydencja 369m2 | Garaż 75m2 | Basen | Działka 20a | OKAZJA
Małopolskie
Opis
Na sprzedaż imponujący dom wolnostojący o powierzchni całkowitej 369 m2 (użytkowa ok. 294 m2), położony na przestronnej 20-arowej działce w Pielgrzymowicach (gm. Michałowice).
To propozycja dla osób wymagających, które szukają przestrzeni nieosiągalnej w standardowym budownictwie, cenią prywatność i chcą wykończyć wnętrza według własnej wizji (stan deweloperski bez gładzi).
Najważniejsze atuty
Garaż dla kolekcjonera – 75 m2 powierzchni w bryle budynku, mieszczącej komfortowo 4 samochody.
Prywatna strefa rekreacji – zewnętrzny basen z przygotowaną infrastrukturą techniczną.
Nowoczesny system grzewczy – ogrzewanie podłogowe razem z grzejnikami oraz klimatyzacja pozwala na utrzymanie przyjaznej temperatury niezależnie od pory roku.
Bezpieczeństwo i cisza – działka przy drodze wewnętrznej, za domem rozpościerają się tereny zielone, co gwarantuje brak zabudowy za oknem.
Ekspresowy dojazd – bliskość węzła nowej trasy S7 zapewnia szybkie połączenie z Krakowem i wyjazd w stronę Warszawy.
Master bedroom – główna sypialnia o powierzchni blisko 40 m² z własną łazienką i garderobą.
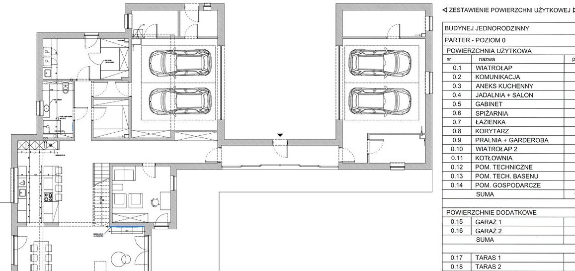
Rozkład pomieszczeń
Parter (168 m² – strefa dzienna i techniczna)
Salon z jadalnią (38,17 m2) z wyjściem na taras i widokiem na basen.
Otwarta kuchnia (16,15 m2) z przynależną spiżarnią.
Gabinet/Biuro (14,68 m2) idealne do pracy zdalnej przy wejściu do nieruchomości, pozwala to oddzielić pracę od reszty domu.
Luksusowy garaż (75,04 m2) na 4 pojazdy.
Pralnia z garderobą (15,44 m2), łazienka (7,27 m2).
Zaplecze: kotłownia ( do wykończenia ) , pomieszczenie techniczne basenu oraz schowek gospodarczy.
Piętro (Strefa prywatna)
Sypialnia Master (39,53 m2) z prywatną łazienką i garderobą.
4 dodatkowe, ustawne pokoje (idealne dla dzieci, gości lub jako siłownia).
Pokój kąpielowy (10,9 m2).
Dwuczęściowy taras (45,39 m2) z panoramicznym widokiem na okolicę.
Standard i technologie - właściciel budował dom z myślą o sobie, dlatego zostały użyte najwyższej jakości materiały.
Rok budowy: 2025 – nowoczesne materiały i aktualne normy energetyczne.
Stan: Deweloperski bez gładzi – media (prąd, woda, gaz) wprowadzone do budynku i rozprowadzone.
Ogrzewanie: Gazowe, podłogowe razem z grzejnikami.
Basen: Z dedykowanym pomieszczeniem technicznym.
Stolarka: Wysokiej klasy okna o niskim współczynniku przenikania ciepła.
Działka i otoczenie
Powierzchnia 2002 m2 – ogromny potencjał aranżacyjny (ogród, strefa basenowa, plac zabaw).
Gwarancja ciszy – bezpośrednie sąsiedztwo otwartych terenów za domem to pewność zachowania prywatności i braku nowej zabudowy tuż za płotem.
Infrastruktura: W pobliżu nowoczesna szkoła w Więcławicach, stadnina koni oraz piękne tereny spacerowe i rowerowe.
Sąsiedztwo: Kameralna zabudowa jednorodzinna i otwarta przestrzeń.
Dlaczego warto?
Właściciel sprzedaje dom ze względu na przeprowadzkę za granice. W dobie rosnących cen gruntów, 20-arowa działka z domem o takiej skali i udogodnieniach (basen, garaż na 4 auta) jest rzadkością na rynku. Stan deweloperski pozwala na ominięcie najtrudniejszego etapu budowy, dając jednocześnie pełną swobodę w wyborze wykończenia.
W OGŁOSZENIU PRZEDSTAWIONE SĄ PRZYKŁADOWE WIZUALIZACJE
Zapraszam do kontaktu!
Michał Lasota
Ogólne informacje
| Rodzaj | Na sprzedaż |
|---|---|
| Powierzchnia użytkowa | 369 m² |
| Liczba pokoi | 8 |




