Rodzinne 4 pok./szeregowe/ogródek/pod Warszawą/S8
Mazowieckie
Opis
Agencja nieruchomości Cataleya Estate prezentuje BEZPOŚREDNIO od Dewelopera przestronne czteropokojowe mieszkanie na 1 piętrze z wysokim poddaszem oraz ładnym ogródkiem w stanie deweloperskim w miejscowości Ciemne, gmina Radzymin pod Warszawą.
Kupujący NIE płaci podatku PCC 2% i prowizji agencyjnej.
Nowoczesne dwupoziomowe bezczynszowe mieszkanie o wysokim standardzie wykończenia dla osób, które pragną mieszkać z dala od zgiełku centrum miasta w cichej, spokojnej i zielonej okolicy.
Nieruchomość znajduję się w niedalekiej odległości od centrum stolicy (zaledwie 32 km, tylko 35 minut samochodem do ścisłego Centrum Warszawy).
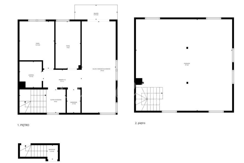
Mieszkanie o powierzchni użytkowej 56,60 m2 i całkowitej około 108 m2 zlokalizowane jest na nowym zamkniętym osiedlu.
W nieruchomości usytuowanej na piętrze 1 znajdują się następujące pomieszczenia:
* przestronny salon z aneksem kuchennym, częścią jadalnianą i wypoczynkową (22,99 m2)
* sypialnia 1 (10,61m2)
* sypialnia 2 (8,45 m2)
* łazienka ( 3,87 m2)
* korytarz (5,21 m2)
* przedsionek (3,32 m2)
* pomieszczenie gospodarcze (2,15 m2)
* balkon (4,67 m2)
* na 2 piętrze wysokim (poddaszu nieużytkowym) z oknami znajduję się duża przestrzeń do własnej aranżacji wielkości około 51 m2, do której prowadzą regularne schody i wyprowadzone są media.
Do mieszkania przynależy bardzo ładny duży ogródek wielkości około 58 m2.
Okna są od strony słonecznej: wschodniej i zachodniej.
Mieszkanie posiada ogrzewanie podłogowe w całości wraz z zamontowanym piecem gazowym z zasobnikiem ciepłej wody oraz dodatkowo w standardzie rekuperacja i klimatyzacja.
Atutem tej inwestycji jest teren zamknięty, ogrodzony i uporządkowany z brama wjazdową na pilota i 2 miejsca postojowe w cenie.
Nieruchomość posiada wszystkie media z własnym pomiarem zużycia (woda, kanalizacja, prąd, gaz) oraz jest wyposażone w pełną instalację elektryczną, alarmową, telewizyjną oraz internetową.
Budynek jest wykonany w bardzo wysokim standardzie. W budowie budynku użyto najlepszej jakości certyfikowane materiały.
Dobrze ocieplony: styropian 20 cm ,poddasze izolacja piana pur, okna trzy szybowe.
W budynku będą również zamontowane parapety wewnętrzne i zewnętrzne ,osprzęt elektryczny.
Lokalizacja:
W bliskiej okolicy mieści się szkoła publiczna i przedszkole około 1.3 km oraz żłobek około 2.5 km, sklepy spożywcze lokalne ok. 1.2 km, przychodnia i szpital w Radzyminie 3.8 km , restauracje, apteka i inne liczne punkty usługowe około 3 km.
Komunikacja:
Do linii PKP w Radzyminie - ok. 4.7 km gdzie istnieje możliwość zostawienia samochodu w sąsiedztwie stacji.
Linia autobusowa lokalna: R1 i R8 - 1.3 km.
Do węzła trasy S8 mamy zaledwie 3 minuty autem.
Termin oddania inwestycji do użytkowania przewidziany jest na II kwartał 2026 roku.
Umowy deweloperskie są podpisywane z otwartym rachunkiem powierniczym, można dokonać również wcześniej płatnej rezerwacji.
Cena standardowa ofertowa wynosi 669.000 zł i jest obniżona na cenę 639.000 zł do końca lutego 2026 roku przy podpisaniu umowy rezerwacyjnej dla pierwszych klientów.
Istnieje również możliwość zakupu mieszkania 3 pokojowego na parterze o metrażu użytkowym 56,60 m2, z ogródkiem wielkość około 85 m2 w cenie 509.000 zł.
Zapraszam na prezentację.
Łukasz Jurkiewicz
tel. 502 052 109
Na 1 miejscu zawsze stawiamy klienta, dlatego z naszą pomocą zakup nieruchomości jest prosty. Współpracujemy z Ekspertem ds. Kredytów, który porówna dla Państwa ofertę wszystkich banków.
Możecie liczyć na naszą kompleksową, profesjonalną i sprawną obsługę.
Więcej zdjęć oraz pełną ofertę współpracy znajdziecie Państwo na
Oferty zamieszczone przez nas są zawsze aktualne. Sprawdź nas i oceń nas.
Oferta wysłana z programu dla biur nieruchomości ASARI CRM ()
Ogólne informacje
| Rodzaj | Na sprzedaż |
|---|---|
| Powierzchnia użytkowa | 108 m² |
| Piętro | 1 |
| Liczba pokoi | 4 |




