Rodzinne/las/łąki/cisza/Warszawa/58m2/Piętro/Taras
Mazowieckie
Opis
Agencja nieruchomości Cataleya Estate przedstawia przestronne trzypokojowe mieszkanie na pierwszym piętrze w miejscowości Marki w granicy Warszawy.
Nowoczesne mieszkanie o wysokim standardzie wykończenia dla osób, które pragną mieszkać z dala od zgiełku centrum miasta w cichej, spokojnej i zielonej okolicy.
Nieruchomość znajduję się w niedalekiej odległości od centrum stolicy (zaledwie 14 km, tylko 25 minut samochodem do ścisłego Centrum Warszawy).
Mieszkanie o powierzchni użytkowej 58,80 m2 zlokalizowane jest na nowym kameralnym osiedlu składającym z pięciu budynków w niskiej zabudowie.
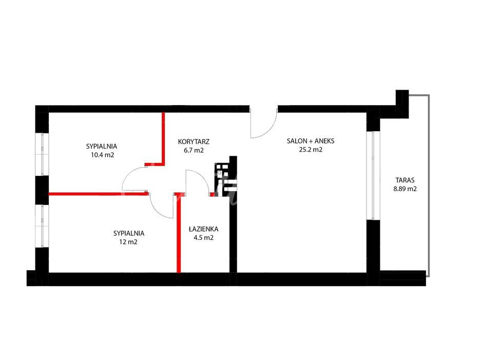
W nieruchomości usytuowanej na pierwszym piętrze znajdują się następujące pomieszczenia:
* przestronny salon z aneksem kuchennym, częścią jadalnianą i wypoczynkową (25,20 m2)
* sypialnia (12 m2)
* sypialnia (10,40 m2)
* łazienka (4,5 m2)
* przedpokój ( 6,7 m2)
* dodatkowo duży taras ( 8,89 m2 )
Okna są od strony słonecznej: wschodniej i zachodniej.
Mieszkanie posiada wszystkie media z własnym pomiarem zużycia (woda, kanalizacja, prąd, centralne ogrzewanie) oraz wyposażony w pełną instalację elektryczną, alarmową, telewizyjną oraz internetową.
W bardzo bliskiej okolicy około 600 metrów znajduje się przedszkole niepubliczne, żłobek około 260 metrów oraz szkoła podstawowa w Markach nr 1 około 1.1 km.
Restauracje i inne punkty usługowe i spożywcze około 600 metrów.
Sklepy spożywcze lokalne - ok. 200 metrów Żabka oraz do większego Centrum Handlowe M1 Marki zaledwie 3,6 km.
Linia autobusowa numer 240 - tylko 100 metrów skąd dostaniemy się w 25 minut do stacji Metra Kondratowicza lub autem w zaledwie w 10 minut.
Do węzła trasy S8 mamy zaledwie 8 minuty autem około 2,5 km.
Dodatkowo płatne przynależne miejsce postojowe w garażu 59000 zł lub miejsce postojowe naziemne w kwocie 24900 zł.
Termin oddania inwestycji do użytkowania przewidziany jest na III kwartał 2025 roku.
Umowy deweloperskie są podpisywane z otwartym rachunkiem powierniczym, można dokonać również wcześniej płatnej rezerwacji w wysokości 1 %.
Kupujący nie płaci podatku PCC i prowizji agencyjnej.
Ceny mieszkań 2 pokojowych wielkości 38,9 m2 już od 505.700 zł oraz 3 pokojowych o metrażu 54,7 m2 od 602.700 zł.
Zapraszam na prezentację.
Łukasz Jurkiewicz
tel. 502-052-109
Na 1 miejscu zawsze stawiamy klienta, dlatego z naszą pomocą zakup nieruchomości jest prosty. Współpracujemy z Ekspertem ds. Kredytów, który porówna dla Państwa ofertę wszystkich banków.
Możecie liczyć na naszą kompleksową, profesjonalną i sprawną obsługę.
Więcej zdjęć oraz pełną ofertę współpracy znajdziecie Państwo na
Oferty zamieszczone przez nas są zawsze aktualne. Sprawdź nas i oceń nas.
Oferta wysłana z programu dla biur nieruchomości ASARI CRM ()
Ogólne informacje
| Rodzaj | Na sprzedaż |
|---|---|
| Powierzchnia użytkowa | 58.80 m² |
| Piętro | 1 |
| Liczba pokoi | 3 |




