Rozkład/2 pokoje/50 m2/centrum Wrocławia!
Wrocław, Dolnośląskie
Opis
"Nieruchomości Apartament"
Edyta Pietrow
513 383 108
NASŁONECZNIONE/ NISKIE OPŁATY/DOGODNE POŁACZENIE Z CAŁYM MIASTEM
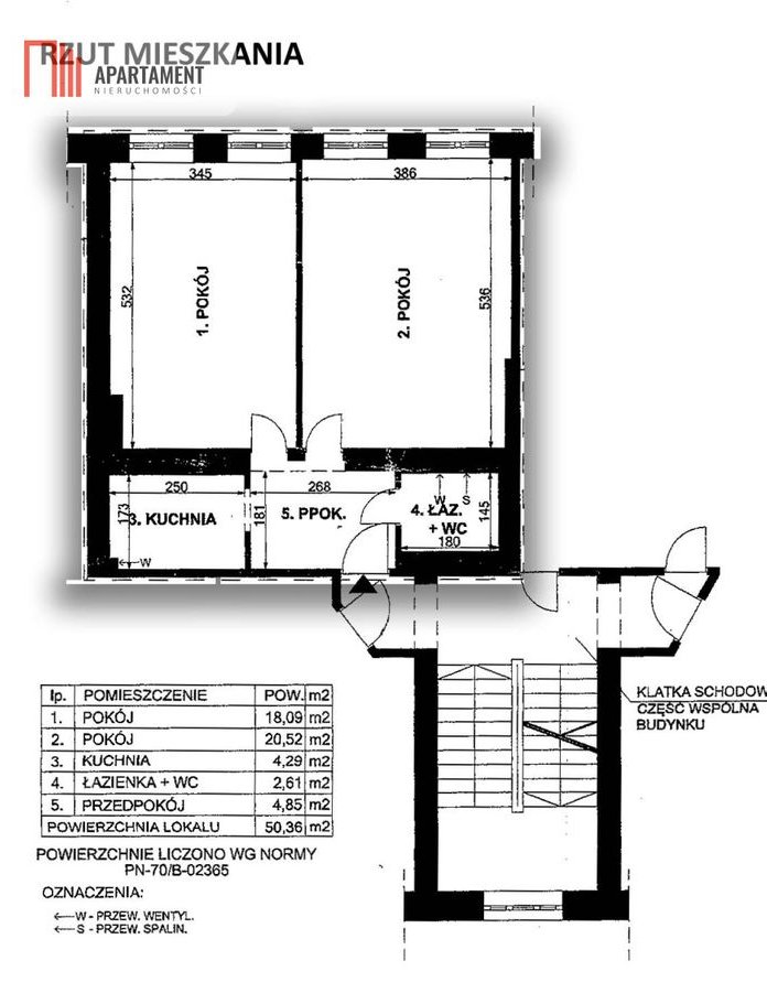
Na sprzedaż, rozkładowe 2 pokojowe mieszkanie z dużym potencjałem, w centrum Wrocławia. Lokal znajduję się na 4 piętrze w kamienicy, stan- do remontu.
To idealna propozycja zarówno dla osób szukających miejsca do życia w sercu miasta, jak i dla inwestorów poszukujących nieruchomości do dalszego wynajmu.
Kluczowe informacje techniczne:
• powierzchnia 50,36 m²;
• funkcjonalny układ, łatwy do aranżacji;
• 2 oddzielne pokoje (20,5 m², 18 m²), osobna kuchnia (4,3 m²), łazienka (2,5m²), przedpokój (4,85 m²);
• wysokość 280 cm;
• dodatkowo duża piwnica i komórka lokatorska na strychu;
• ogrzewanie wody- piec gazowy Junkers;
Cena: 539 000 zł
Czynsz administracyjny: około 340 zł
Atuty lokalizacji:
• blisko szkoły, przedszkola i uczelnie:
• świetny dojazd do innych części miasta (autobusy + tramwaje);
• blisko sklepy, punkty usługowe i infrastruktura codzienna;
Dla kogo?
• Dla inwestora — idealny metraż, uniwersalny układ i atrakcyjna lokalizacja, doskonałe do wynajmu;
• Dla studentów — blisko Politechnika i Uniwersytet, wygodnie, bezpiecznie i ekonomicznie.
• Dla rodziny — mieszkanie rozkładowe, pełna infrastruktura edukacyjna, bliskość sklepów;
Zainteresowanych zapraszam do kontaktu!
Zapraszam do kontaktu
Edyta Pietrow/ opiekun oferty
513 383 108
Kontaktując się z agentem odpowiedzialnym za ofertę, koniecznie zapytaj jakie są warunki współpracy z naszym biurem oraz co w związku ze współpracą zapewniamy.
Dbając o bezpieczeństwo klientów sprzedających, a często także na ich wyraźne życzenie, nie podajemy adresów nieruchomości bez podpisania uprzednio umowy o pośrednictwo w kupnie lub najmie.
Prowizja jest uzgadniania indywidualnie, na spotkaniu i zależy od zakresu wykonywanych obowiązków na rzecz klienta zamawiającego.
Wszelkie podane przez Biuro informacje nie są ofertą w rozumieniu Kodeksu Cywilnego.
Zgodnie z Ustawą z dnia 26 lipca 2024 r. o zmianie ustawy o prawie autorskim i prawach pokrewnych, ustawy o ochronie baz danych oraz ustawy o zbiorowym zarządzaniu prawami autorskimi i prawami pokrewnymi, wykorzystywanie autorskich pomysłów, rozwiązań, kopiowanie, rozpowszechnianie zdjęć, fragmentów grafiki, tekstów opisów w celach zarobkowych, bez zezwolenia autora jest zabronione i stanowi naruszenie praw autorskich oraz podlega karze. Znaki towarowe i graficzne są własnością firmy Nieruchomości Apartament.
Ogólne informacje
| Rodzaj | Na sprzedaż |
|---|---|
| Powierzchnia użytkowa | 50.36 m² |
| Piętro | 4 |
| Liczba pokoi | 2 |




