Salon 5,7 m | Zieleń Ogród Garaż
Warszawa, Mazowieckie
Opis
KOMFORTOWY DOM W ZIELONEJ CZĘŚCI WAWRA
Salon 5,7m wysokości | Kominek | Ogród | Osiedle zamknięte z monitoringiem | Gotowy do zamieszkania
*****
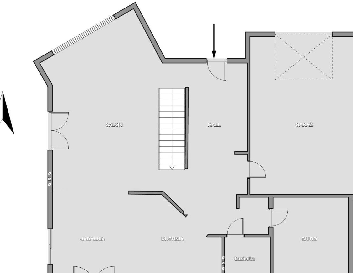
ROZKŁAD POMIESZCZEŃ:
Poziom -1:
* Sala sportowa,
* pomieszczenie techniczne.
Poziom 0:
* Salon z kominkiem i wyjściem na taras,
* kuchnia z jadalnią i wyjściem na taras,
* gabinet,
* łazienka z prysznicem,
* hall,
* garaż.
Poziom 1:
* 3 sypialnie,
* łazienka z wanną,
* pralnia,
* garderoba.
STANDARD:
Dom utrzymany w bardzo dobrym stanie technicznym - wykończony z wykorzystaniem trwałych, jakościowych materiałów. Na podłogach deska lita oraz parkiet. Dobrze doświetlone pomieszczenia. Drewniany taras. Automatyczne nawadnianie ogrodu. Obszerny garaż jednostanowiskowy oraz wiata na dodatkowe auto. W ogrodzie domek gospodarczy. Kameralne, zamknięte osiedlu domów jednorodzinnych w otoczeniu zieleni.
LOKALIZACJA:
Falenica - zielona część Wawra - to doskonałe miejsce dla osób ceniących kontakt z naturą, prywatność i dobrą komunikację z centrum Warszawy.
W pobliżu:
* Przystanek autobusowy - ok. 10 minut pieszo,
* szybki dojazd do trasy S2 i stacji SKM,
* szkoły, przedszkola, liceum im. Wybickiego, Europejskie Centrum Komunikacji i Kultury,
* sklepy, apteki i punkty usługowe w zasięgu kilku minut.
DODATKOWE INFORMACJE:
* Pełna własność.
* Możliwość zakupu na kredyt.
Serdecznie zapraszamy do kontaktu!
_
KONTAKT:
Igor Lachowicz: +48 889 432 208
Przedstawiona wyżej oferta nie jest ofertą handlową w rozumieniu przepisów prawa, lecz ma charakter informacyjny. Partners International dokłada starań, aby treści przedstawione w naszych ofertach były aktualne i rzetelne. Dane dotyczące ofert uzyskano na podstawie oświadczeń wynajmujących.
Jako biuro nieruchomości pobieramy za usługę pośrednictwa wynagrodzenie w formie prowizji.
_
CONTACT:
Igor Lachowicz: +48 889 432 208
Outlined above proposal is not a commercial offer for the purposes of the law but is informative. All data relating to real estate was obtained on the basic statements of the Landlords.
As a real estate agency, we charge a commission.
_
COMFORTABLE HOUSE IN THE GREEN PART OF WAWR
5.7 m high living room | Fireplace | Garden | Gated community with CCTV | Ready to move in
*****
ROOM LAYOUT:
Level -1:
* Sports room,
* Technical room.
Level 0:
* Living room with fireplace and access to the terrace,
* Kitchen with dining area and access to the terrace,
* Study,
* Bathroom with shower,
* Hall,
* Garage.
Level 1:
* 3 bedrooms,
* Bathroom with bathtub,
* Laundry room,
* Wardrobe.
STANDARD:
The house is in very good technical condition - finished with durable, high-quality materials. Wooden floorboards and parquet flooring. Well-lit rooms. Wooden terrace. Automatic garden irrigation. Spacious single garage and carport for an additional car. Garden shed in the garden. An intimate, gated community of single-family houses surrounded by greenery.
LOCATION:
Falenica - the green part of Wawer - is a perfect place for people who value contact with nature, privacy, and good transport links to the center of Warsaw.
Nearby:
* Bus stop - approx. 10 minutes on foot,
* quick access to the S2 route and SKM station,
* schools, kindergartens, Wybicki High School, European Center for Communication and Culture,
* shops, pharmacies, and service outlets within a few minutes' reach.
ADDITIONAL INFORMATION:
* Full ownership.
* Possibility of purchase on credit.
Feel free to contact us!
Ogólne informacje
| Rodzaj | Na sprzedaż |
|---|---|
| Powierzchnia użytkowa | 298.15 m² |
| Liczba pokoi | 5 |




