Saska Kępa, 54 m², 3 pokoje, balkon, po remoncie
Warszawa, Mazowieckie
Opis
SASKA KĘPA • 54 m² • 3 POKOJE • BALKON • WINDA
Mieszkanie po generalnym remoncie, gotowe do wprowadzenia.
Funkcjonalny układ z widokiem na zieleń z każdego okna.
MIESZKANIE
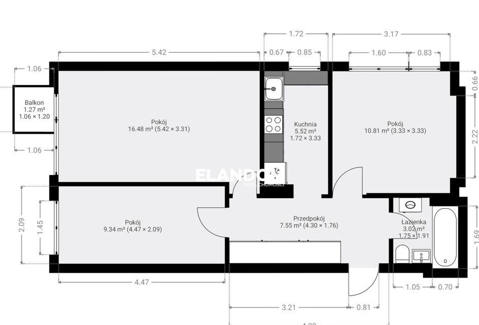
54 m²: salon 16,48 m² z wyjściem na balkon 1,27 m²; sypialnie 10,81 m² i 9,34 m²; kuchnia widna 5,52 m²; łazienka 3,02 m²; przedpokój 7,55 m².
Ekspozycja: wschód (salon z balkonem, gabinet) oraz południe (sypialnia i kuchnia).
W cenie: zabudowa stała – szafy w przedpokoju, zabudowa kuchenna z AGD.
Meble widoczne na części zdjęć to wizualizacja (virtual staging).
BUDYNEK I OTOCZENIE
Rok budowy: 1970; technologia: rama H
Dwie windy po remoncie; zadbane klatki.
Piwnica: 1,7 m² w cenie.
Parkowanie na ulicy.
Blisko do komunikacji przystanki autobusowe i tramwajowe (Zwycięzców, Trasa Łazienkowska, Al.Waszyngtowan)
Bliskość terenów zielonych: Park Skaryszewski na północ, zielone ogródki dzialkowe na wschód, tereny zielone Saskiej Kępy.
Blisko serca Saskiej Kępy, restauracje, kafejki, cukiernie, galerie sztuki, przestrzeń do spacerów i spotkań.
MEDIA I OPŁATY
Czynsz administracyjny: ok. 1150 zł/m-c.
Ogrzewanie i ciepła woda: miejskie, zaliczki w czynszu.
Prąd: średnio ok. 150 zł/m-c.
STAN PRAWNY I DOSTĘPNOŚĆ
Własność z księgą wieczystą – możliwy zakup na kredyt.
Dostępne od zaraz. Możliwa szybka finalizacja.
DLA KOGO
Idealne jako gotowe 3 pokoje na Saskiej Kępie: do zamieszkania dla rodziny lub pod stabilny najem.
Zapraszamy z pytaniami i na prezentację. Klucze w agencji!
Zalety zakupu z naszym biurem:
- dbamy o każdy szczegół na przez cały proces zakupu i sprzedaży
- pełne bezpieczeństwo transakcji - należymy do WSPON i PFRN
- weryfikujemy stan prawny nieruchomości
- współpracujemy z ekspertami kredytowymi, którzy przeprowadzą państwa przez cały proces i pomogą uzyskać najkorzystniejszą ofertę
Szanowni Państwo,
Treść niniejszego ogłoszenia ma charakter jedynie informacyjny i nie stanowi oferty w rozumieniu art. 66 i nast. ustawy Kodeks Cywilny. Zawarte w ogłoszeniu informacje pochodzą od właściciela nieruchomości i mogą one wymagać weryfikacji. Prawa do elementów ogłoszenia przysługują ELANDOM Nieruchomości S.C. (lub podmiotów współpracujących). Kopiowanie i rozpowszechnianie ogłoszenia lub jego elementów, bez zgody ELANDOM Nieruchomości S.C. jest zabronione.
Oferta wysłana z programu dla biur nieruchomości ASARI CRM ()
Ogólne informacje
| Rodzaj | Na sprzedaż |
|---|---|
| Powierzchnia użytkowa | 54 m² |
| Piętro | 4 |
| Liczba pokoi | 3 |




