Segment 105 m², 5 pokoi, OSTATNIE NA OSIEDLU, Józefów TOP lokalizacja
Mazowieckie
Opis
Kupujący nie płaci 2% PCC,
0 % prowizji!
Na sprzedaż funkcjonalny, dwukondygnacyjny segment o powierzchni 105,28 m² (powierzchnia całkowita: 110 m²), położony w zachodniej części Józefowa – blisko centrum Michalina. Nieruchomość znajduje się na kameralnym, nowym osiedlu składającym się z 5 budynków dwulokalowych (łącznie 10 lokali).
5 pokoi – Józefów zachodni | Stan deweloperski | Bez PCC i prowizji
Lokalizacja: zachodni Józefów
Powierzchnia użytkowa: 105,28 m²
Działka: 267 m²
Miejsca postojowe: 2 naziemne
Dostępność: budynki są po odbiorach nadzoru, istnieje możliwość podpisania umowy sprzedaży
Układ bez skosów – pełne dwie kondygnacje
Ściany działowe między segmentami z warstwą izolacji
Stan deweloperski – możliwość aranżacji według własnych potrzeb
Ogrzewanie podłogowe na obu kondygnacjach ze sprzęgłem grzewczym
Blisko stacji PKP Michalin – ok. 1 km
W galerii zdjęcia z przykładami możliwych aranżacji przestrzeni.
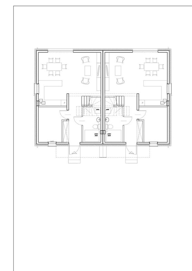
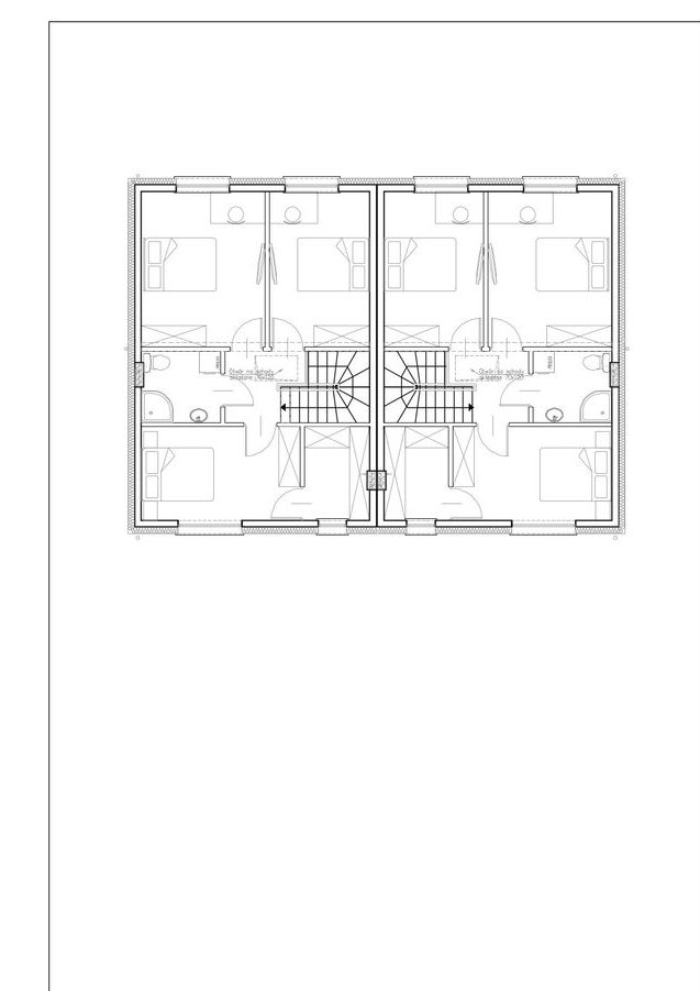
Rozkład pomieszczeń
PARTER – 53,84 m²
Wiatrołap: 5,72 m²
Łazienka: 6,04 m²
Pokój: 9,18 m²
Salon z aneksem kuchennym: 32,90 m²
PIĘTRO – 51,44 m²
Korytarz: 3,83 m²
Pokój: 12,22 m²
Garderoba: 3,86 m²
Łazienka: 4,29 m²
Pokój: 15,08 m²
Pokój: 12,16 m²
Na osiedlu dostępne są także inne lokale o powierzchni użytkowej od 103 m² do 105 m².
Standard wykończenia
Ściany z ceramiki Porotherm
Okna trzyszybowe z wysokiej jakości okuciami
Ocieplenie: styropian grafitowy Austrotherm
Tynk silikonowy – odporny na zabrudzenia i zazielenienia
Dach: blachodachówka
Kominy systemowe, drewniane drzwi wejściowe
Instalacje: alarmowa, TV, internet, oświetlenie i podlewanie ogrodu
Piec gazowy z zasobnikiem, posadzki anhydrytowe
Ogrodzenie: murowane + siatka panelowa, brama i furtka systemowa
Media i infrastruktura
Woda miejska
Kanalizacja miejska
Prąd
Gaz
Światłowód
Lokalizacja i otoczenie
Józefów (powiat otwocki) to zielona, prestiżowa miejscowość położona wśród sosnowych lasów, zaledwie 15 km od centrum Warszawy.
Doskonała komunikacja: obwodnica, droga ekspresowa i SKM.
W promieniu 10 minut pieszo – sklepy, szkoły, przedszkola, usługi i cała infrastruktura miejska.
Inwestycja realizowana przez sprawdzonego lokalnego dewelopera.
Zadzwoń lub napisz, umów się na prezentację! Poprowadzę Cię bezpiecznie przez cały proces zakupu – bez prowizji i zbędnych formalności.
Ogłoszenie nie stanowi oferty w rozumieniu art. 66 §1 Kodeksu Cywilnego.
Ogólne informacje
| Rodzaj | Na sprzedaż |
|---|---|
| Powierzchnia użytkowa | 110 m² |
| Liczba pokoi | 5 |




