Segment | Fotowoltaika | Pompa ciepła | Bilcza
Świętokrzyskie
Opis
Na sprzedaż nowoczesny dom w zabudowie szeregowej w Bilczy, zaledwie 2 km od granicy Kielc. Nieruchomość o powierzchni 118 m² na działce 235 m² (7,5 × 31,5 m). Budynek posiada pozwolenie na użytkowanie, sprzedawany jest w stanie deweloperskim o podwyższonym standardzie.
Dom zaprojektowany w nowoczesnej technologii zapewniającej bardzo niskie koszty utrzymania - wyposażony w pompę ciepła, instalacji fotowoltaiczną 3 kW z magazynem energii 5 kW, rekuperację oraz ogrzewanie podłogowe. Dodatkowo przygotowano instalację do ładowania samochodu elektrycznego w znajdującyk się w bryle budynku garażu.
Najważniejsze atuty:
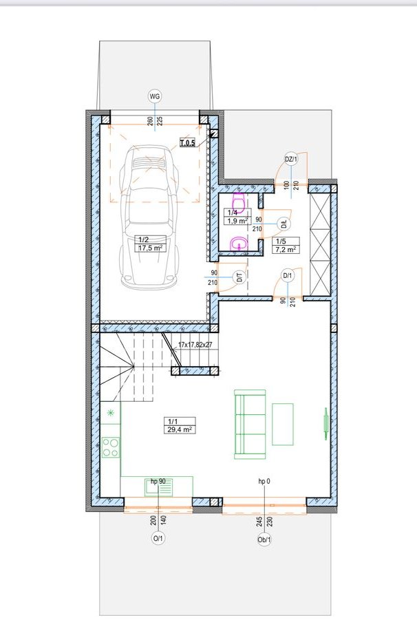
powierzchnia domu 118 m²
działka 235 m² z ogrodem ok. 80 m²
garaż + miejsce postojowe
płaski dach - nowoczesna bryła
taras 12 m²
pompa ciepła + rekuperacja
fotowoltaika z magazynem energii
ogrzewanie podłogowe w całym domu
videodomofon, oświetlenie zewnętrzne, instalacja pod kamery i rolety
przyłącze gazowe
bardzo dobre doświetlenie (ekspozycja północ-południe)
Układ pomieszczeń:
salon z aneksem kuchennym 30 m² i wyjściem na taras
4-5 pokoi (2 warianty układu piętra)
łazienka + WC
pralnia/kotłownia
garaż 18,5 m²
Świetna lokalizacja:
6-8 minut do Kielc (Castorama)
w pobliżu: sklepy, szkoła, przedszkole, żłobek, Lidl, Biedronka, Rossmann, McDonald's, komunikacja miejska, w planach nowoczesny kompleks handlowy Perfect Alfa
W najbliższym otoczeniu znajdują się tereny zielone i spacerowe, a także zabudowa jednorodzinna, co tworzy kameralny i bezpieczny charakter okolicy. W pobliżu dostępna jest również pełna infrastruktura: sklepy, szkoła, przedszkole, komunikacja miejska oraz punkty usługowe.
W najbliższym otoczeniu znajdują się tereny zielone i spacerowe, a także zabudowa jednorodzinna, co tworzy kameralny i bezpieczny charakter okolicy. W pobliżu dostępna jest również pełna infrastruktura: sklepy, szkoła, przedszkole, komunikacja miejska oraz punkty usługowe. Idealne miejsce dla osób, które chcą połączyć spokój, naturę i wygodę codziennego życia z szybkim dostępem do Kielc
Zapraszamy do oglądania nieruchomości!
Więcej informacji w siedzibie biura Kielce, ul. Wspólna 2B/25 (parter).
Ogólne informacje
| Rodzaj | Na sprzedaż |
|---|---|
| Powierzchnia użytkowa | 118 m² |
| Liczba pokoi | 4 |




