Słoneczny apartament przy Motławie Promocja
Gdańsk, Pomorskie
Opis
SŁONECZNY APARTAMENT NAD BULWAREM PRZY SAMEJ MOTŁAWIE
Luksusowa inwestycja nad samą Motławą | Nowoczesna architektura | Eleganckie wnętrza | Industrialny klimat | Nowa dzielnica blisko historycznego centrum miasta | Stan deweloperski (realizacja: 2027)
*****
ROZKŁAD POMIESZCZEŃ:
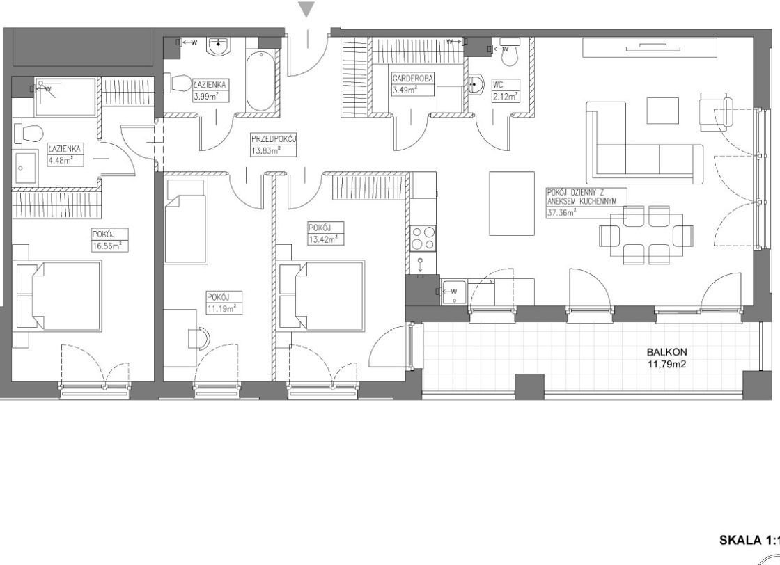
* Apartamenty o powierzchni do 139 m2;
* 1 - 4 pokoje;
* panoramiczne okna, balkony, loggie lub tarasy.
OPIS INWESTYCJI i LOKALIZACJA:
Nowe osiedle powstaje nad samą Motławą przy ul. Stępkarskiej i Wiosny Ludów - w Młodym Mieście - jednej z najciekawszych części Gdańska. To przykład nowoczesnej rewitalizacji terenów postoczniowych, łączący przemysłową historię z miejskim stylem życia. W okolicy znajdują się restauracje, sklepy i usługi, a spacer do zabytkowego centrum i Muzeum II Wojny Światowej zajmuje tylko kilka minut. Całość dopełni zielony bulwar z instalacjami artystycznymi i lokale gastronomiczne w parterach budynków.
STANDARD:
Wnętrza zaprojektowano w eleganckim, nowoczesnym stylu - jasne kolory, czarne detale i drewno tworzą przytulny klimat. Apartamenty oferują wiele udogodnień: ponadstandardową wysokość pomieszczeń, panoramiczne okna, balkony i loggie, a także możliwość montażu klimatyzacji i rolet zewnętrznych. Wszystkie mieszkania wyposażone są w inteligentny system zarządzania.
Do dyspozycji mieszkańców będzie m.in. prywatna strefa fitness z sauną, zielone patio z widokiem na rzekę oraz ekskluzywne, dwupoziomowe lobby z portierem i miejscem na przesyłki. Całość objęta będzie nowoczesnym systemem monitoringu. Restauracje, sklepy i nadbrzeżny bulwar uzupełnią komfort życia w tej prestiżowej inwestycji. W pierwszym etapie powstanie 168 apartamentów.
INFORMACJE DODATKOWE:
* Przygotowanie do instalacji klimatyzacji w każdym apartamencie.
* Maksymalne doświetlenie naturalnym światłem - drewniane, panoramiczne i trzyszybowe okna.
* Panele fotowoltaiczne zasilające części wspólne.
* System rozpoznawania tablic rejestracyjnych przy wjeździe do garażu.
* Ładowarki do samochodów elektrycznych.
* Codzienna wygoda i bezpieczeństwo - ochrona, pomieszczenie na przesyłki, infrastruktura dla rowerzystów.
* Zielone wewnętrzne patio z miejscami do wypoczynku i widokiem na rzekę.
* Obligatoryjny zakup 1-2 przynależnych miejsc postojowych w hali garażowej i komórki lokatorskiej.
*
Serdecznie zapraszam na prezentację!
——————————————
KONTAKT:
Wojciech Latek: +48 535 013 117 (licencja zawodowa nr 28336)
Przedstawiona wyżej oferta nie jest ofertą handlową w rozumieniu przepisów prawa, lecz ma charakter informacyjny. Partners International dokłada starań, aby treści przedstawione w naszych ofertach były aktualne i rzetelne. Dane dotyczące ofert uzyskano na podstawie oświadczeń Sprzedających.
——————————————
CONTACT:
Wojciech Latek: +48 535 013 117 (professional license No. 28336)
Outlined above proposal is not a commercial offer for the purposes of the law but is informative. All data relating to real estate was obtained on the basis statements of the Sellers.
——————————————
SUNNY APARTMENT ON THE BOULEVARD RIGHT BY THE MOTŁAWA RIVER
Luxury riverside development | Modern architecture | Elegant interiors | Industrial vibe | New district near Gdańsk's historic center | Shell and core standard (completion: 2027)
*****
LAYOUT:
* Apartments up to 139 m²;
* 1-4 rooms;
* panoramic windows, balconies, loggias or terraces.
INVESTMENT & LOCATION:
A brand-new residential complex is being developed right on the Motława River, at Stępkarska and Wiosny Ludów Streets - in Młode Miasto (Young City) - one of the most exciting areas of Gdańsk. It’s a modern revitalization of former shipyard grounds, combining industrial heritage with urban lifestyle.
Restaurants, shops, and services are just around the corner, and it takes only a few minutes to walk to the Old Town and the Museum of the Second World War. The project will be completed with a green riverside boulevard featuring art installations and restaurants on the ground floors of the buildings.
STANDARD:
The interiors are designed in an elegant, modern style - light colors, black accents, and wood create a cozy atmosphere. Apartments offer a range of conveniences: above-standard ceiling height, panoramic windows, balconies and loggias, as well as the option to install air conditioning and external blinds. All units come equipped with a smart home system.
Residents will have access to a private fitness area with sauna, a green courtyard overlooking the river, and a stylish two-level lobby with concierge service and package lockers. A state-of-the-art surveillance system will ensure security. Restaurants, shops, and the riverside promenade will further enhance the comfort of living in this prestigious development. The first phase includes 168 apartments.
ADDITIONAL INFORMATION:
* Ready for air conditioning installation in every apartment.
* Maximum natural light - triple-glazed wooden panoramic windows.
* Photovoltaic panels powering common areas.
* License plate recognition system at the garage entrance.
* Electric vehicle charging stations.
* Daily comfort and safety - security, package room, cycling facilities.
* Green inner patio with seating and river views.
* Purchase of 1-2 dedicated parking spaces in the underground garage and a storage unit is mandatory.
*
You are very welcome to schedule a viewing!
Ogólne informacje
| Rodzaj | Na sprzedaż |
|---|---|
| Powierzchnia użytkowa | 106.45 m² |
| Piętro | 3 |
| Liczba pokoi | 4 |




