Słoneczny dom 142m2 z ogrodem 238m2 (B2-20)
Gdańsk, Pomorskie
Opis
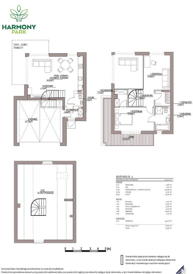
Willa HARMONY PARK typu B-2 została zaprojektowana jako budynek wolnostojący, o zwartej bryle, jednolokalowy, piętrowy, niepodpiwniczony, z poddaszem użytkowym.
Budynki te posiadają wbudowany garaż na dwa samochody na poziomie parteru.
Na parterze każdego z budynków przewidziano hall wejściowy, toaletę, pokój dzienny z aneksem kuchennym.
Warto zaznaczyć, że nad salonem znajduje się pustka otwierająca przestrzeń na wysokość kolejnej kondygnacji, co daje spektakularny efekt doświetlenia części dziennej domu.
Na piętrze zaprojektowano komunikację ze schodami, sypialnię z łazienką, pomieszczenie gospodarcze/ garderobę oraz antresolę, która zaaranżowana może zostać na gabinet.
Poddasze natomiast o powierzchni użytkowej 33,7 m2 (po podłodze aż 60m2) może stanowić jedna dużą przestrzeń lub zostać zaaranżowane na kolejne 2 pokoje. Jest także możliwość wykonania tam dodatkowej, dedykowanej temu poziomowi łazienki.
Ogólne informacje
| Rodzaj | Na sprzedaż |
|---|---|
| Powierzchnia użytkowa | 141.77 m² |
| Liczba pokoi | 4 |




