Sopot Górny | Apartament z klimatem
Sopot, Pomorskie
Opis
PRZESTRONNY APARTAMENT W PRZEDWOJENNEJ KAMIENICY Z KLIMATEM
Stylowe wnętrze | Wysokie sufity | Klimatyczna aranżacja I Odrestaurowana kamienica I Doskonała lokalizacja w sercu Sopotu | Spokojna okolica w odległości 1 km od morza
Prezentujemy unikalny apartament o powierzchni 92 m², po remoncie generalnym, gdzie udało się połączyć klasyczny urok kamienicy z nowoczesnym komfortem. Przemyślana aranżacja wnętrza podkreśla eleganckie detale, wysokie sufity oraz piękne, naturalne materiały. To propozycja dla osób poszukujących mieszkania z duszą w prestiżowej lokalizacji.
*****
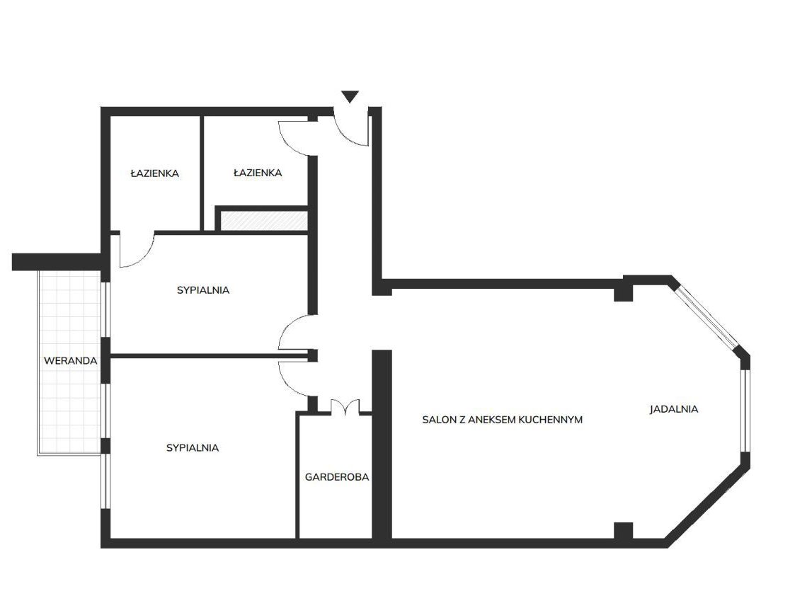
ROZKŁAD POMIESZCZEŃ:
Apartament składa się z:
* przestronnego, 42 m2 salonu z dużymi oknami, które zapewniają doskonałe doświetlenie wnętrza, połączonego z nowoczesną kuchnią i jadalnią,
* zapewniającej intymność sypialni głównej z własną łazienką z prysznicem oraz werandą,
* drugiej przestronnej sypialni/gabinetu idealnego dla dzieci lub do pracy zdalnej,
* eleganckiej łazienki z prysznicem,
* zabudowanej i ogrzewanej werandy, która stanowi dodatkowy metraż mieszkania,
* przestronnej garderoby, z dużą ilością miejsca do przechowywania,
* reprezentacyjnego holu.
STANDARD:
Mieszkanie przeszło remont generalny/ Pod okiem architekta na nowo zostały zaaranżowane wszystkie funkcje. Wnętrze utrzymane jest w spójnej estetyce, łącząc klasyczne elementy z nowoczesnym designem. Wyjątkowa stolarka drzwiowa, piękna podłoga z oryginalnych desek dębowych holenderskiego Chapel Parket, naturalne kamienie oraz wysokie sufity dodają przestrzeni elegancji. Apartament został wykończony przy użyciu najwyższej jakości materiałów, a kuchnia wyposażona jest w nowoczesny sprzęt AGD firmy Siemens. Dzięki przemyślanemu układowi pomieszczeń i dbałości o detale, wnętrze jest funkcjonalne i przyjazne w codziennym użytkowaniu.
LOKALIZACJA:
Mieszkanie położone jest w jednej z najbardziej prestiżowych części Sopotu - w urokliwej, kameralnej okolicy Górnego Sopotu, w otoczeniu przedwojennej zabudowy i bujnej zieleni.
Lokalizacja łączy w sobie zalety spokojnej, prestiżowej dzielnicy z łatwym dostępem do atrakcji i miejskiej infrastruktury:
* Sopot Centrum (Dworzec PKP) - zaledwie 5 minut spacerem, co zapewnia wygodny dostęp do komunikacji miejskiej oraz połączeń kolejowych.
* Słynne sopockie Molo - około 15 minut spacerem.
* Ulica Bohaterów Monte Cassino (Monciak) - tylko 10 minut pieszo. To miejsce tętniące życiem, pełne restauracji, kawiarni i butików.
* Plaża i nadmorskie tereny spacerowe , to niecały 1 km drogi, a do Trójmiejskiego Parku Krajobrazowego to zaledwie 400m.
* Opera Leśna - zaledwie kilka minut pieszo, idealne miejsce na koncerty i wydarzenia kulturalne.
INFORMACJE DODATKOWE:
* Miejsca postojowe na terenie posesji.
* Ogrzewanie gazowe nowoczesnym piecem kondensacyjnym.
* Możliwość zakupu z pełnym wyposażeniem.
Serdecznie zapraszam na prezentację!
——————————————
KONTAKT:
Dorota Korycka: +48 536 482 000 (licencja zawodowa nr 29803)
Przedstawiona wyżej oferta nie jest ofertą handlową w rozumieniu przepisów prawa, lecz ma charakter informacyjny. Partners International dokłada starań, aby treści przedstawione w naszych ofertach były aktualne i rzetelne. Dane dotyczące ofert uzyskano na podstawie oświadczeń Sprzedających.
Jako biuro nieruchomości pobieramy za usługę pośrednictwa wynagrodzenie w formie prowizji.
——————————————
CONTACT:
Dorota Korycka: +48 536 482 000 (professional license No. 29803)
Outlined above proposal is not a commercial offer for the purposes of the law but is informative. All data relating to real estate was obtained on the basis statements of the Sellers.
As a real estate agency we charge a commission.
——————————————
SPACIOUS APARTMENT IN A CHARMING PRE-WAR TENEMENT
Stylish Interior | High Ceilings | Unique Atmosphere | Renovated Historic Building | Prime Location in the Heart of Sopot | Peaceful Area 1 km from the Sea
We present a unique 92 m² apartment after a complete renovation, where the classic charm of a historic tenement has been seamlessly combined with modern comfort. The thoughtfully designed interior highlights elegant details, high ceilings, and beautiful natural materials. This is a perfect choice for those looking for a home with character in a prestigious location.
*****
LAYOUT:
The apartment consists of:
* spacious 42 m² living room with large windows providing excellent natural light, seamlessly connected to a modern kitchen and dining area,
* private master bedroom with its own en-suite bathroom with a shower and access to a veranda,
* second spacious bedroom/home office, ideal for children or remote work,
* elegant bathroom with a shower,
* built-in heated veranda, adding extra usable space,
* large walk-in wardrobe with ample storage,
* representative entrance hall.
STANDARD:
The apartment has undergone a complete renovation under the supervision of an architect, with all functions redesigned for maximum comfort. The interior maintains a harmonious aesthetic, blending classic elements with modern design. Exceptional door joinery, original oak flooring by Chapel Parket, natural stone finishes, and high ceilings add a touch of elegance.
The apartment is finished with top-quality materials, and the kitchen is fully equipped with Siemens appliances. Thanks to the well-planned layout and attention to detail, the space is both functional and pleasant for everyday living.
LOCATION:
The apartment is situated in one of the most prestigious areas of Sopot—Upper Sopot, a charming and peaceful neighborhood surrounded by historic architecture and lush greenery.
This prime location offers the perfect blend of tranquility and city convenience:
* Sopot Centrum (Train Station) - just a 5-minute walk, providing easy access to public transport and railway connections.
* Famous Sopot Pier - approximately 15 minutes on foot.
* Monte Cassino Street (Monciak) - just 10 minutes on foot, the city’s vibrant hotspot full of restaurants, cafes, and boutiques.
* Beach and coastal promenade - less than 1 km away. Tricity Landscape Park is just 400 meters away.
* Opera Leśna - a few minutes’ walk, perfect for concerts and cultural events.
ADDITIONAL INFORMATION:
* On-site parking spaces available.
* Gas heating with a modern condensing boiler.
* Option to purchase fully furnished.
We warmly invite you for a viewing!
Ogólne informacje
| Rodzaj | Na sprzedaż |
|---|---|
| Powierzchnia użytkowa | 92 m² |
| Piętro | 3 |
| Liczba pokoi | 3 |




