Standard PREMIUM czyli Nowoczesny dom do umeblowania z garażem
Mazowieckie
Opis
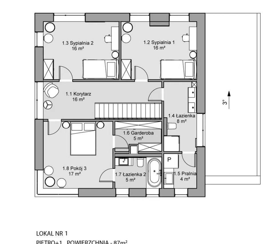
Dom jednorodzinny 2 lokalowy
Powierzchnia domu: 200 m²
Powierzchnia działki: 500 m²
Liczba kondygnacji: Parter i pełne piętro (wysokość 280 cm i 290 cm, brak skosów)
Media: Szambo 10 m³, prąd, woda miejska
Standard wykończenia i technologia
Nieruchomość wybudowana w technologii trójwarstwowej (Porotherm) z elewacją z ręcznie formowanego klinkieru. Dom charakteryzuje się wysoką energooszczędnością oraz nowoczesną architekturą:
Rekuperacja: System wentylacji mechanicznej z odzyskiem ciepła.
Ogrzewanie: Pełne ogrzewanie podłogowe na obu kondygnacjach (zasilane piecem elektrycznym).
Ogrodzenie: Nowoczesne ogrodzenie szklane, podkreślające prestiżowy charakter inwestycji.
Okna: Panoramiczne pakiety 3-szybowe.
Bezpieczeństwo: Rolety antywłamaniowe oraz instalacja alarmowa.
Lokalizacja:
Dom położony jest w miejscowości Kamionka (powiat piaseczyński), w bezpośrednim sąsiedztwie lasu brzozowego
Komunikacja:
20 minut do trasy S7,
4 minuty do stacji PKP Czachówek Południowy.
Infrastruktura:
Sklep Netto (3 min), szkoła podstawowa (7 min), żłobek i przedszkole (4 min).
Rekreacja:
Bliskość stawów oraz Warsaw Polo Club.
Cena i opcje zakupu:
Cena (stan deweloperski):
1 200 000 PLN
Cena (wykończony; podłogi, płytki, wc, wanna, prysznic, drzwi wewnętrze szklane, schody szklane ):
1 500 000 PLN
Oferujemy pełne wsparcie eksperta kredytowego w procesie uzyskania finansowania.
Zapraszam do kontaktu i na prezentację nieruchomości.
Niniejsze ogłoszenie ma charakter informacyjny i nie stanowi oferty handlowej w rozumieniu art. 66 Kodeksu cywilnego. Zdjęcia przedstawiają przykładową wizualizację wykończenia wnętrz.
Ogólne informacje
| Rodzaj | Na sprzedaż |
|---|---|
| Powierzchnia użytkowa | 200 m² |
| Liczba pokoi | 5 |




