Stary Mokotów | Kamienica | Balkon | M. Parkingowe | Zabytkowy parkiet
Warszawa, Mazowieckie
Opis
| English version below |
| Agencję proszę o niekontaktowanie się |
O mieszkaniu
Na sprzedaż mieszkanie o powierzchni 42 m² z miejscem parkingowym (parking), położone w zabytkowej części Starego Mokotowa. Lokal znajduje się na 2. piętrze przedwojennej kamienicy z 1933 roku, zaprojektowanej przez architekta Antoniego Jawornickiego w 1928 roku. Przed wojną w budynku mieścił się Dom Podoficerski Funduszu Kwaterunku Wojskowego. Wejście do klatki od zielonego, spokojnego podwórza. Mieszkanie jest jasne i przestronne, z oknami wychodzącymi na zieleń.
Lokalizacja
Serce Starego Mokotowa – jedna z najbardziej klimatycznych części Warszawy.
5 minut pieszo do parku Pole Mokotowskie
7 minut pieszo do stacji Metra - Pole Mokotowskie
2 minuty pieszo do nowej linii tramwajowej - przystanek Mokotów-Ratusz
W okolicy liczne kawiarnie, restauracje, sklepy, galerie sztuki oraz antykwariaty w tym lodziarnia Jednorożec czy nowa kawiarnia Sando Cafe
blisko uczelnia SGH, centrum handlowe Plac Unii
Naprzeciwko znajduje się również Muzeum Geologiczne Państwowego Instytutu Geologicznego. Okolica jest bardzo zielona, z wieloma skwerami i bezpośrednim dostępem do parku.
Do mieszkania przynależy również miejsce parkingowe tylko dla mieszkańców oraz duża, jasna i odnowiona piwnica.
Architektura i charakter wnętrza
Mieszkanie zostało zaprojektowane przez architekt Katarzynę Schudy. W projekcie zachowano wiele elementów nawiązujących do przedwojennego charakteru kamienicy:
oryginalny dębowy parkiet po renowacji
wysokie sufity z subtelnymi zaokrągleniami
meble wykonane na zamówienie, dopasowane do półokrągłej wnęki wejściowej
odrestaurowane mosiężne klamki
zabytkowe meble projektanta Rajmunda Teofila Hałasa
lampy i dodatki z ryflowanego szkła
w łazience płytki podłogowe typu "gorseciki", charakterystyczne dla warszawskich przedwojennych kamienic
Remont
Mieszkanie przeszło generalny remont i renowację w 2022 roku, obejmujące m.in.:
renowację zabytkowego parkietu
przebudowę i wzmocnienie ścian
powiększenie łazienki
całkowicie nową instalację elektryczną (ze zwiększeniem mocy)
nową instalację wodno-kanalizacyjną
ogrzewanie podłogowe w łazience
gładzie na ścianach
instalację kabli doprowadzających światłowód do każdego pomieszczenia
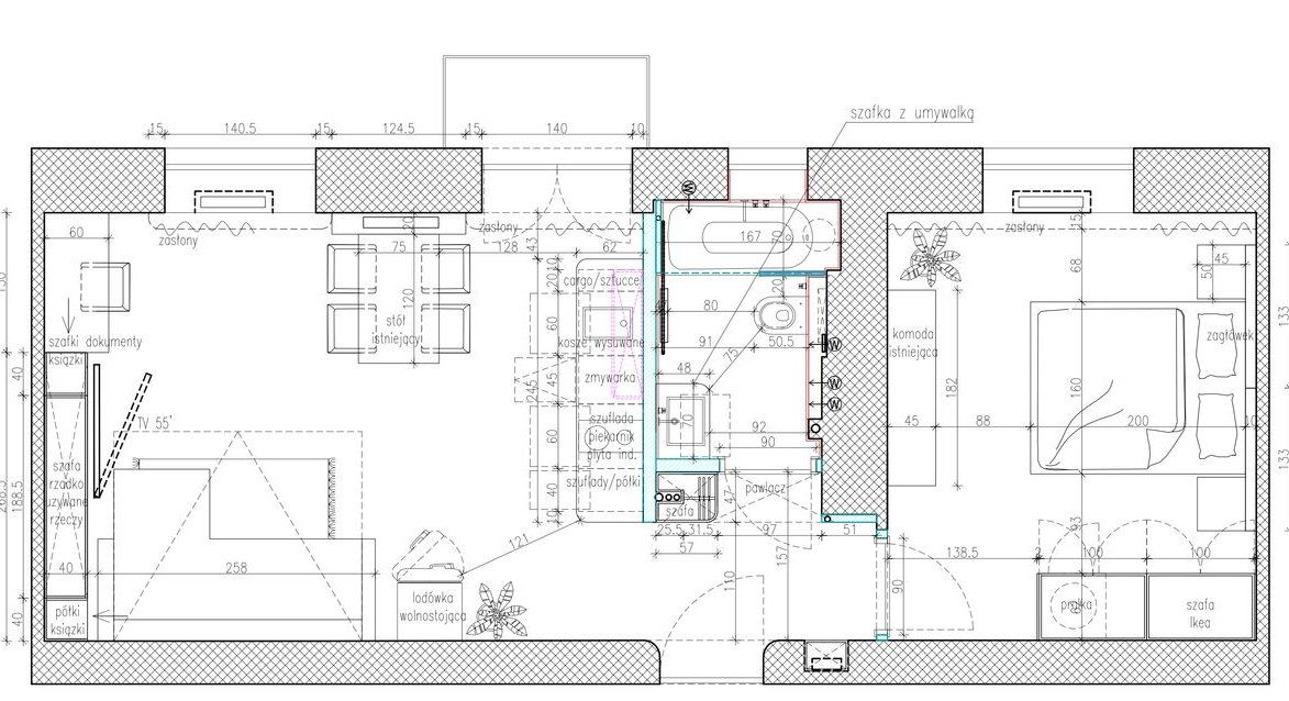
Układ mieszkania
salon z aneksem kuchennym
sypialnia
przedpokój
łazienka z oknem
balkon
piwnica
Salon + Kuchnia
dwuskrzydłowe drzwi balkonowe
duża, wygodna sofa w salonie
zabytkowy rozkładany stół + 4 odrestaurowane krzesła
bufet komoda pokryta fornirem orzechowym
kuchnia z grubym kamiennym blatem robionym na zamówienie
zaoblone fronty kuchenne robione na zamówienie nawiązujące do charakteru mieszkania
płytą indukcyjną i zmywarka i lodówka
nowe antywłamaniowe drzwi wejściowe
Przedpokój
szafa wnękowa wykonana na zamówienie
duży pawlacz
Łazienka
duża wanną z prysznicem typu deszczownica
ogrzewanie podłogowe w łazience
meble umywalkowe z forniru orzechowego
armatura Omnires
Hiszpanie płytki
gorseciki z ceramiki Paradyż
Sypialnia
duże łóżko 160 × 200 cm
bardzo pojemna szafa z podświetleniem
w szafie ukryta pralka
Sprzedaż bezpośrednia - bez prowizji dla agencji.
Oferta od właściciela.
____________________________________________
| English version |
About the Apartment
Apartment for sale, 42 m², with private parking space (residents parking), located in the historic part of Old Mokotów in Warsaw. The apartment is on the 2nd floor of a pre-war building from 1933, designed by architect Antoni Jawornicki in 1928. Before World War II the building was used as a residence for military officers. The entrance to the staircase is from a quiet, green courtyard. The apartment is bright and spacious, with windows facing greenery.
Location
The apartment is located in the heart of Old Mokotów, one of the most charming and green areas of Warsaw.
5 minutes walk to Pole Mokotowskie
7 minutes walk to Warsaw Metro - Pole Mokotowskie metro station
2 minutes walk to the new tram line - Mokotów-Ratusz stop
Nearby you will find many cafés, restaurants, shops, art galleries and antique bookstores, including the popular ice cream place Jednorożec and Sando Cafe.
Close to the apartment:
SGH Warsaw School of Economics
Plac Unii City Shopping
Geological Museum of the Polish Geological Institute
The neighborhood is very green, with many small parks and direct access to Pole Mokotowskie park.
The apartment also includes:
private parking space for residents
large, bright and renovated basement storage
Architecture and Interior Character
The apartment was designed by architect Katarzyna Schudy.
Many elements keep the pre-war character of the building, including:
original oak parquet floor, fully restored
high ceilings with soft rounded corners
custom-made furniture designed for the semi-round entrance niche
restored brass door handles
vintage furniture by designer Rajmund Teofil Hałas
lamps and decorations made of ribbed glass
bathroom floor tiles called "gorseciki", typical for historic Warsaw apartments
Renovation
The apartment had a full renovation in 2022, including:
restoration of the historic parquet floor
rebuilding and strengthening of walls
larger bathroom
completely new electrical system (higher power capacity)
new water and sewage installation
underfloor heating in the bathroom
smooth plastered walls
fiber-optic internet cables installed in every room
Apartment Layout
living room with open kitchen
bedroom
hallway
bathroom with window
balcony
basement storage
Living Room + Kitchen
double balcony doors
large comfortable sofa
vintage extendable dining table + 4 restored chairs
sideboard cabinet with walnut veneer
kitchen with custom thick stone countertop
custom curved kitchen fronts matching the style of the apartment
induction cooktop
dishwasher
fridge
new anti-burglary entrance door
Hallway
built-in wardrobe (custom made)
large overhead storage
Bathroom
large bathtub with rain shower
underfloor heating
walnut veneer sink cabinet
bathroom fittings by Omnires
Spanish tiles
ceramic "gorseciki" tiles by Paradyż
Bedroom
large bed 160 × 200 cm
very spacious wardrobe with lighting
washing machine hidden inside the wardrobe
Direct sale – no agency commission.
Offer from the owner.
Ogólne informacje
| Rodzaj | Na sprzedaż |
|---|---|
| Powierzchnia użytkowa | 42 m² |
| Piętro | 2 |
| Liczba pokoi | 3 |




