Szereg po kapitalnym remoncie na Algierskiej
Warszawa, Mazowieckie
Opis
Odkryj wyjątkowy szeregowiec położony w jednej z najbardziej prestiżowych i zielonych części Warszawy, na Saskiej Kępie, przy ulicy Algierskiej. Ten dom to idealna propozycja zarówno dla dużej rodziny, jak i dla inwestora, poszukującego pewnej lokaty kapitału.
Kluczowe parametry nieruchomości
Powierzchnia całkowita: 250 m²
Powierzchnia mieszkalna: 215 m²
Powierzchnia działki: 251 m² (ogród) + dodatkowe miejsca postojowe
Dom, wybudowany w 1989 roku, przeszedł gruntowny remont w 2010 roku, co zapewnia jego doskonały stan techniczny. Zakres prac obejmował docieplenie elewacji, wymianę dachu oraz okien na drewniane z szybami P4, a także całkowitą renowację wnętrza, w tym wymianę podłóg na drewniane.
Rozkład pomieszczeń
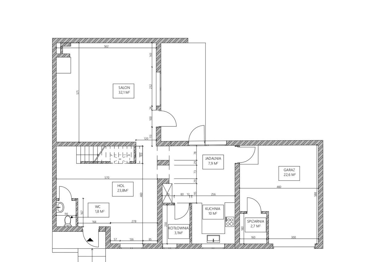
PARTER:
Przestronny salon (32 m²) z wyjściem na słoneczny, zachodni ogród.
Kuchnia z jadalnią (17 m²) z bezpośrednim dostępem do ogrodu.
Praktyczna spiżarka.
Garaż.
Duży hol i WC dla gości.
Kotłownia.
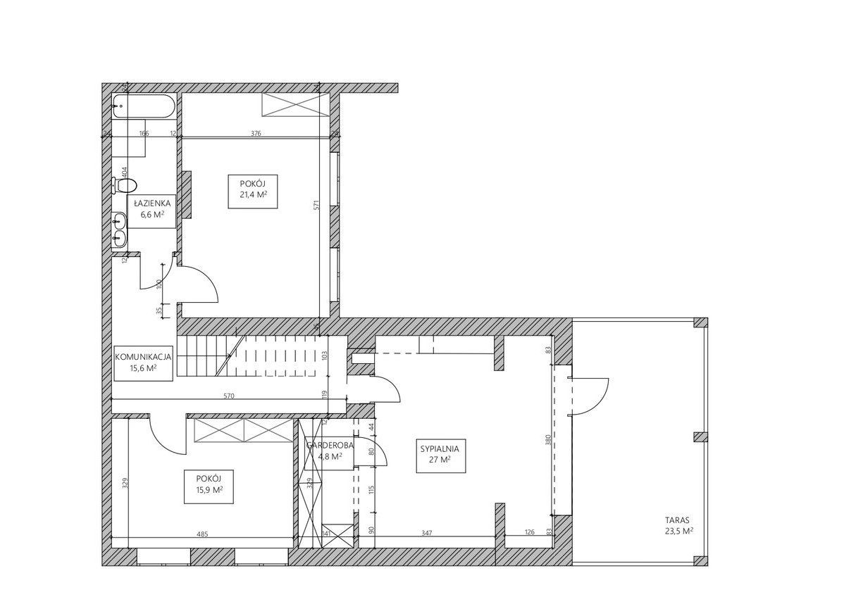
I PIĘTRO:
Główna sypialnia (27 m²) z wyjściem na przestronny taras (23,5 m²).
Dwie dodatkowe sypialnie (21,4 m² oraz 15,9 m²).
Duża garderoba (4,8 m²) i łazienka.
Korytarz z licznymi szafami.
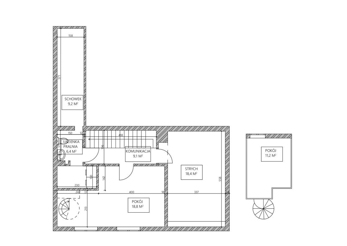
II PIĘTRO:
Dwa pokoje (18,8 m² i 11,2 m², połączone schodami) – idealne na gabinet lub pokój hobby.
Dodatkowa łazienka.
Strych i schowek.
Ogród i lokalizacja
Przestronny, zachodni ogród o powierzchni 251 m² zapewnia doskonałe nasłonecznienie przez całe popołudnie, tworząc idealne miejsce do relaksu i spotkań na świeżym powietrzu. Przed domem znajdują się również dwa miejsca postojowe.
Lokalizacja jest niezaprzeczalnym atutem. Saska Kępa to jedna z najbardziej pożądanych dzielnic Warszawy, ceniona za swoją architekturę, liczne tereny zielone i kompletną infrastrukturę. W pobliżu znajdują się renomowane szkoły (w tym międzynarodowe), przedszkola, obiekty rekreacyjne oraz sklepy i restauracje, co czyni to miejsce idealnym dla rodzin.
Informacje dodatkowe
Nieruchomość stanowi doskonałą okazję inwestycyjną, ponieważ jest obecnie wynajmowana do 31 czerwca 2026 roku. Miesięczny przychód z najmu wynosi 14 000 zł, co zapewnia stabilny i wysoki zwrot z inwestycji od pierwszego dnia. Istnieje możliwość przedłużnia umowy.
ENGLISH VERSION:
Oto tłumaczenie na język angielski:
Description
Unique Terraced House in Green Saska Kępa: An Ideal Investment Opportunity
Discover a unique terraced house located in one of Warsaw's most prestigious and green districts, Saska Kępa, on Algierska Street. This house is a perfect fit for both a large family and an investor looking for a secure capital placement.
Key Property Parameters
Total Area: 250 m²
Living Area: 215 m²
Plot Area: 251 m² (Garden) + Additional Parking Spaces
The house, built in 1989, underwent a thorough renovation in 2010, ensuring its excellent technical condition. The scope of work included façade insulation, roof replacement, new wooden windows with P4 safety glass, and complete interior refurbishment, including the replacement of floors with wooden ones.
Room Layout
GROUND FLOOR:
Spacious living room (32 m²) with access to a sunny, west-facing garden.
Kitchen with dining area (17 m²) with direct garden access.
Practical pantry.
Garage.
Large hall and guest WC.
Boiler room.
FIRST FLOOR:
Main bedroom (27 m²) with access to a spacious terrace (23.5 m²).
Two additional bedrooms (21.4 m² and 15.9 m²).
Large dressing room (4.8 m²) and bathroom.
Corridor with numerous built-in wardrobes.
SECOND FLOOR:
Two rooms (18.8 m² and 11.2 m², connected by stairs) – perfect for an office or hobby room.
Additional bathroom.
Attic and storage room.
Garden and Location
The spacious, west-facing garden (251 m²) ensures excellent sun exposure throughout the afternoon, creating an ideal place for relaxation and outdoor gatherings. There are also two parking spaces available in front of the house.
The location is an undeniable advantage. Saska Kępa is one of Warsaw's most desirable districts, valued for its architecture, numerous green areas, and comprehensive infrastructure. Reputable schools (including international ones), kindergartens, recreational facilities, shops, and restaurants are located nearby, making this an ideal place for families.
Additional Information
The property is an excellent investment opportunity as it is currently leased until June 2026. The monthly rental income is 14,000 PLN, providing a stable and high return on investment from day one.
Ogólne informacje
| Rodzaj | Na sprzedaż |
|---|---|
| Powierzchnia użytkowa | 250 m² |
| Liczba pokoi | 5 |




