SZEREGÓWKA W CENTRUM BIAŁEGOSTOKU- 140 M2- 4 POKOJE- OD 8 400 ZŁ/M2
Białystok, Podlaskie
Opis
Zapraszamy do zakupu nowoczesnej szeregówki w sercu Białegostoku przy ul. Celowniczej.
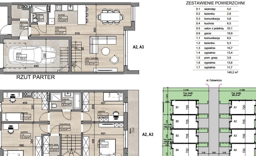
W skład nieruchomości wchodzą 4 pokoje na piętrze budynku, łazienka oraz garderoba; parter- salon, kuchnia, wiatrołap + pomieszczenie gospodarcze oraz garaż.
Powierzchnia działek segmentów skrajnych- od 252 m2 do 301 m2, segmenty wewnętrzne- 159, 8 m2.
Pełne media- wodociąg, kanalizacja, gaz z sieci, prąd, światłowód.
Stan deweloperski:
elektryka-w tym wideodomofon w ogrodzeniu głównym; system alarmowy; wyprowadzenie klimatyzacji; zasilenie do termostatu w każdym pomieszczeniu, gniazda antenowe w pokojach na piętrze, gniazdo siłowe w garażu; przycisk otwarcia bramy w garażu oraz przycisk wyłącz wszystko w odniesieniu do oświetlenia
tynki- cementowo-wapienne.
hydraulika- ogrzewanie podłogowe piętro + parter + garaż; rekuperacja,
posadzki tradycyjne
zagospodarowanie terenu- ogrodzenie, tarasy, droga wewnętrzna, wejście i podjazdy z kostki brukowej.
Cena segmentów wewnętrznych- 8 400 zł/m2; segmenty skrajne- 8 800 zł/m2
Sprzedaż bezpośrednia- nie pobieramy prowizji.
Ogólne informacje
| Rodzaj | Na sprzedaż |
|---|---|
| Powierzchnia użytkowa | 140.20 m² |
| Liczba pokoi | 4 |




