Taras na dachu | Górny Mokotów | Kameralny
Warszawa, Mazowieckie
Opis
KAMERALNA INWESTYCJA W SERCU STAREGO MOKOTOWA
Wyjątkowa lokalizacja przy Królikarni | Tylko 11 apartamentów | Inteligentny system Smart Home | Nowoczesna elegancja |
To propozycja dla tych, którzy pragną luksusu, prywatności i wyjątkowej lokalizacji. To inwestycja w styl życia - harmonijny, komfortowy i ponadczasowy
*****
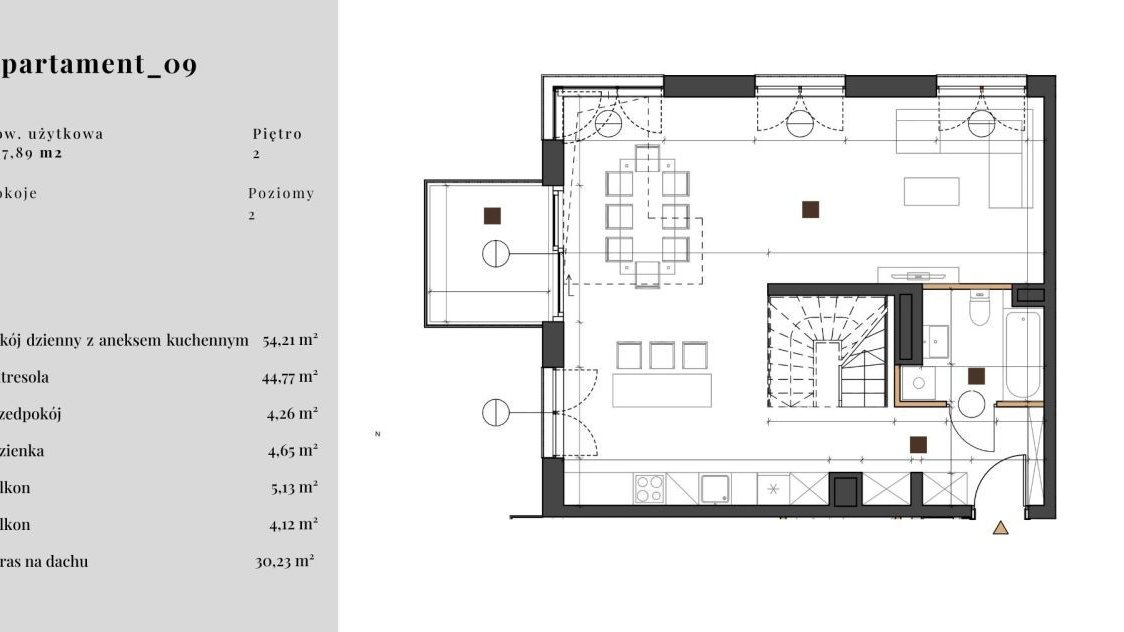
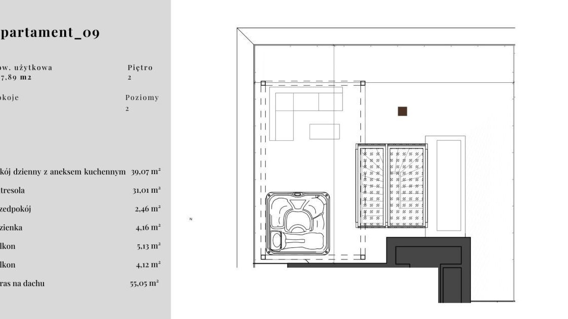
ROZKŁAD POMIESZCZEŃ:
* Pokój dzienny z aneksem kuchennym - 54,21 m²,
* łazienka - 4,65 m²,
* przedpokój - 4,26 m²,
* antresola - 44,77 m²,
* taras na dachu - 55,05 m²,
* balkon - 5,13 m²,
* balkon - 4,12 m².
INWESTYCJA:
Inwestycja stanowi harmonijne połączenie miejskiego stylu życia z kojącą ciszą, otulającą zielenią oraz unikalnym, przedwojennym klimatem tej części miasta.
Stworzona z myślą o najbardziej wymagających mieszkańcach, oferuje kameralny charakter, podkreślony przez ograniczoną liczbę lokali. Powstanie tu zaledwie jedenaście apartamentów, z których każdy został zaprojektowany jako indywidualna odpowiedź na potrzeby nowoczesnych użytkowników, ceniących komfort i funkcjonalność.
STANDARD:
Architektura tej inwestycji to synonim ponadczasowej elegancji, nowoczesności bez kompromisów oraz funkcjonalności widocznej w każdym, nawet najmniejszym detalu. Budynek został zaprojektowany z myślą o zapewnieniu najwyższego komfortu życia - zarówno pod względem estetycznym, jak i praktycznym. Przemyślane rozwiązania technologiczne obejmują między innymi inteligentny system Smart Home, który umożliwia zdalne zarządzanie oświetleniem, temperaturą oraz systemami bezpieczeństwa.
Ten zaawansowany system zapewnia nie tylko wygodę i pełną kontrolę nad przestrzenią mieszkalną, ale również przyczynia się do energooszczędności i spełnia najnowocześniejsze standardy życia. Starannie dobrane materiały wykończeniowe oraz spójny design części wspólnych dopełniają całości, tworząc inwestycję w nowy wymiar luksusu.
KLASA APARTAMENTÓW:
Każdy z jedenastu apartamentów charakteryzuje się dopracowanym układem funkcjonalnym, z wyraźnie oddzieloną przestrzenią dzienną i prywatną. Projektanci zadbali o to, aby każda strefa była maksymalnie komfortowa i ergonomiczna. Wysokość pomieszczeń, obfite naturalne doświetlenie oraz użycie ponadczasowych materiałów stanowią idealne tło do indywidualnej aranżacji wnętrz, z zachowaniem najwyższych standardów estetyki i elegancji.
LOKALIZACJA:
Inwestycja jest położona w samym sercu Starego Mokotowa - dzielnicy, która od lat cieszy się zasłużoną opinią jednej z najbardziej pożądanych lokalizacji w Warszawie. To wyjątkowe miejsce, które łączy w sobie ducha przeszłości z pulsującą energią nowoczesnego miasta.
W promieniu zaledwie kilku minut spacerem znajdują się liczne restauracje, oferujące szeroki wybór kulinarnych doznań - od kameralnych bistro po wyrafinowaną kuchnię autorską. Bliskość terenów zielonych oraz kulturalnych punktów na mapie Warszawy dodatkowo podnosi atrakcyjność tej lokalizacji. Inwestycja znajduje się tuż obok malowniczego parku Królikarnia, legendarnego kina Iluzjon oraz nowoczesnego kompleksu basenowego Warszawianka.
Zaledwie kwadrans dzieli inwestycję od ścisłego centrum stolicy, jednak atmosfera panująca w tej części Mokotowa przywodzi na myśl spokojne enklawy, pełne zieleni i klasycznej zabudowy, tworząc idealne warunki do życia i relaksu.
INFORMACJE DODATKOWE:
* Miejsce postojowe w garażu dodatkowo płatne 250 000 zł;
* Komórka lokatorska dodatkowo płatna: 37 620 zł;
Serdecznie zapraszam do kontaktu!
——————————————
KONTAKT:
Tomasz Romanowski +48 730 100 406
Przedstawiona wyżej oferta nie jest ofertą handlową w rozumieniu przepisów prawa, lecz ma charakter informacyjny. Partners International dokłada starań, aby treści przedstawione w naszych ofertach były aktualne i rzetelne. Dane dotyczące ofert uzyskano na podstawie oświadczeń sprzedających.
——————————————
CONTACT:
Tomasz Romanowski +48 730 100 406
The above information is not a commercial offer for the purposes of the law but is informative. All data relating to real estate was obtained on the basis of statements of the Sellers.
As a real estate agency, we charge a commission.
——————————————
INTIMATE APARTMENT IN THE HEART OF OLD MOKOTÓW
Exceptional location near Królikarnia Park | Only 11 apartments | Smart Home system | Modern elegance
This is a proposition for those who desire luxury, privacy, and a unique location. It's an investment in a lifestyle - harmonious, comfortable, and timeless.
*****
ROOM LAYOUT:
* Living room with kitchenette - 54,21 sqm,
* bathroom - 4,65 sqm,
* hallway - 4,26 sqm,
* mezzanine - 44,77 sqm,
* balcony - 5,13 sqm,
* balcony - 4,12 sqm,
* terrace - 55,05 sqm.
ABOUT THE DEVELOPMENT:
The development represents a harmonious blend of urban living with soothing tranquility, enveloping greenery, and the unique, pre-war atmosphere of this part of the city.
Created for the most discerning residents, it offers an intimate character, emphasized by the limited number of units. There will be just eleven apartments, each designed as an individual response to the needs of modern users who value comfort and functionality.
BUILDING STANDARD:
The architecture of this development is synonymous with timeless elegance, uncompromising modernity, and functionality visible in every, even the smallest detail. The building has been designed to provide the highest living comfort - both aesthetically and practically. Well-thought-out technological solutions include a Smart Home system, which allows remote management of lighting, temperature, and security systems.
This advanced system provides not only convenience and full control over the living space but also contributes to energy efficiency and meets the most modern living standards. Carefully selected finishing materials and a cohesive design of common areas complement the whole, creating an investment in a new dimension of luxury.
APARTMENT CLASS:
Each of the eleven apartments features a refined functional layout, with clearly separated living and private spaces. The designers have ensured that each zone is as comfortable and ergonomic as possible. The height of the rooms, abundant natural light, and the use of timeless materials provide an ideal backdrop for individual interior design, while maintaining the highest standards of aesthetics and elegance.
LOCATION:
The development is located in the very heart of Old Mokotów - a district that has long enjoyed a well-deserved reputation as one of the most desirable locations in Warsaw. This is a unique place that combines the spirit of the past with the vibrant energy of a modern city.
Within just a few minutes' walk, there are numerous restaurants, offering a wide selection of culinary experiences - from intimate bistros to refined signature cuisine. The proximity of green areas and cultural spots on the Warsaw map further enhances the attractiveness of this location. The development is located next to the picturesque Królikarnia Park, the legendary Iluzjon cinema, and the modern Warszawianka swimming pool complex.
Just a fifteen-minute journey separates the development from the very centre of the capital, yet the atmosphere prevailing in this part of Mokotów evokes peaceful enclaves, full of greenery and classical buildings, creating ideal conditions for living and relaxing.
ADDITIONAL INFORMATION:
* Parking space in the garage available at an additional cost of PLN 250,000;
* Storage unit available at an additional cost of PLN 37 620;
Feel free to contact me!
Ogólne informacje
| Rodzaj | Na sprzedaż |
|---|---|
| Powierzchnia użytkowa | 107.89 m² |
| Piętro | 2 |
| Liczba pokoi | 2 |




