Tarnowo Podg., Góra - piętrowy, 2 łazienki, gotowy do odbioru
Wielkopolska
Opis
Pozostał tylko lokal lewy.
Jeżeli szukasz piętrowego domu w zabudowie bliźniaczej,
w spokojnej okolicy to trafiłeś idealnie.
Zachęcam do zapoznania się z ofertą sprzedaży bliźniaka
w Górze tuż przy Tarnowie Podgórnym przy ulicy Letniej.
Idealne miejsce, aby odpocząć od zgiełku miasta.
Nieruchomość posadowiona jest na działce o pow. ponad 800 m2,
a do tego lokalu przypisana jest o pow. 400 m2.
Budynek konstrukcji tradycyjnej, postawiony z cegły porotherm.
POWIERZCHNIA:
PARTER:
wiatrołap 3,02 m2
hol plus schody 8,75 m2
salon z jadalnią 21,31 m2
kuchnia 6,04 m2
spiżarnia 1,51 m2
łazienka 4,17 m2
sypialnia 7,05 m2
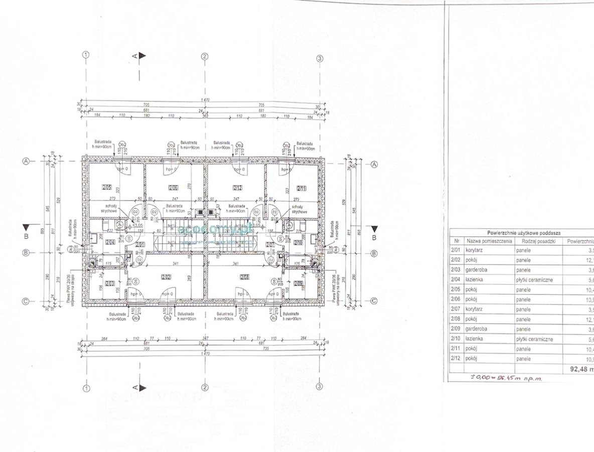
PIĘTRO:
korytarz 3,53 m2
sypialnia I z garderobą 15,73 m2
łazienka 5,64 m2
sypialnia II 10,41 m2
sypialnia III 10,93 m2
Standard wykończenia: tynki, posadzki, instalacje: elektryczna, gazowa,
wodna, piec gazowy 2-funkcyjny, grzejnik drabinkowy.
ATUTY:
- ogrzewanie podłogowe w całym domu
- rolet zewnętrzne sterowane elektrycznie
- niska zabudowa
- sypialnia na parterze
- 2 łazienki
INFRASTRUKTURA:
- żłobek, przedszkole 5 minut pieszo
- szkoła podstawowa 5 minut samochodem
- szkoła branżowa 7 minut pieszo
- Dino market, Biedronka oraz Lidl 5 minut samochodem
- dojazd do węzła drogowego nr 92 3 minuty
- dojazd do węzła drogowego S5 7 minut samochodem
- dojazd do Poznania 20 minut samochodem
Zapraszam na prezentację.
Przeprowadzimy Państwa przez procedury kredytowe.
SZCZEGÓŁOWE INFORMACJE
Robert Łuczak
oraz w biurze obsługi klienta Perspektywa Robert Łuczak:
ul. Polska 74 60-401 Poznań
Powyższy opis ma charakter informacyjny i nie stanowi
oferty w rozumieniu przepisów art. 66 Kodeksu Cywilnego.
Ogólne informacje
| Rodzaj | Na sprzedaż |
|---|---|
| Powierzchnia użytkowa | 96 m² |
| Liczba pokoi | 5 |




