ul. Warszawska Łomianki / Do wprowadzenia/ Segment
Mazowieckie
Opis
___ Kupujący nie płaci prowizji ___
Na sprzedaż segment w Łomiankach przy ul. Krzysztofa Kamila Baczyńskiego 15F, położony w spokojnej części miasta z zabudową jednorodzinną.
To dobre połączenie praktycznej infrastruktury z komfortem codziennego spokoju. Spacer do centrum handlowego zajmuje około 5 minut, podobnie jak dojście do przystanku autobusowego przy ulicy Warszawskiej. Jednocześnie nieruchomość pozostaje w odpowiednim oddaleniu od ulicy, dzięki czemu zarówno w ogrodzie, jak i w domu jest bardzo cicho. Położenie centrum handlowego pokazuję na ujęciu z drona w galerii zdjęć.
Dom ma przemyślany układ i wyraźny podział na strefy, dlatego jest ustawny i wygodny w użytkowaniu. Wnętrza dają szerokie możliwości aranżacyjne, a funkcje pomieszczeń można dopasować do potrzeb rodziny, pracy zdalnej lub gości.
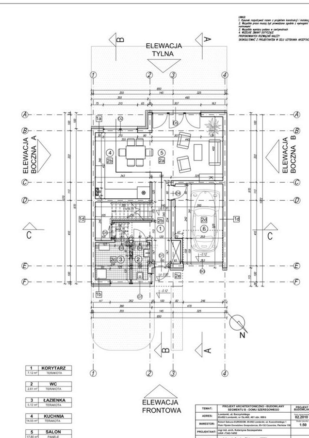
Parter to strefa dzienna. Salon łączy się z kuchnią i jadalnią, tworząc komfortową przestrzeń do wspólnego spędzania czasu.
Dodatkowy pokój na tym poziomie powstał z przestrzeni pierwotnie przewidzianej jako garaż i podobnie jak w wielu domach na tym osiedlu został zaadaptowany już na etapie wykańczania na pełnowymiarowe pomieszczenie mieszkalne. Dzięki temu świetnie sprawdzi się jako gabinet, pokój gościnny lub przestrzeń do pracy.
Na parterze znajduje się także WC oraz pomieszczenie gospodarcze ułatwiające przechowywanie.
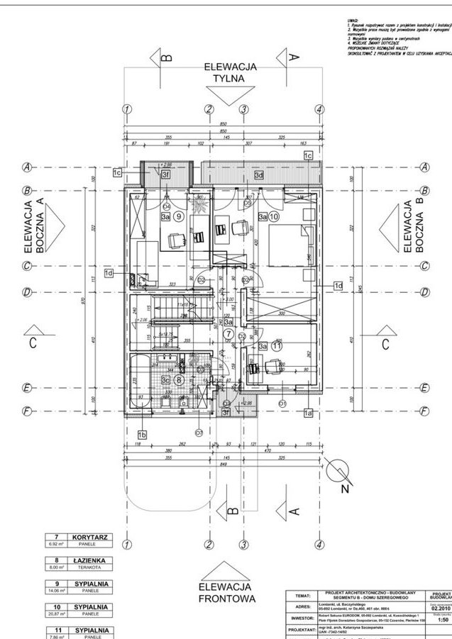
Pierwsze piętro obejmuje dwie sypialnie oraz dużą łazienkę z prysznicem. W większej sypialni znajduje się pojemna szafa wnękowa. Do tej sypialni przylega osobne pomieszczenie zaplanowane pierwotnie jako dodatkowa łazienka. Obecnie nie jest używane, więc można je zaaranżować jako garderobę, prywatne biuro, toaletę lub praktyczne zaplecze. Druga sypialnia jest ustawna i daje dużą swobodę aranżacji.
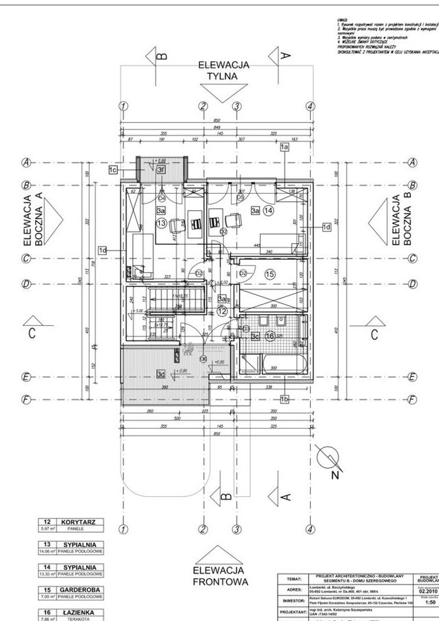
Drugie piętro oferuje łazienkę z dużą wanną i prysznicem oraz taras do zabudowy, co pozwala uzyskać dodatkową przestrzeń użytkową. Na tym poziomie znajduje się sypialnia z miejscem na pojemne szafy oraz dodatkowy pokój, który sprawdzi się jako drugi salon lub strefa relaksu.
Do dyspozycji jest ogród o powierzchni około 33 m². Przed budynkiem są dwa miejsca postojowe. Nieruchomość ma pełne media miejskie, czyli prąd, gaz, wodę i kanalizację.
Dom jest w stanie umożliwiającym wprowadzenie się od razu, natomiast uczciwie warto założyć odświeżenie, a następnie stopniowy remont według własnych potrzeb. To bardzo dobra baza, ponieważ podział pomieszczeń jest logiczny, a przestrzeń daje wiele możliwości dopasowania do własnego stylu życia.
___ KOMUNIKACJA ___
Dojazd do metro Młociny
- samochodem 15 minut
- autobusem 19 minut
( numery autobusów 750, 150 , Z55 )
Metrem do Centrum Warszawy 16 minut.
_
Wszystkie media miejskie.
_
Powierzchnie pięter i pomieszczeń:
Parter
1 - KORYTARZ – 7.12 m²
2 - WC – 2.61 m²
3 - ŁAZIENKA – 5.12 m²
4 - KUCHNIA – 14.55 m²
5 - SALON – 17.80 m²
6 - GARAŻ – 14.12 m²
Suma: 61.32 m²
Piętro
7 - KORYTARZ – 6.92 m²
8 - ŁAZIENKA – 8.00 m²
9 - SYPIALNIA – 14.06 m²
10 - SYPIALNIA – 20.87 m²
11 - SYPIALNIA – 7.86 m
Suma: 57.71 m²
Drugie piętro
12 - KORYTARZ – 5.97 m²
13 - SYPIALNIA – 14.06 m²
14 - SYPIALNIA – 13.35 m²
15 - GARDEROBA – 7.00 m²
16 - ŁAZIENKA – 7.86 m²
Suma: 48.24 m²
Zapraszam na prezentację, ponieważ ten układ i poczucie przestrzeni najlepiej ocenić na miejscu. Jako pośrednik prowadzę transakcję od początku do końca, pomagam w skompletowaniu dokumentów i formalności, a w razie potrzeby wspieram również w organizacji kredytu hipotecznego. Chętnie odpowiem na wszystkie pytania i umówię dogodny termin spotkania.
___ Stan prawny ___
Odrębna własność
Można zakupić na kredyt
Zapraszam do kontaktu PONIEDZIAŁEK - NIEDZIELA 10 - 21
Kamil Szulc - Wyłączny agent nieruchomości.
tel.: +48 508 651 424
Ogłoszenie nie stanowi oferty w rozumieniu przepisów kodeksu cywilnego
Oferta wysłana z programu dla biur nieruchomości ASARI CRM ()
Ogólne informacje
| Rodzaj | Na sprzedaż |
|---|---|
| Powierzchnia użytkowa | 167.27 m² |
| Liczba pokoi | 6 |




