Unikatowy widok na Muzeum Poczty Gdańskiej
Gdańsk, Pomorskie
Opis
Cena zawiera indywidualny projekt dla inwestora + pełną koordynację procesu remontowego.
Lokalizacja: Mieszkanie znajduje się przy ul. Sieroca 5 w Gdańsku. Posiada balkon z unikatowym widokiem na plac historycznego Muzeum Poczty Gdańskiej. To zaledwie 320 m od Motławy – cicha i spokojna okolica w samym sercu Śródmieścia. Miasto jest obecnie w trakcie rewitalizowania budynku starego sierocińca, w którym powstanie kawiarnia oraz miejsca kulturowe. Po zakończeniu tych prac okolica nabierze jeszcze większego, unikalnego klimatu.
Mieszkanie: To lokal o powierzchni 27,3 m², usytuowany na 1. piętrze w solidnej, ceglanej kamienicy z lat 50-tych. Ogromnym atutem są duże okna balkonowe, składające się z 3 otwieranych elementów, dzięki czemu do wnętrza wpada bardzo dużo naturalnego światła. Ekspozycja okien na południowy - wschód.
Obecnie mieszkanie jest w stanie do generalnego remontu, w pełni przygotowane dla ekipy budowlanej – zerwano już stare podłogi, wyburzono ściany oraz usunięto dawne zabudowy i przestarzałe elementy.
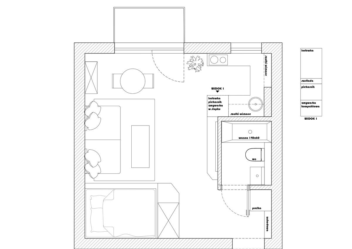
Studio (zgodnie z nowym układem) składa się z:
małego korytarza,
łazienki,
salonu ze strefą sypialni oraz z wnęką kuchenną.
Jest to nowoczesny projekt inwestycyjny lub idealna propozycja na second home. Pomimo małego metrażu przestrzeń została sprytnie zaprojektowana, oferując wiele miejsc do przechowywania. Dokładny układ funkcjonalny widoczny jest na załączonym planie.
Wykończenie i realizacja: Załączone wizualizacje to autorska propozycja wnętrza. Projekt realizowany byłby dla zainteresowanych inwestorów przez doświadczone biuro. Dysponujemy zaufanymi i sprawdzonymi ekipami remontowymi. Pilnujemy całego procesu od początku, aż do momentu oddania mieszkania pod klucz.
Cena do negocjacji. Zapraszam do kontaktu.
[ENGLISH]
The price includes an individual interior design tailored for the investor, as well as full coordination of the renovation process.
LOCATION
The apartment is located at 5 Sieroca Street in Gdańsk. It features a balcony with a unique view of the square of the historic Polish Post Office Museum.
Only 320 meters from the Motława River – a quiet and peaceful area in the very heart of the city center.
The city is currently revitalizing the former orphanage building nearby, where a café and cultural spaces will be created. Once completed, the area will gain even more character and a distinctive atmosphere.
APARTMENT
This is a 27.3 m² unit located on the 1st floor of a solid brick building from the 1950s.
A major advantage is the large balcony windows, consisting of three opening sections, allowing plenty of natural light into the interior.
Window exposure: south-east.
The apartment is currently in a condition suitable for full renovation and has been fully prepared for construction works – old flooring has been removed, walls have been demolished, and outdated installations and built-ins have been cleared.
LAYOUT (ACCORDING TO THE NEW CONCEPT)
small hallway
bathroom
living area with a sleeping zone and a kitchen niche
This is a modern investment project or an ideal option for a second home.
Despite its compact size, the space has been cleverly designed to offer plenty of storage.
The exact layout is presented in the attached floor plan.
FINISHING & EXECUTION
The attached visualizations present a bespoke interior design concept.
The project can be delivered for interested investors by an experienced design studio.
We work with trusted and proven construction teams and manage the entire process – from concept to turnkey handover.
Price negotiable. Feel free to get in touch for more details.
Ogólne informacje
| Rodzaj | Na sprzedaż |
|---|---|
| Powierzchnia użytkowa | 27.30 m² |
| Piętro | 1 |
| Liczba pokoi | 1 |




