Villa Veduta -mieszkania z piękną panoramą/widokiem na zatokę gdańską
Gdynia, Pomorskie
Opis
Wyjątkowa inwestycja powstająca w bardzo lubianej przez mieszkańców Gdyni dzielnicy - Mały Kack.
Na wzgórzu z widokiem na piękną panoramę Redłowa, Orłowa oraz Zatoki Gdańskiej, powstanie niewielka, bo czteromieszkaniowa Villa Veduta. Nazwa inwestycji pochodzi od obrazów przedstawiających szeroki widok miasta, jego panoramę - a to właśnie będzie cieszyć oczy mieszkańców tego budynku. Najpiękniejszą porą na podziwianie scenerii, będą godziny wieczorne, gdy z okien wszystkich mieszkań będzie rozpościerał się widok na oświetloną zachodzącym słońcem panoramę Redłowa, Śródmieścia a przede wszystkim Zatoki Gdańskiej. Gwarantuje to posadowienie budynku na skarpie, bez bezpośredniego sąsiedztwa innych budynków od strony tarasów.
Veduta powstaje przy cichej, malutkiej uliczce Sochaczewskiej pod numerem 7. Najbliższe sąsiedztwo, to domy jednorodzinne.
W budynku zaprojektowano 4 mieszkania:
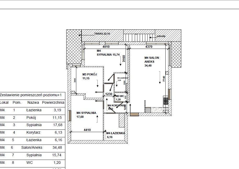
Poziom II mieszanie 4 pokojowe, 95.73m2, taras22m2 + taras dachowy ~50m2
Poziom I mieszkanie 4 pokojowe, 96.27m2, taras 22m2
Poziom 0:
mieszkanie 35.12m2, taras 10m2
mieszkanie 32.06m2, taras 10m2
Oba mieszkania na poziomie 0 mogą być przerobione na mieszkania dwupoziomowe z dodatkową powierzchnią około 20-25m2.
Każde mieszkanie ma zagwarantowane:
jedno lub dwa miejsca postojowe (hala, miejsca zewnętrzne, podnośnik).
komórkę lokatorską (od 3 do 8m2)
ogólnodostępna rowerownia.
WYKOŃCZENIE:
Całość wykończona w najwyższym standardzie:
duże przeszklenia w postaci okien aluminiowych,
przyłącza do klimatyzacji,
ogrzewanie pompą ciepła,
drzwi antywłamaniowe wysokiej klasy,
na tarasach deski pcv oraz punkty świetlne,
doświetlenie całego budynku,
kamery zewnętrzne,
taras dachowy wykończony białym żwirkiem oraz szklanymi balustradami.
LOKALIZACJA:
z każdego mieszkania widok na zatokę gdańską,
Plaża i Molo w Orłowie 10 min rowerem,
praktycznie bezpośrednie sąsiedztwo lasu,
w pobliżu przystanki autobusowe,
duże i podpowierzchniowen sklepy oraz centra handlowe,
Inwestycja w całości budowana ze środków własnych.
Możliwość kredytowania, w którym pomagamy.
Ogólne informacje
| Rodzaj | Na sprzedaż |
|---|---|
| Powierzchnia użytkowa | 95.73 m² |
| Piętro | 2 |
| Liczba pokoi | 4 |




