Wawer, Radość, bliźniak, 4 sypialnie, developerski
Warszawa, Mazowieckie
Opis
DOM, KTÓRY POWSTAŁ DLA SWOICH, A NIE DLA RYNKU.
Dwa identyczne bliźniaki w Radości budował kierownik budowy z ponad 30-letnim doświadczeniem - z założeniem, że zamieszkają tu jego dzieci z wnukami. Dlatego kluczowe decyzje nie były podejmowane pod tabelkę dewelopera, tylko pod jakość materiałów, wykonania i trwałość. Finalnie oba bliźniaki trafiają do sprzedaży w stanie deweloperskim, puste – gotowe, żebyś wykończył je dokładnie po swojemu. Na sprzedaż 1 lub 2 razem.
NAJWAŻNIEJSZEAdres: Warszawa, Wawer – Radość, ul. Artystyczna 39
Typ: dom jednorodzinny w zabudowie bliźniaczej ( rynek wtórny )
Rok budowy: 2019
Powierzchnia całkowita: 242,5 m² ( mierzona po podłodze )
Powierzchnia użytkowa 176,85m2
Pokoje: 5 ( +opcja zrobienia 1-2 pokoi na poddaszu )
Kondygnacje: parter ( wys. 284cm )+ piętro ( wys.265cm ) + poddasze do aranżacji
Działka: 823 m² ( drugi bliźniak ma działkę 829m2 )
Garaż: na 2 samochody w bryle budynku
Cena: 1 829 000 zł
Stan: deweloperski, dom pusty (bez ruchomości)
DLA KOGOdla rodziny, która chce zielonej, spokojnej lokalizacji i sensownego układu
dla osób, które wolą urządzić wszystko od zera (stan deweloperski)
dla tych, którzy chcą dodatkowej przestrzeni: poddasze + taras
dla 2ch rodzin, które chcą kupić 2 sąsiadujące bliźniaki i zamieszkań blisko
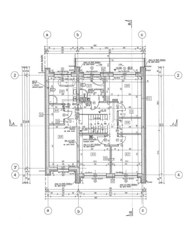
UKŁAD POMIESZCZEŃ - PARTER ( ok. 89,05 m² ):
wiatrołap: 3,85 m²
kotłownia: 2,85 m²
WC: 1,35 m²
kuchnia: 11,00 m²
spiżarnia: 2,20 m²
salon z jadalnią: 39,95 m²
garaż 2-stanowiskowy: 27,85 m²
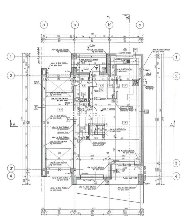
PIĘTRO ( ok. 90,35 m² ):
hol: 14,65 m²
łazienka 1: 6,35 m²
łazienka 2: 8,30 m²
garderoba: 3,00 m²
pokój 1: 15,80 m²
pokój 2: 12,45 m²
pokój 3: 12,10 m²
garderoba 2: 3,80 m²
pokój 4: 13,90 m²
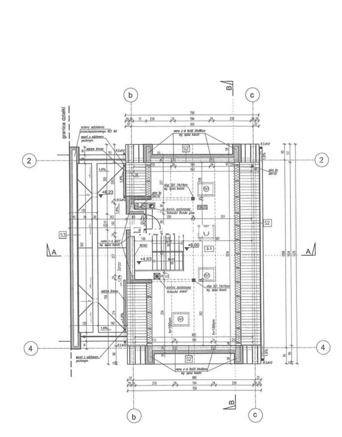
PODDASZE ( ok. 62,65 m² netto / 28,15 m² użytkowe ):
przestrzeń do dowolnej aranżacji ( gabinet / kino / siłownia / strefa relaksu )
wyjście na taras ok. 35 m² ( szer. ok. 3,20 m )
ATUTYBezpośrednie sąsiedztwo lasu – cisza, spacery, rower, prywatność
Duża działka 824 m² ( drugi bliźniak ma działkę 830m2 )
Garaż na 2 auta w bryle budynku ( z wyjściem do domu oraz na ogród )
Poddasze do własnego projektu + taras na dachu
Przygotowane podłączenia pod saunę na poddaszu
Nie produkt deweloperski – dom budowany z myślą o rodzinie, nacisk na solidność
MEDIA / INFRASTRUKTURA / OGRZEWANIE woda ( obecnie studnia, jest też w drodze Powiatowej, wodociąg na ul.Artystycznej planowany na 2027 r. )
prąd ( jest 1 licznik na 2 domy, łatwo można założyć drugi )
gaz ( są osobne liczniki )
szambo - jest na podjeździe przed garażem ( pojemność 10m3 )
kanalizacja jest planowana ( brak terminu podłączenia )
ogrzewanie podłogowe jest w podłodze na całym parterze bez garażu, na piętrze jest w łazienkach; reszta przewidziana pod ogrzewanie grzejnikami
LOKALIZACJA I DOJAZDRadość (Wawer) – zielona, spokojna część Warszawy
ok. 700 m do przystanku autobusowego
ok. 3 km do stacji PKP Warszawa Radość
ok. 800 m do obwodnicy Warszawy
DOM JEST PUSTY W STANIE DEVELOPERSKIM. ZDJECIA NA KTÓRYCH SA MEBLE TO WIZUALIZACJE.
Dostępny od zaraz. Klucz w agencji.
Zapraszamy na prezentację!
Szanowni Państwo,
Treść niniejszego ogłoszenia ma charakter jedynie informacyjny i nie stanowi oferty w rozumieniu art. 66 i nast. ustawy Kodeks Cywilny. Zawarte w ogłoszeniu informacje pochodzą od właściciela nieruchomości i mogą one wymagać weryfikacji. Prawa do elementów ogłoszenia przysługują ELANDOM Nieruchomości S.C. (lub podmiotów współpracujących). Kopiowanie i rozpowszechnianie ogłoszenia lub jego elementów, bez zgody ELANDOM Nieruchomości S.C. jest zabronione.
Oferta wysłana z programu dla biur nieruchomości ASARI CRM ()
Ogólne informacje
| Rodzaj | Na sprzedaż |
|---|---|
| Powierzchnia użytkowa | 242.50 m² |
| Liczba pokoi | 5 |




