Wola*gotowe do zamieszkania*2 pokoje
Warszawa, Mazowieckie
Opis
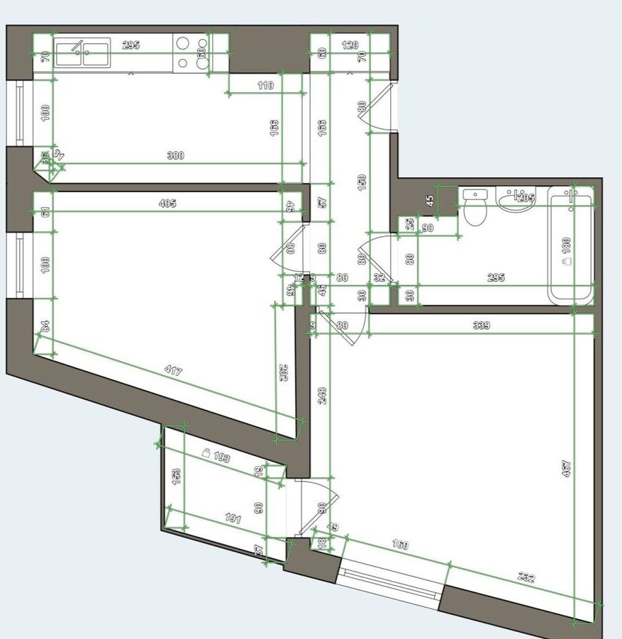
Zapraszam do zapoznania się z wyjątkową ofertą dwupokojowego mieszkania o powierzchni 51 m² zlokalizowanego przy ul. Okopowej 33 w prężnie rozwijającej się dzielnicy Wola. Idealne dla pary, singla lub jako inwestycja - to mieszkanie łączy komfort, świetną lokalizację i atrakcyjny standard wykończenia.
Kluczowe Atuty Nieruchomości to:
Lokalizacja: Warszawa, Wola, ul. Okopowa 33.
Powierzchnia: 51 m².
Pokoje: 2 (jest możliwość zrobienia dodatkowego pokoju)
Piętro: 3. (w 9-piętrowym budynku).
Kuchnia: Oddzielna z oknem
Łazienka z wanną
Dodatkowe: Balkon
Stan prawny: Spółdzielcze własnościowe prawo do lokalu.
Budynek: Zadbane osiedle z 1998 roku.
Standard i Wyposażenie:
Mieszkanie jest częściowo wyremontowane i gotowe do natychmiastowego wprowadzenia lub ewentualnej, łatwej adaptacji pod własne potrzeby.
Ściany: świeżo odmalowane
Podłoga: Świeżo wycyklinowany, piękny dębowy parkiet nadający wnętrzom ciepła i elegancji.
Okna: PCV, gwarantujące ciszę i dobrą izolację termiczną.
Opłaty:
Indywidualne liczniki na wodę i ogrzewanie, co pozwala na pełną kontrolę kosztów eksploatacji. czynsz bez opłat licznikowych 730 PLN.
Niezrównana Lokalizacja i Infrastruktura.
Okopowa 33 to adres, który zapewnia doskonały dostęp do miejskiej infrastruktury:
Komunikacja:
Doskonałe połączenie z centrum - przystanki autobusowe i tramwajowe tuż obok, umożliwiające szybkie dotarcie do każdej części Warszawy.
Zakupy i Rozrywka:
W bliskim sąsiedztwie znajduje się ekskluzywne Centrum Handlowe Klif.
Edukacja: Liczne szkoły i przedszkola w okolicy, idealne dla rodzin z dziećmi.
Rekreacja: Atrakcyjne, bezpieczne miejsca do zabawy dla dzieci w sąsiedztwie.
Nie przegap tej okazji! Mieszkanie w tak atrakcyjnej lokalizacji, z solidnym standardem wykończenia, jest inwestycją w komfort życia.
Zadzwoń i umów się na prezentację!
POZNAJ UNIKALNE OFERTY VIVA INVEST
Profesjonalna obsługa Rynku Nieruchomości.
#Kupno #Sprzedaż #Regulacja stanów prawnych #Wycena #Świadectwa Energetyczne #Negocjacje
* Treść niniejszego ogłoszenia nie stanowi oferty handlowej w rozumieniu art. 66 Kodeksu Cywilnego.
Ogólne informacje
| Rodzaj | Na sprzedaż |
|---|---|
| Powierzchnia użytkowa | 51 m² |
| Piętro | 3 |
| Liczba pokoi | 2 |




