Wyjątkowa nieruchomość na Warszawskim Ksawerowie
Warszawa, Mazowieckie
Opis
Przedstawiamy skrajny segment znajdujący się na górnym Mokotowie.
Nieruchomość jest do remontu, posiada projekt Architektoniczny, obejmujący renowacje z możliwością rozbudowy domu, z aktualnym pozwoleniem na budowę.
Dom:
352,7 m2 Pow. całkowita.
266,9 m2 Pow. użytkowa
4 sypialni
taras
ogródek
2 miejsca garażowe
Układ Funkcjonalny:
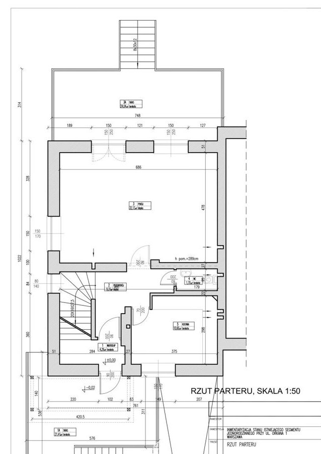
Parter:
Pokój dzienny: wyjściem na taras i ogród, idealny do codziennego relaksu.
Kuchnia: Oddzielne pomieszczenie
Toaleta
Hall: Przestronny z eleganckimi schodami prowadzącymi na I piętro.
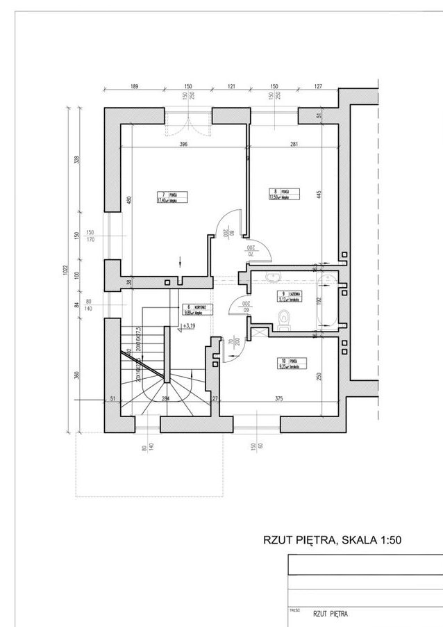
I Piętro:
Trzy sypialnie.
Łazienka
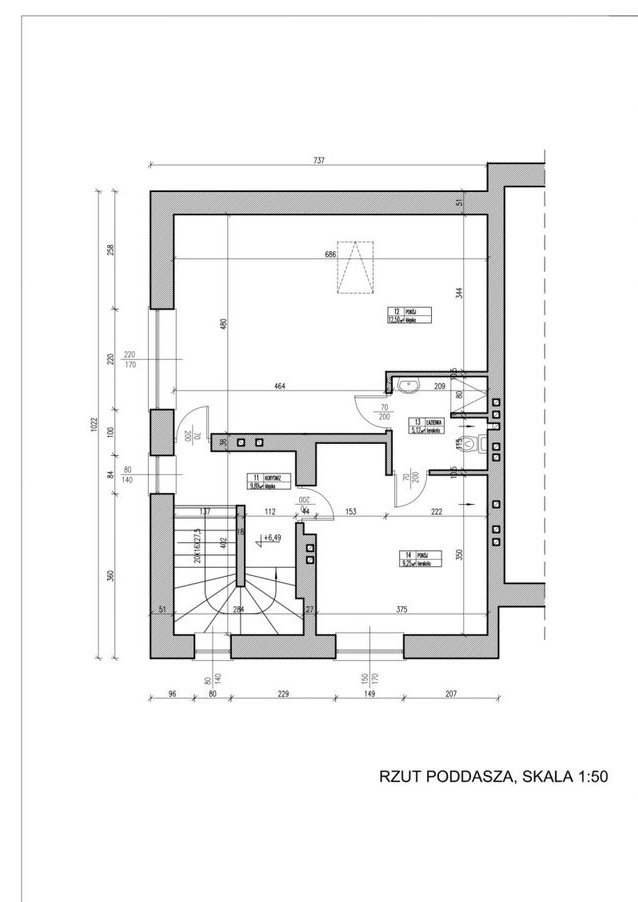
II Piętro:
2 pomieszczenia
Łazienka
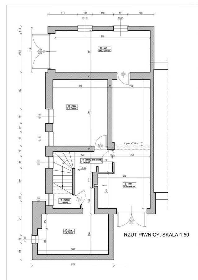
Piwnica:
2 oddzielne pomieszczenia: jedno z sauną
2 oddzielne miejsca garażowe
PARAMETRY NIERUCHOMOŚCI
Ta wyjątkowa nieruchomość to skrajny segment na Warszawskim Ksawerowie, o powierzchni 352,70 m2 oferuje mnóstwo możliwości przyszłym właścicielom. Znajduje się na działce o powierzchni 575 m2, co daje wystarczająco dużo miejsca na realizację różnorodnych pomysłów. Dom ten ma 4 kondygnacje, w tym 2 miejsca Garażowe.
Chociaż dom wymaga remontu, projekt architektoniczny całkowitej jego renowacji lub remontu stanowi solidną podstawę do przemiany tego miejsca w prawdziwą oazę luksusu i komfortu. Potencjał tego miejsca jest ogromny, dom nie ma na sobie konserwatora zabytków. Można dostosować układ pomieszczeń i wykończenie według własnych upodobań, tworząc dom idealnie dopasowany do potrzeb i stylu życia przyszłych mieszkańców.
LOKALIZACJA I KOMUNIKACJA
Segment znajduje się na Górnym Mokotowie, w spokojnej okolicy, co zapewnia ciszę i prywatność. Jednocześnie, dzięki dogodnej lokalizacji, wszelkie udogodnienia miasta są łatwo dostępne, zapewniając wygodne życie dla całej rodziny.
W NASZEJ OPINII
To idealna oferta dla tych, którzy poszukują domu z potencjałem do stworzenia wymarzonego miejsca zamieszkania, dostosowanego do ich indywidualnych potrzeb i preferencji.
Więcej unikalnych ofert w podobnych kryteriach znajdą Państwo na naszej stronie . Zapraszamy!
I present an exceptional segment located in Upper Mokotów, ready for complete renovation or refurbishment according to an architectural design.
PROPERTY PARAMETERS
This unique property, an end segment in Warsaw's Ksawerów, with an area of 352.70 m2, offers plenty of opportunities for future owners. Situated on a plot of land measuring 475 m2, there is ample space for various ideas to be realized. The house has 4 floors, including 2 garage spaces.
While the house requires renovation, the architectural design for its complete renovation or refurbishment provides a solid foundation for transforming this place into a true oasis of luxury and comfort. The potential of this place is enormous, as the house is not listed as a historical monument. You can customize the layout and finishes according to your preferences, creating a home perfectly suited to the needs and lifestyle of future residents.
COMMUNICATION AND SURROUNDINGS
The segment is located in Upper Mokotów, in a quiet area, providing peace and privacy. At the same time, thanks to its convenient location, all city amenities are easily accessible, ensuring a comfortable life for the entire family.
IN OUR OPINION
This is an ideal offer for those seeking a home with the potential to create their dream living space, tailored to their individual needs and preferences.
Please visit our website to find more unique offers with similar criteria!
Jako biuro nieruchomości pobieramy wynagrodzenie w formie prowizji za wykonaną usługę pośrednictwa.
We present an exceptional segment located in Upper Mokotów, ready for complete renovation or refurbishment according to an architectural design.
PROPERTY PARAMETERS
This unique property, an end segment in Warsaw's Ksawerów, with an area of 352.70 m2, offers plenty of opportunities for future owners. Situated on a plot of land measuring 475 m2, there is ample space for various ideas to be realized. The house has 4 floors, including 2 garage spaces.
While the house requires renovation, the architectural design for its complete renovation or refurbishment provides a solid foundation for transforming this place into a true oasis of luxury and comfort. The potential of this place is enormous, as the house is not listed as a historical monument. You can customize the layout and finishes according to your preferences, creating a home perfectly suited to the needs and lifestyle of future residents.
COMMUNICATION AND SURROUNDINGS
The segment is located in Upper Mokotów, in a quiet area, providing peace and privacy. At the same time, thanks to its convenient location, all city amenities are easily accessible, ensuring a comfortable life for the entire family.
IN OUR OPINION
This is an ideal offer for those seeking a home with the potential to create their dream living space, tailored to their individual needs and preferences.
Please visit our website to find more unique offers with similar criteria!
Ogólne informacje
| Rodzaj | Na sprzedaż |
|---|---|
| Powierzchnia użytkowa | 352.70 m² |
| Liczba pokoi | 7 |




